模型详情
1/1
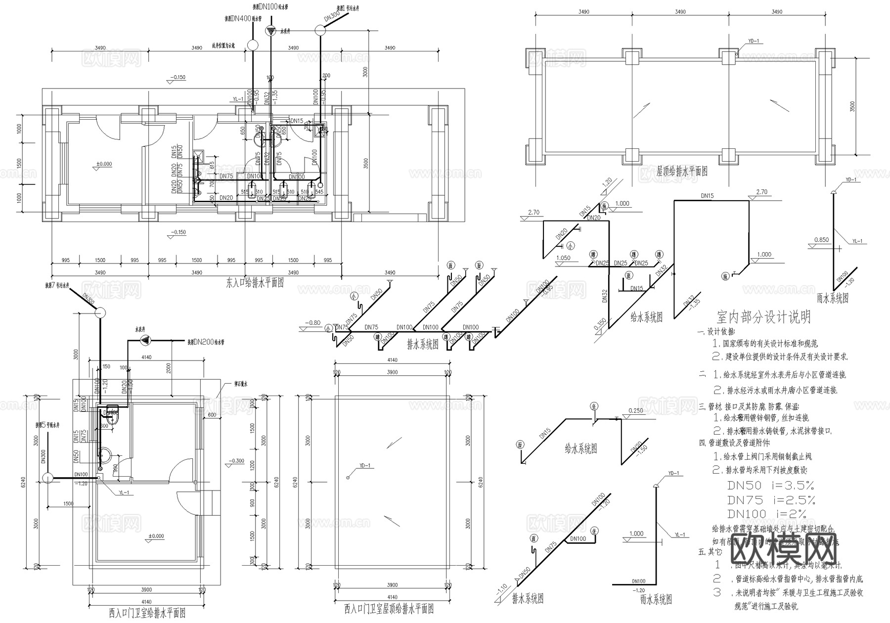
建筑给排水 门卫室厕所卫生间 给排水雨水系统图cad施工图
ID:
5411562
建筑给排水 门卫室厕所卫生间 给排水雨水系统图cad施工图 ID-5411562
所需欧币:
16
发布时间:
2026-02-24
下载请使用电脑登录欧模网,建议先收藏
收藏
分享
皮肤干燥
关注
为您推荐
建筑给排水 公共厕所卫生间系统图cad施工图
建筑给排水 厕所卫生间淋浴室 系统图cad施工图
卫生间给排水系统图cad施工图
大型办公建筑给排水消防给排水施工图卫生间给排水大样图cad施工图
雨水口给排水节点详图cad施工图
雨水收集口排水管排水井盖板篦子CAD施工图cad施工图
雨水口节点排水井CAD施工图cad施工图
排水沟盖板雨水口给排水节点CAD施工图集 13套cad施工图
雨水口排水沟节点CAD施工图cad施工图
自动喷灌系统灌溉系统给排水节点CAD施工图集 18套cad施工图
排水沟节点 排水暗沟 CAD施工图cad施工图
雨水口排水沟节点盖板篦子CAD施工图cad施工图
排水沟截水沟雨水篦子井盖给排水节点CAD施工图集 10套cad施工图
排水沟节点 篦子 排水盖板 CAD施工图cad施工图
排水沟节点 地坪排水导沟 CAD施工图cad施工图
雨水湿地草坡入水 平剖面 给排水节点cad施工图
给排水节点详图 排水井 线性排水沟cad施工图
排水防水cad施工图cad施工图
屋面透水盲管布置 排水盲沟 泄水口 排水管节点 建筑给排水cad施工图cad施工图
排水沟节点 排水口盖板CAD施工图cad施工图
点击加载更多
分享到
复制链接
保存海报
取消
请选择收藏夹
+新增收藏夹
新增收藏夹
取消
确认
退出查看