模型详情
1/2
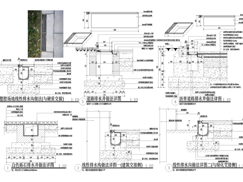
示范区 给排水设计说明 景观设计说明 管道阀门井检查井cad施工图
ID:
5411608
示范区 给排水设计说明 景观设计说明 管道阀门井检查井cad施工图 ID-5411608
所需欧币:
16
发布时间:
2026-02-24
下载请使用电脑登录欧模网,建议先收藏
收藏
分享
皮肤干燥
关注
为您推荐
给排水设计说明 施工设计说明 景观设计说明 园林绿化给排水cad施工图
HDPE管道 检查井连接节点cad施工图
给排水景观绿化施工设计说明cad施工图
圆污井雨井污水检查井雨水管道隐形井盖详图检查井节点做法CADcad施工图
雨水井污水井检查井交汇井井盖给排水节点CAD施工图集 55套cad施工图
住宅小区景观设计说明cad施工图
景观植物绿化种植施工设计说明CAD施工图集cad施工图
管道井门CAD施工图cad施工图
景观给排水雾喷给水平面图 冷雾设计说明 CAD施工图cad施工图
公园景观给排水平面图 设计说明 地上式洒水栓cad施工图
砖砌圆形雨水检查井沉沙井通用CAD施工图集cad施工图
展示区园建工程景观设计说明cad施工图
地漏排水沟地沟盖板详图暗沟明沟检查井雨水污水井工艺节点CADcad施工图
井盖节点 检查井 不锈钢提拉口 CAD施工图cad施工图
排水井 盖板 井盖节点 CAD施工图cad施工图
给排水节点详图 排水井 线性排水沟cad施工图
井盖节点 检查井盖 复合井盖 装饰井 标识牌 CAD施工图cad施工图
井盖节点 装饰井检查井盖板 绿化种植盆 绿化种植井圈 抽手杆cad施工图
雨水井节点 井盖节点 绿地雨水井 车行人行道检查井 CADcad施工图
雨水口节点排水井CAD施工图cad施工图
点击加载更多
分享到
复制链接
保存海报
取消
请选择收藏夹
+新增收藏夹
新增收藏夹
取消
确认
退出查看