模型详情
1/1
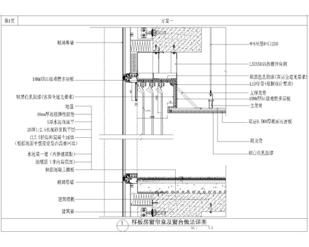
窗帘盒节点cad施工图
ID:
5412182
窗帘盒节点cad施工图 ID-5412182
所需欧币:
16
发布时间:
2026-02-24
下载请使用电脑登录欧模网,建议先收藏
收藏
分享
皮肤干燥
关注
为您推荐
窗帘盒大样节点cad施工图
窗帘盒天花吊顶节点CAD施工图cad施工图
窗帘盒节点大样详图CAD施工图cad施工图
窗帘盒暗藏灯带节点cad施工图
窗帘盒节点大样详图CAD施工图集 7套cad施工图
反光灯槽和窗帘盒节点cad施工图
窗帘盒天花节点大样图cad施工图cad施工图
窗户窗帘盒节点大样详图CAD施工图cad施工图
17款窗帘盒节点CAD图纸最新整理合集cad施工图cad施工图
天花吊顶检修口窗帘盒节点大样详图CAD施工图cad施工图
吊顶天花灯槽窗帘盒节点大样详图CAD施工图cad施工图
家装窗帘盒CAD施工图大样cad施工图
窗帘盒深化详图cad施工图
窗帘盒暗藏式天花吊顶剖面做法工艺详图节点CAD素材图库cad施工图
门节点cad施工图
沙盘节点cad施工图
景观节点cad施工图
铝板墙面节点CAD施工图cad施工图
花箱节点CAD施工图cad施工图
铝板幕墙节点CAD施工图cad施工图
点击加载更多
分享到
复制链接
保存海报
取消
请选择收藏夹
+新增收藏夹
新增收藏夹
取消
确认
退出查看