模型详情
1/1
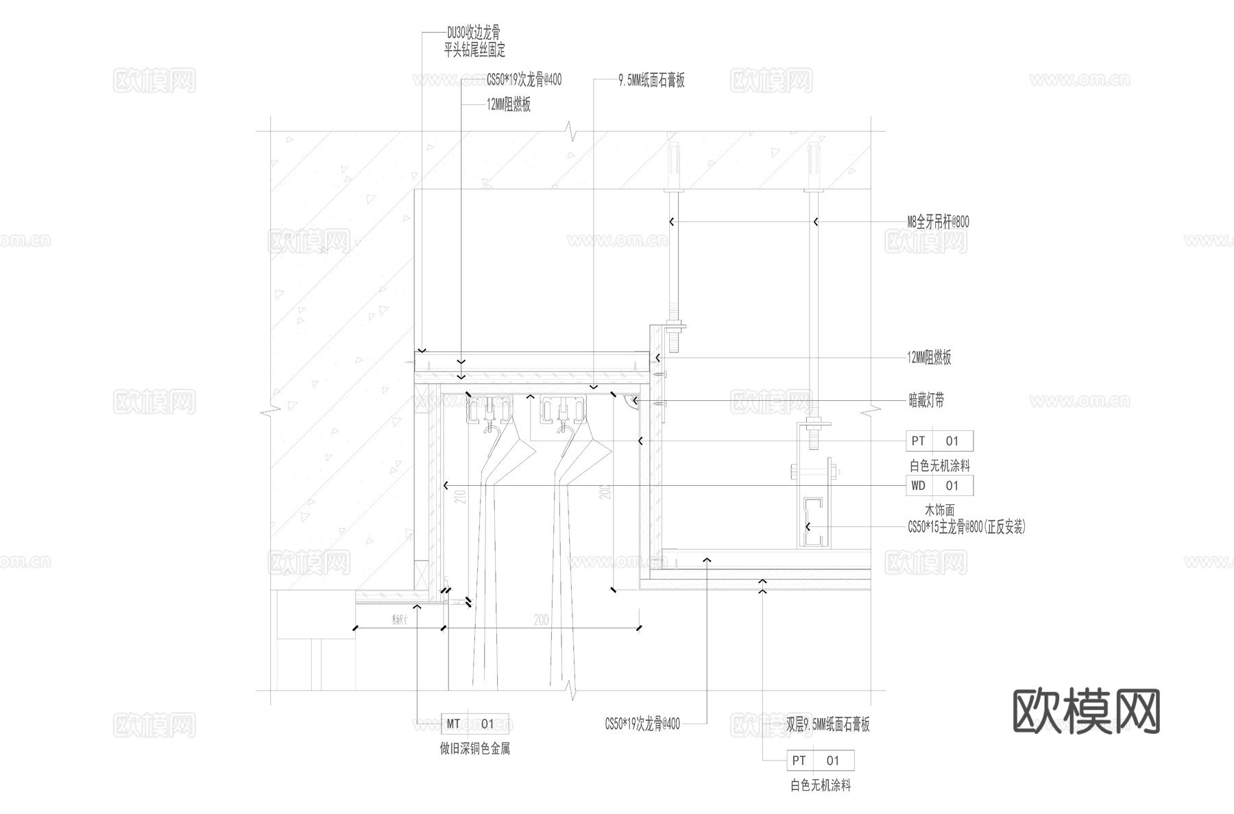
窗帘盒暗藏灯带节点cad施工图
ID:
5432387
窗帘盒暗藏灯带节点cad施工图 ID-5432387
所需欧币:
16
发布时间:
2026-03-11
下载请使用电脑登录欧模网,建议先收藏
收藏
分享
乐死你
关注
为您推荐
暗藏灯带节点 吊顶节点 顶面节点 现代吊顶 弧形吊顶cad施工图
窗帘盒暗藏式天花吊顶剖面做法工艺详图节点CAD素材图库cad施工图
灯带灯槽节点CAD施工图cad施工图
暗藏蹲便器水箱节点cad施工图
窗帘盒节点cad施工图
暗藏灯带吊顶 办公咖啡区柜子 现代厨柜 柜子墙面节点cad施工图
窗帘盒大样节点cad施工图
型材灯带节点_悬浮式吊顶_灯槽节点_嵌入式灯带cad施工图
反光灯槽和窗帘盒节点cad施工图
窗帘盒天花吊顶节点CAD施工图cad施工图
窗帘盒节点大样详图CAD施工图cad施工图
暗藏马桶水箱节点cad施工图
消防栓暗藏节点大样图cad施工图
双眼皮吊顶侧面灯带节点cad施工图
工装节点灯箱灯座天花暗藏灯投影幕方柱圆柱详图节点CAD素材图cad施工图
窗帘盒节点大样详图CAD施工图集 7套cad施工图
吊顶天花灯槽窗帘盒节点大样详图CAD施工图cad施工图
窗帘盒天花节点大样图cad施工图cad施工图
窗户窗帘盒节点大样详图CAD施工图cad施工图
17款窗帘盒节点CAD图纸最新整理合集cad施工图cad施工图
点击加载更多
分享到
复制链接
保存海报
取消
请选择收藏夹
+新增收藏夹
新增收藏夹
取消
确认
退出查看