模型详情
1/8
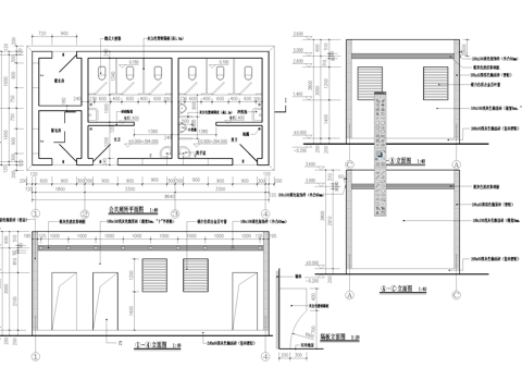
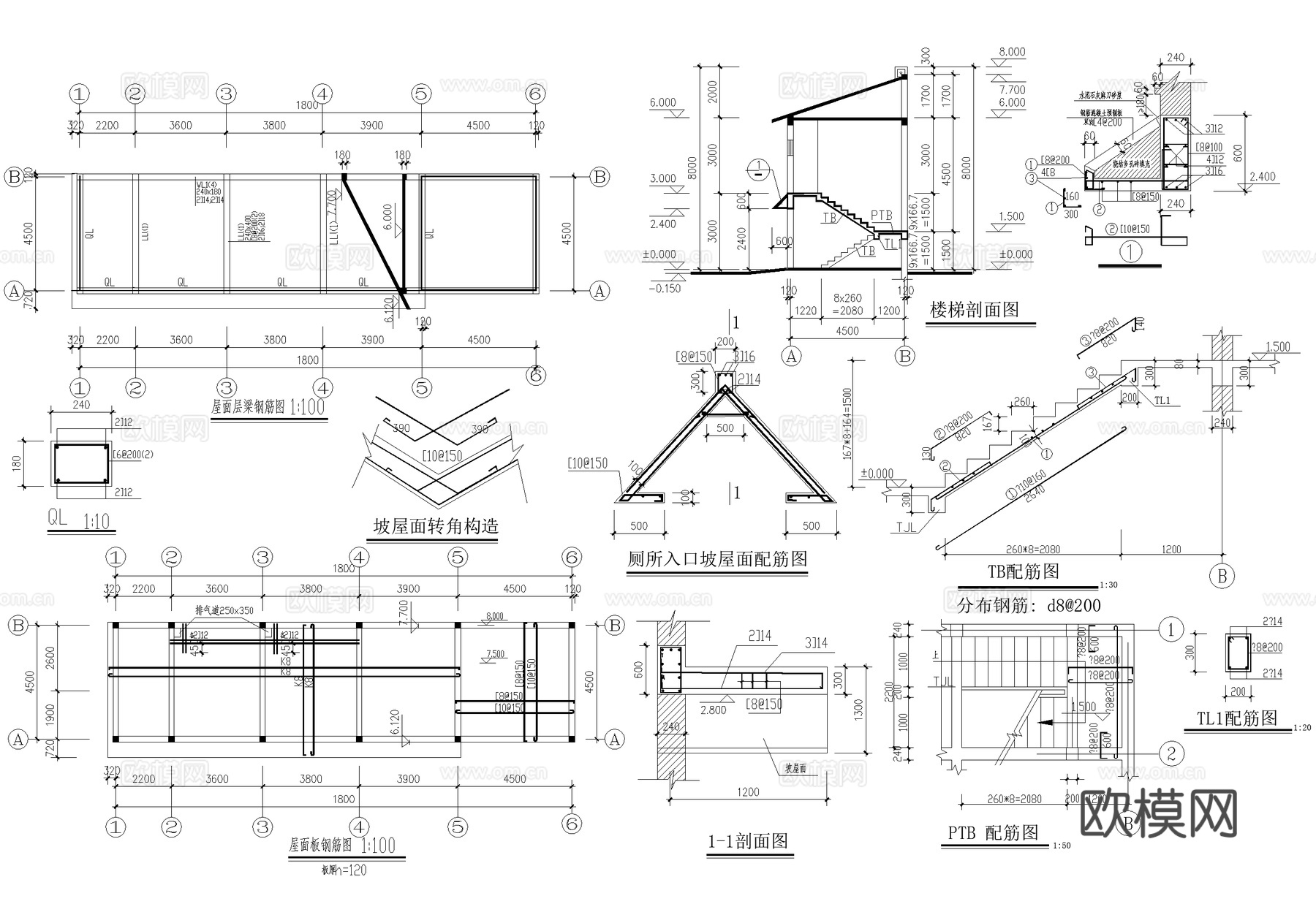
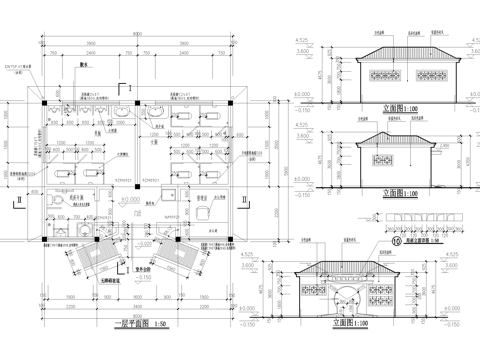
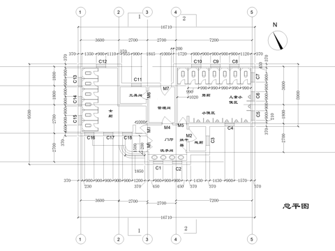
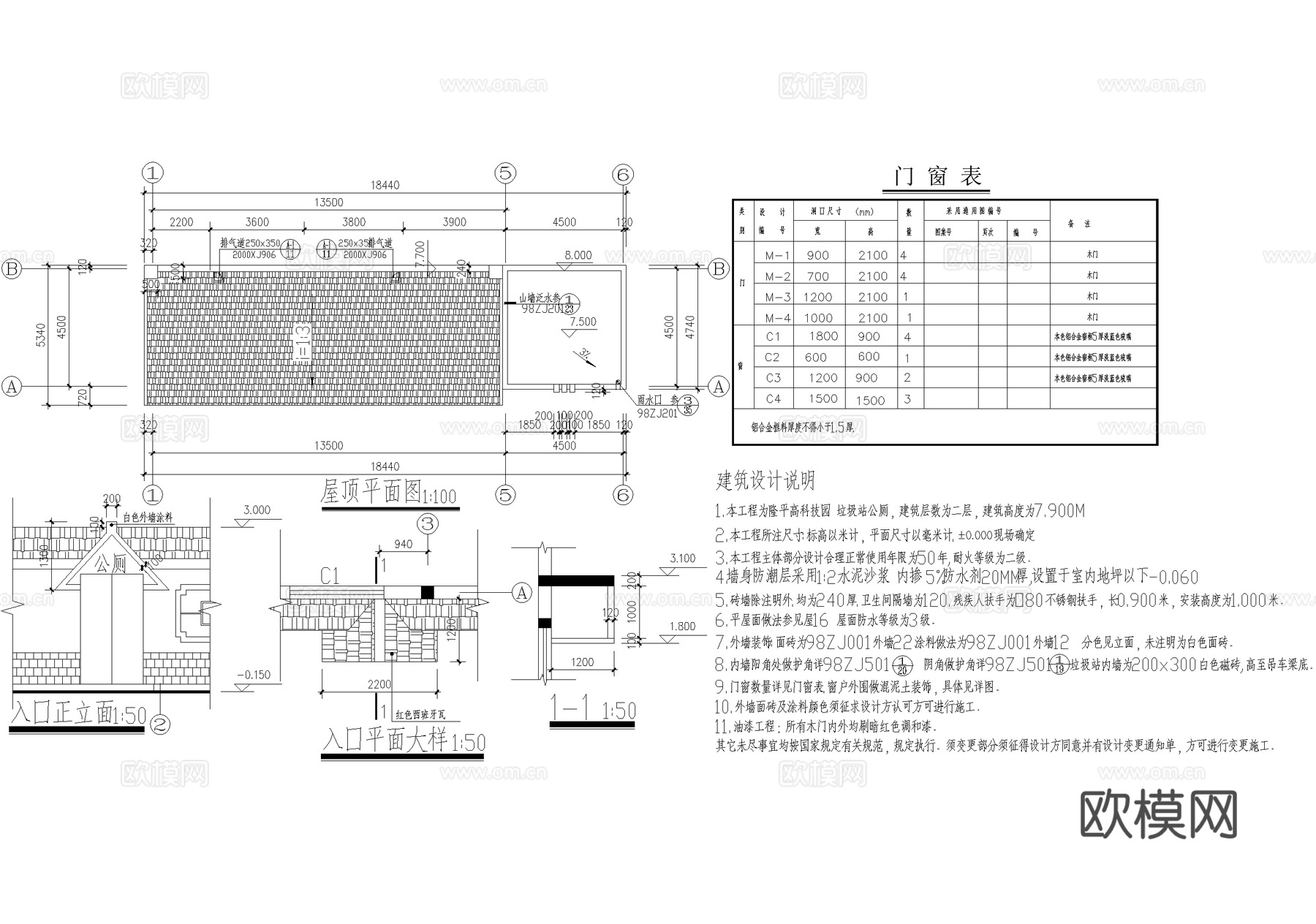
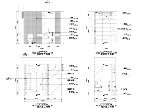
公共厕所垃圾站 二层洗手间卫生间cad施工图
ID:
5412216
公共厕所垃圾站 二层洗手间卫生间cad施工图 ID-5412216
所需欧币:
16
发布时间:
2026-02-24
下载请使用电脑登录欧模网,建议先收藏
收藏
分享
皮肤干燥
关注
为您推荐
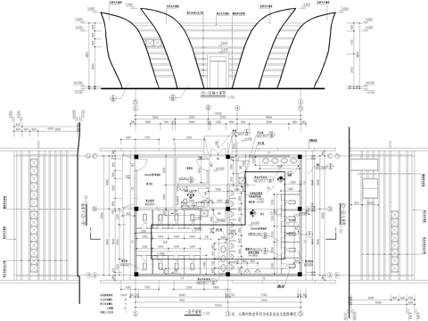
二层公共厕所建筑 卫生间洗手间 管理储藏室cad施工图
单层公共厕所建筑 卫生间洗手间 管理房cad施工图
单层公共厕所建筑 卫生间洗手间 管理房cad施工图
公共厕所建筑 洗手间管理房cad施工图
公共厕所建筑 洗手间管理房cad施工图
单层公共厕所建筑 卫生间洗手间 管理间工具间cad施工图
单层公共厕所建筑 卫生间洗手间 报刊管理室cad施工图
建筑给排水 公共厕所卫生间系统图cad施工图
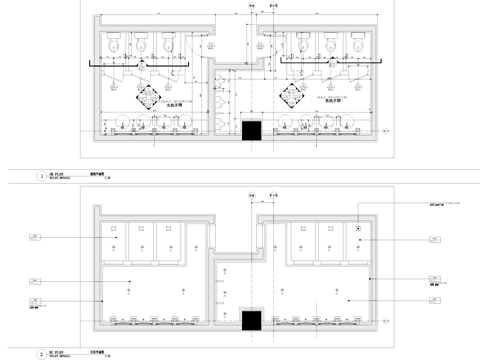
公共卫生间 公共厕所 户外公厕 公共洗手间 厕所 公厕cad施工图
中式公厕 单层公共厕所 仿古建筑 卫生间洗手间 管理房cad施工图
单层公共厕所建筑 卫生间洗手间 配电房配水房cad施工图
卫生间图块CAD图库cad施工图
更衣室卫生间洗手间立剖面CAD施工图cad施工图
厕所卫生间大样CAD施工图cad施工图
公共卫生间洗手间室内工装CAD施工图cad施工图
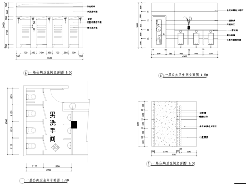
男洗手间公共卫生间室内工装CAD施工图cad施工图
二层食堂建筑CAD施工图集cad施工图
二层别墅建筑CAD施工图cad施工图
卫浴节点 卫生间墙面节点 卫生间平立面图 卫生间布局cad施工图
卫生间平面图 卫生间立面图 卫浴布局 卫生间节点cad施工图
点击加载更多
分享到
复制链接
保存海报
取消
请选择收藏夹
+新增收藏夹
新增收藏夹
取消
确认
退出查看