模型详情
1/5
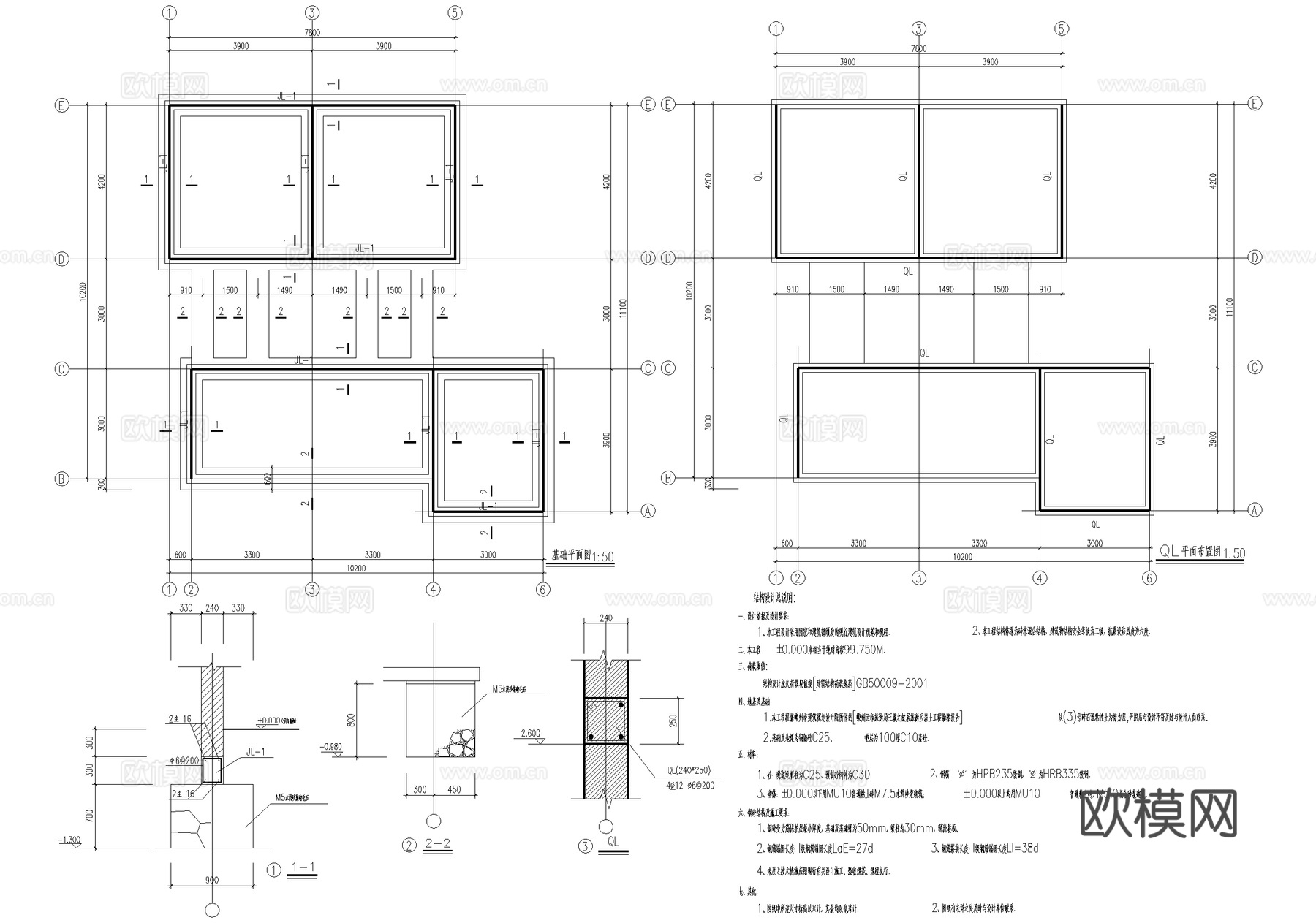
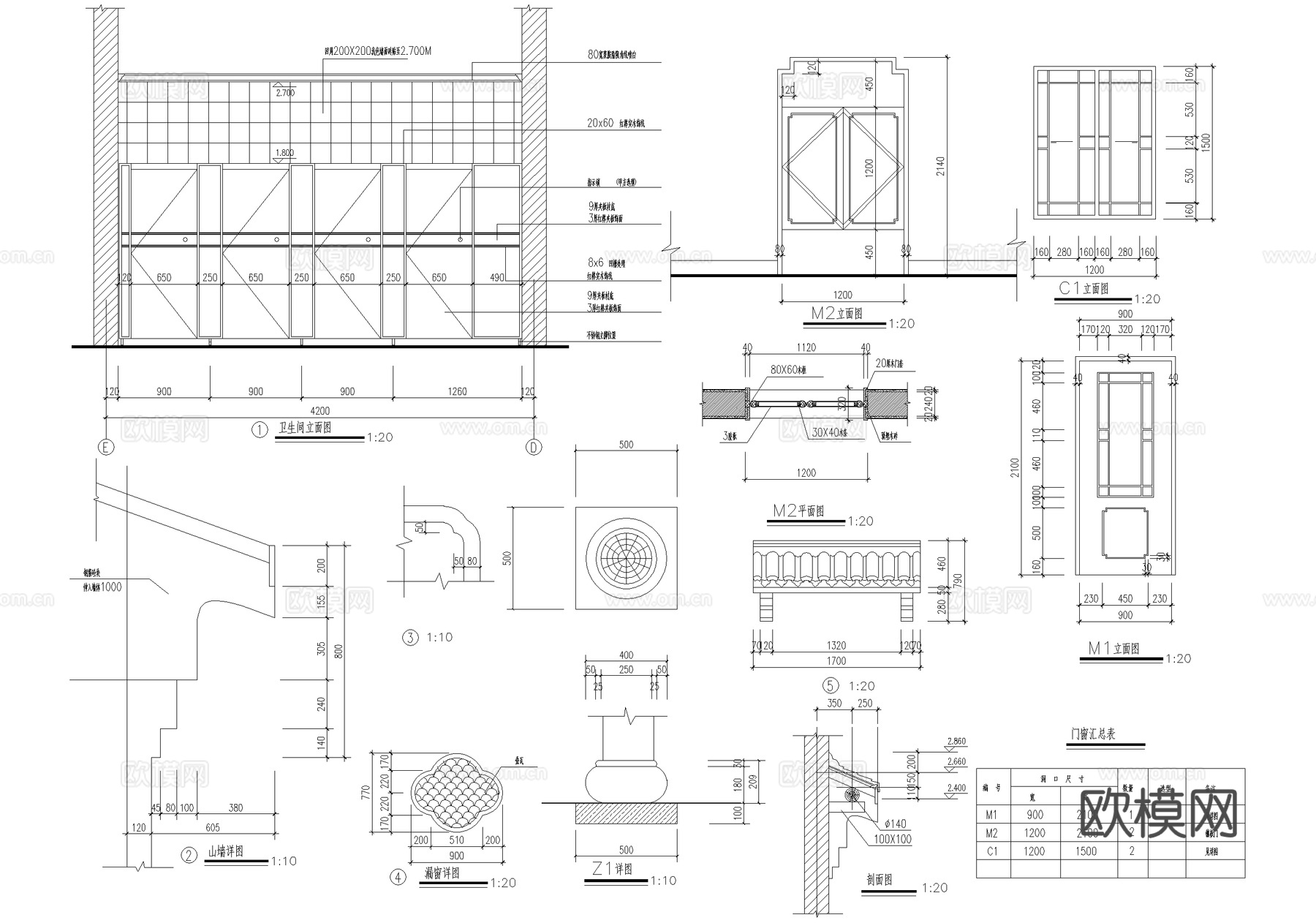
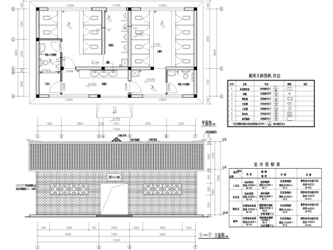
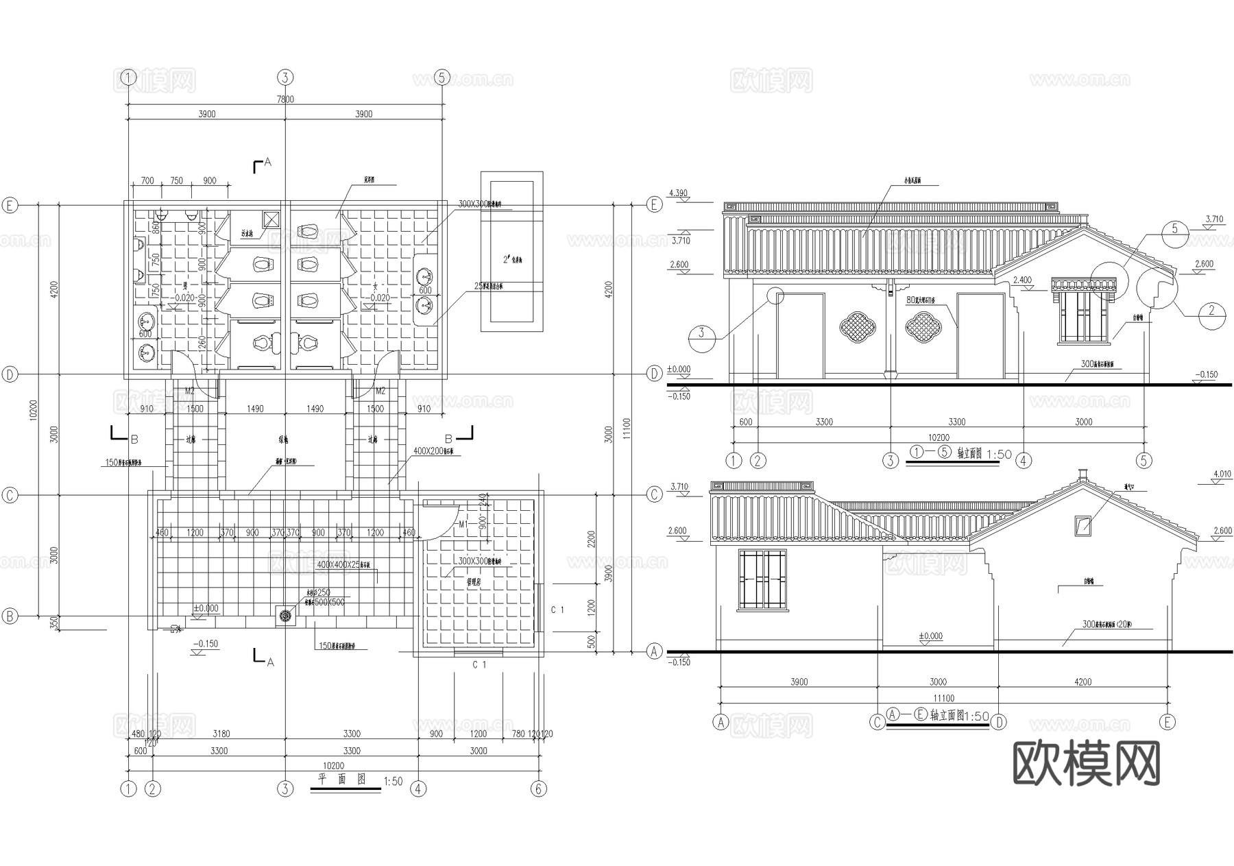
中式公厕 单层公共厕所 仿古建筑 卫生间洗手间 管理房cad施工图
ID:
5412220
中式公厕 单层公共厕所 仿古建筑 卫生间洗手间 管理房cad施工图 ID-5412220
所需欧币:
16
发布时间:
2026-02-24
下载请使用电脑登录欧模网,建议先收藏
收藏
分享
皮肤干燥
关注
为您推荐
单层公共厕所建筑 卫生间洗手间 管理房cad施工图
单层公共厕所建筑 卫生间洗手间 管理房cad施工图
单层公共厕所建筑 卫生间洗手间 管理间工具间cad施工图
单层公共厕所建筑 卫生间洗手间 报刊管理室cad施工图
公共厕所建筑 洗手间管理房cad施工图
公共厕所建筑 洗手间管理房cad施工图
单层公共厕所建筑 卫生间洗手间 配电房配水房cad施工图
二层公共厕所建筑 卫生间洗手间 管理储藏室cad施工图
公共卫生间 公共厕所 户外公厕 公共洗手间 厕所 公厕cad施工图
灌溉管理房建筑CAD施工图详图cad施工图
建筑给排水 公共厕所卫生间系统图cad施工图
单层食堂建筑CAD施工图cad施工图
单层民宿建筑施工图cad施工图
公共卫生间洗手间室内工装CAD施工图cad施工图
仿古建筑 公厕 厕所卫生间 川东北民居风格 砖木结构cad施工图
男洗手间公共卫生间室内工装CAD施工图cad施工图
中式单层四合院住宅建筑CAD施工图cad施工图
公共厕所垃圾站 二层洗手间卫生间cad施工图
单层车间工业建筑CAD施工图cad施工图
美丽公厕 厕所 公共厕所最新全套施工图cad施工图
点击加载更多
分享到
复制链接
保存海报
取消
请选择收藏夹
+新增收藏夹
新增收藏夹
取消
确认
退出查看