模型详情
1/2
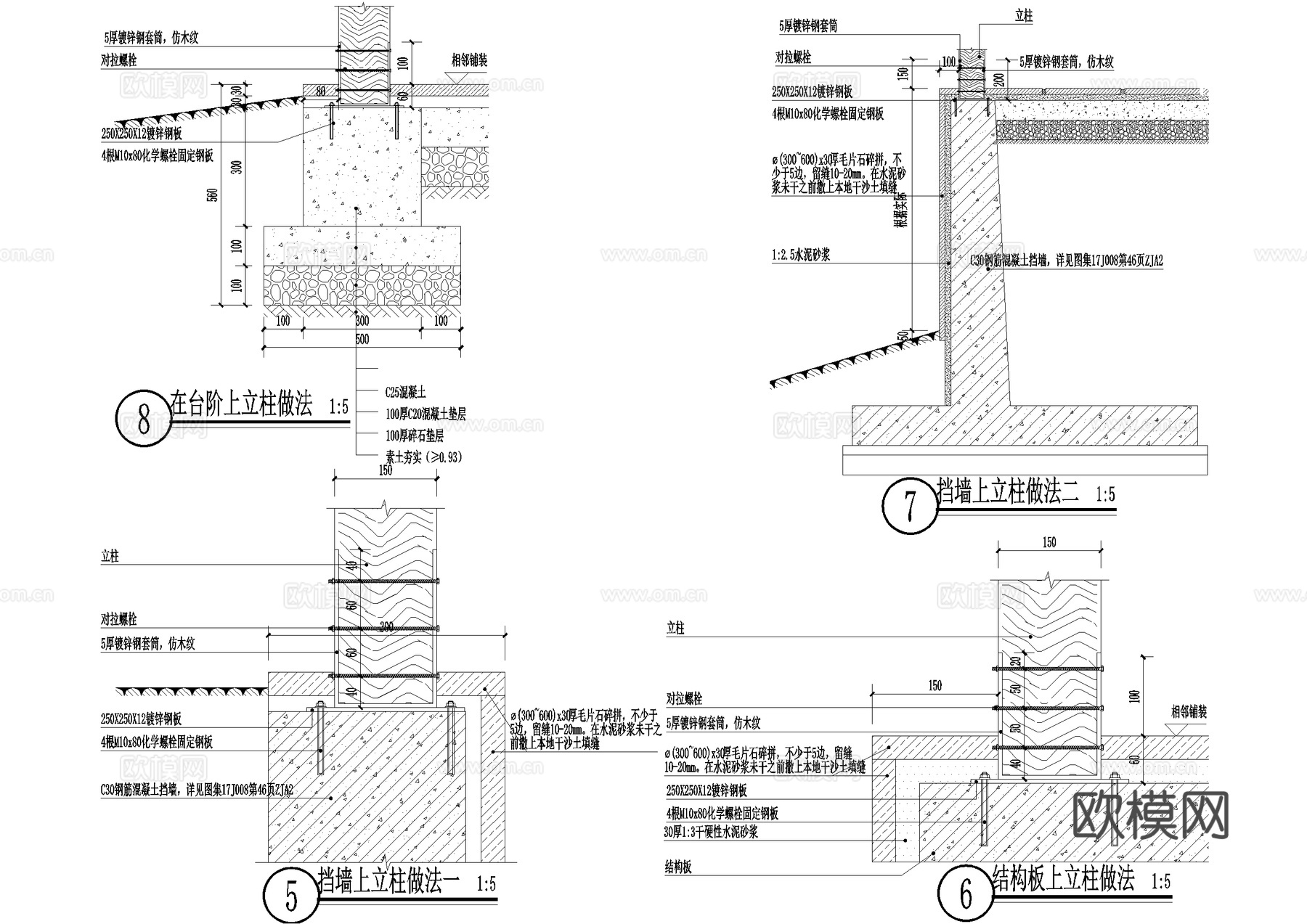
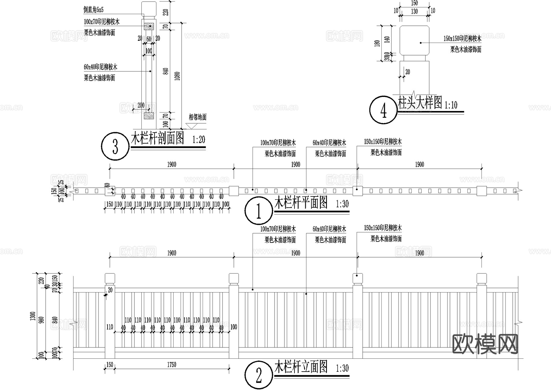
木栏杆 扶手 柱头立柱基础做法cad施工图
ID:
5412265
木栏杆 扶手 柱头立柱基础做法cad施工图 ID-5412265
所需欧币:
16
发布时间:
2026-02-24
下载请使用电脑登录欧模网,建议先收藏
收藏
分享
皮肤干燥
关注
为您推荐
木栈道 木栏杆 扶手cad施工图
木栈道 木栏杆 扶手cad施工图
铁艺栏杆 栏杆扶手cad施工图
木栏杆 扶手 木柱cad施工图
栏杆柱子柱头图块图库cad施工图
儿童器材 滑梯 沙坑基础图 排水做法 预埋件cad施工图
山地登山木栈道 栏杆扶手cad施工图
镀锌钢管不锈钢栏杆 木扶手 铁艺栏杆cad施工图
中式栏杆_仿木栏杆_栏杆扶手_不锈钢扶手_镀锌方钢_楼梯栏杆cad施工图
栏杆扶手立面图块CADcad施工图
景观天桥 栈桥 栈道 铁艺栏杆 栏杆扶手cad施工图
仿木栏杆 立柱柱顶 钢筋混凝土结构cad施工图
墙面吊顶隔墙卫生间节点立柱地台踏步木饰面工艺做法素材CAD图cad施工图
立柱图库cad施工图
无边框发光玻璃栏杆扶手节点CAD施工图cad施工图
精神堡垒基础结构CAD施工图cad施工图
屋面设备基础大样cad施工图
栏板 石栏杆 木栏杆 CAD施工图cad施工图
木平台 亲水台 观景台 钢结构平台 木栏杆扶手cad施工图
木栏杆cad施工图
点击加载更多
分享到
复制链接
保存海报
取消
请选择收藏夹
+新增收藏夹
新增收藏夹
取消
确认
退出查看