模型详情
1/1
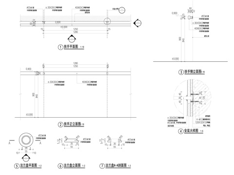
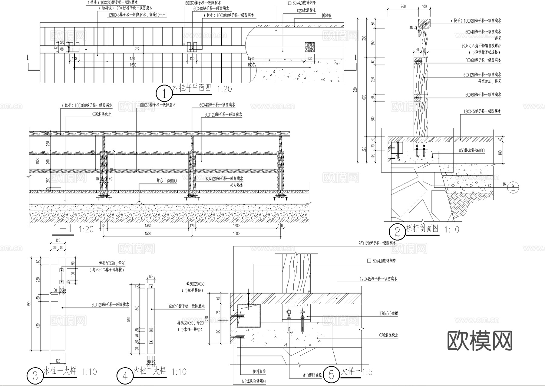
木栏杆 扶手 木柱cad施工图
ID:
5412268
木栏杆 扶手 木柱cad施工图 ID-5412268
所需欧币:
16
发布时间:
2026-02-24
下载请使用电脑登录欧模网,建议先收藏
收藏
分享
皮肤干燥
关注
为您推荐
木栈道 木栏杆 扶手cad施工图
木栈道 木栏杆 扶手cad施工图
铁艺栏杆 栏杆扶手cad施工图
山地登山木栈道 栏杆扶手cad施工图
镀锌钢管不锈钢栏杆 木扶手 铁艺栏杆cad施工图
中式栏杆_仿木栏杆_栏杆扶手_不锈钢扶手_镀锌方钢_楼梯栏杆cad施工图
栏杆扶手立面图块CADcad施工图
景观天桥 栈桥 栈道 铁艺栏杆 栏杆扶手cad施工图
木栏杆 扶手 柱头立柱基础做法cad施工图
无边框发光玻璃栏杆扶手节点CAD施工图cad施工图
栏板 石栏杆 木栏杆 CAD施工图cad施工图
木平台 亲水台 观景台 钢结构平台 木栏杆扶手cad施工图
木栏杆cad施工图
景观防腐木栏杆围栏扶手节点大样CAD施工图集 9套cad施工图
室外扶手栏杆大样图cad施工图
观景台 木平台 钢结构平台 叶脉叶片观景台 栏杆护栏扶手cad施工图
发光玻璃栏杆扶手外包石材节点CAD施工图cad施工图
玻璃栏杆不锈钢扶手景观节点CAD施工图集 10套cad施工图
楼梯栏杆扶手节点大样详图cad施工图
扶手cad施工图
点击加载更多
分享到
复制链接
保存海报
取消
请选择收藏夹
+新增收藏夹
新增收藏夹
取消
确认
退出查看