模型详情
1/3
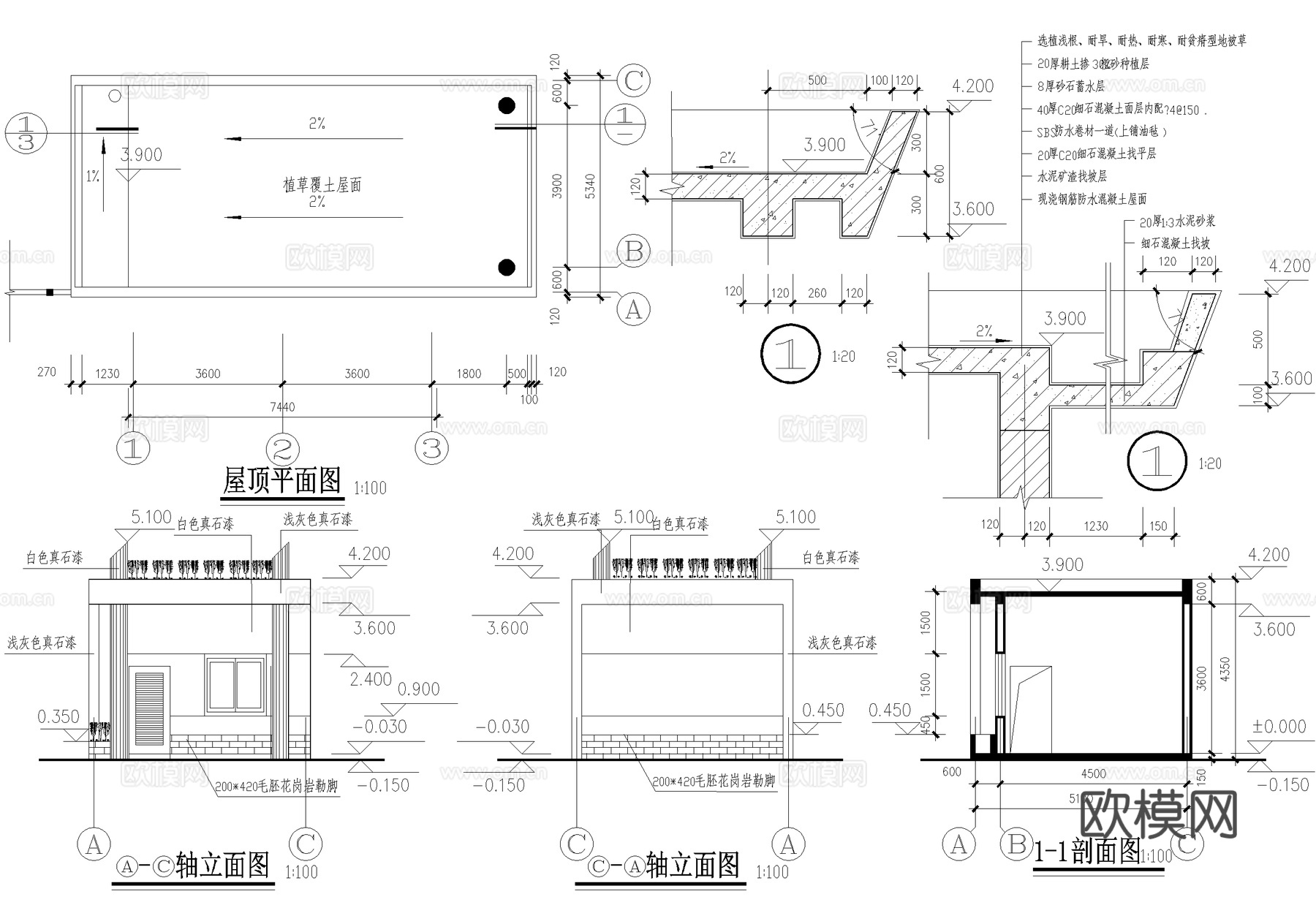
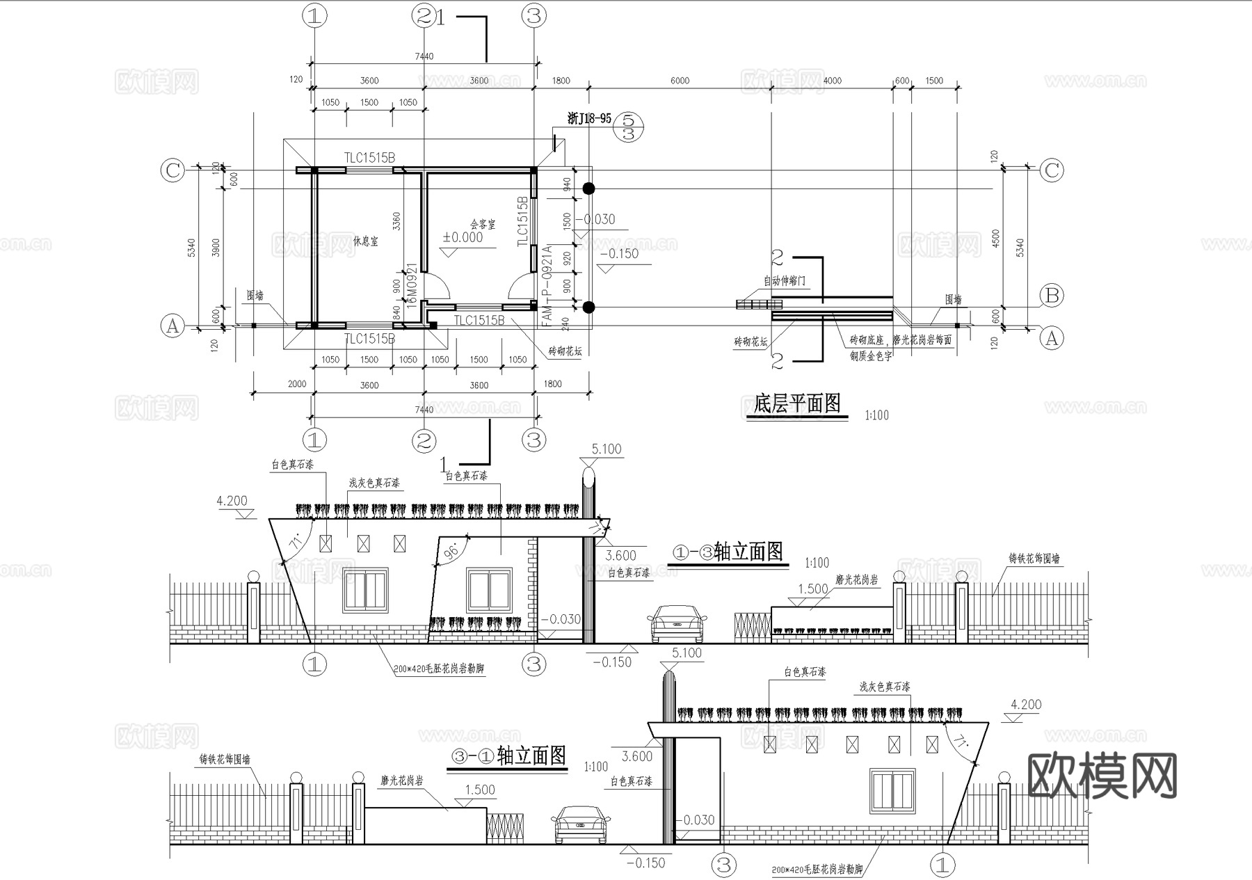
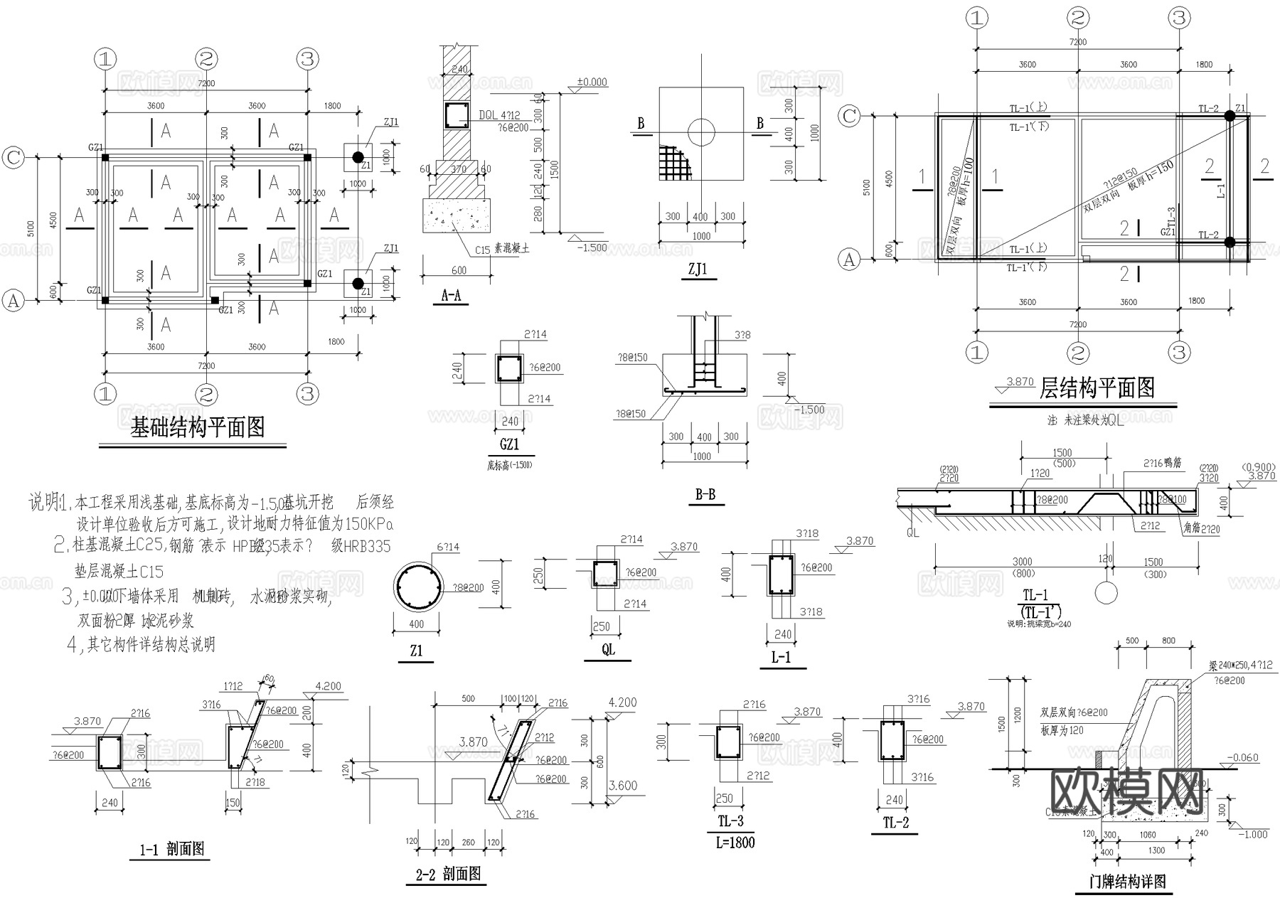
门卫室建筑 入口大门 会客室休息室 传达室门房值班室 警卫室cad施工图
ID:
5413103
门卫室建筑 入口大门 会客室休息室 传达室门房值班室 警卫室cad施工图 ID-5413103
所需欧币:
16
发布时间:
2026-02-24
下载请使用电脑登录欧模网,建议先收藏
收藏
分享
皮肤干燥
关注
为您推荐
门卫室建筑 入口大门 传达室门房值班室 警卫室cad施工图
门卫室建筑 入口大门 休息值班室传达室 门房警卫室cad施工图
门卫室建筑 入口大门 传达休息室值班室 门房警卫室cad施工图
门卫室建筑 入口大门 门房传达室保安室 值班室警卫室cad施工图
门卫室建筑 入口大门 传达室保安室门房 值班室警卫室岗亭cad施工图
门卫室建筑 入口大门 传达室门房值班室 警卫室 框架结构cad施工图
门卫室建筑入口大门 值班休息室配电间 门房传达室保安室警卫室cad施工图
门卫室建筑 入口大门 传达休息值班室 消防控制室 门房警卫室cad施工图
门卫室建筑 入口大门 值班休息工作室 传达室门房警卫室cad施工图
门头 入口大门 门卫室建筑 传达室保安室cad施工图
门头 入口大门 门卫室建筑 传达室保安室cad施工图
公园大门学校大门值班室门卫室公司大门传达室门卫CAD素材图库cad施工图
制衣厂值班室大门门卫室建筑CAD施工图cad施工图
工业厂区主入口传达室门房保安室建筑CAD施工图cad施工图
入口大门及传达室门卫建筑CAD施工图集 175套cad施工图cad施工图
工业厂区门卫室传达室保安房建筑CAD施工图cad施工图
工厂门房门卫室建筑结构CAD施工图cad施工图
竹子入口大门cad施工图
院门入口大门cad施工图
入口伸缩大门平立面大样CAD施工图cad施工图
点击加载更多
分享到
复制链接
保存海报
取消
请选择收藏夹
+新增收藏夹
新增收藏夹
取消
确认
退出查看