模型详情
1/1
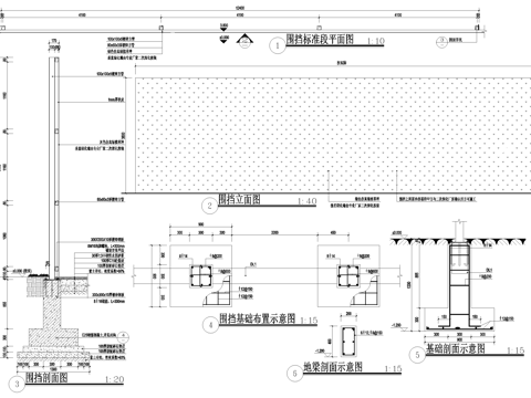
围挡 人工草皮围墙 logo大样cad施工图
ID:
5413118
围挡 人工草皮围墙 logo大样cad施工图 ID-5413118
所需欧币:
16
发布时间:
2026-02-24
下载请使用电脑登录欧模网,建议先收藏
收藏
分享
皮肤干燥
关注
为您推荐
庭院围墙 木围挡 实体围墙cad施工图
格栅围挡 庭院实体围墙cad施工图
小区庭院景观围墙围挡节点大样详图CAD施工图集 9套cad施工图
铁艺围墙 居住区格栅围挡 实体围墙cad施工图
仿真植物人造草皮围挡cad施工图
仿木纹格栅围挡 实体庭院围墙cad施工图
绿色仿真绿植草坪围挡 草皮垂直绿化墙cad施工图
铁艺围墙景观节点大样CAD施工图cad施工图
景观围墙与道路节点大样CAD施工图cad施工图
菜地菜园围挡篱笆栅栏景观节点大样CAD施工图集 9套cad施工图
菜地菜园围栏围挡CAD施工图cad施工图
菜地菜园围栏围挡CAD施工图cad施工图
缘石围墙台阶地面节点大样CAD施工图cad施工图
灰色仿真绿植草坪围挡 垂直绿化墙 施工场地围墙cad施工图
围墙cad施工图
围墙cad施工图
围墙cad施工图
围墙cad施工图
园林景观围墙栏杆大样详图CAD施工图集 40套cad施工图
竹篱笆围栏围挡栏杆CAD施工图cad施工图
点击加载更多
分享到
复制链接
保存海报
取消
请选择收藏夹
+新增收藏夹
新增收藏夹
取消
确认
退出查看