模型详情
1/1
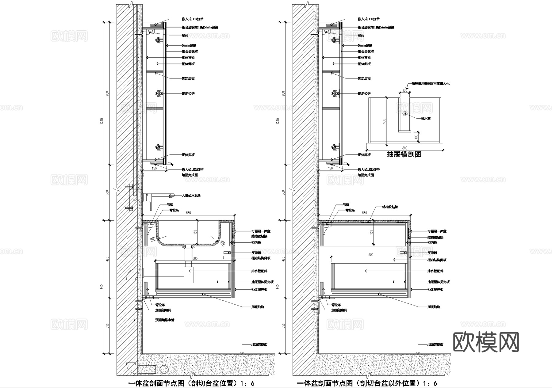
洗手台节点 一体盆剖面 洗手池洗手盆洁柜cad施工图
ID:
5413784
洗手台节点 一体盆剖面 洗手池洗手盆洁柜cad施工图 ID-5413784
所需欧币:
16
发布时间:
2026-02-24
下载请使用电脑登录欧模网,建议先收藏
收藏
分享
皮肤干燥
关注
为您推荐
洗手台节点 一体盆台盆剖面 洗手池洗手盆 洁柜镜子cad施工图
洗手台节点 剖面图 洗手池洗手盆 洁柜镜子cad施工图
洗手台节点 一体式台盆 洗手池洗手盆 洁柜cad施工图
洗手台节点 洗手池洗手盆 洁柜镜子cad施工图
洗手台洗手池洗手盆洁柜台上下盆柱盆一体盆节点CAD施工图集cad施工图
洗手台节点 台下盆 洗手池洗手盆 洁柜镜子cad施工图
洗手台节点 台下盆剖面图 洗手池洗手盆cad施工图
洗手台节点 台下盆剖面图 洗手池洗手盆镜子cad施工图
洗手台节点 台上盆 洗手池洗手盆 镜子cad施工图
洗手台节点 洗手池洗手盆 卫生间节点 CAD施工图cad施工图
洗手盆节点 洗手台节点cad施工图
户外洗手池洗手盆节点大样CAD施工图cad施工图
洗手台卫生间节点隔断洗手池洗手盆柜子小便器隔板CADcad施工图
洗手台节点 三角形台上盆 洗手池洗手盆镜子cad施工图
洗手台洗手池洗手盆浴缸大样镜子卫生间节点CADcad施工图
卫浴节点 镜子节点 台盆洗手盆节点 卫生间卫浴柜cad施工图
洗手台洗手池洗手盆小便器小便池大样镜子卫生间节点CADcad施工图
卫生间洗手台卫浴节点图台下盆剖面详图节点大样CAD素材图库cad施工图
坡屋顶 剖面节点cad施工图
坡屋顶 剖面节点cad施工图
点击加载更多
分享到
复制链接
保存海报
取消
请选择收藏夹
+新增收藏夹
新增收藏夹
取消
确认
退出查看