模型详情
1/1
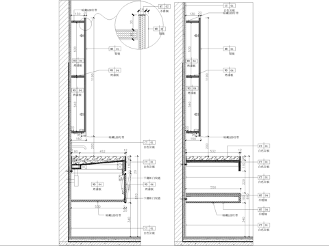
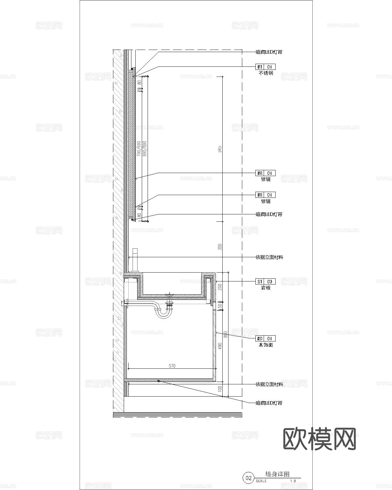
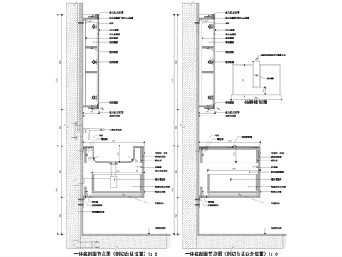
洗手盆节点 洗手台节点cad施工图
ID:
5425004
洗手盆节点 洗手台节点cad施工图 ID-5425004
所需欧币:
16
发布时间:
2026-03-05
下载请使用电脑登录欧模网,建议先收藏
收藏
分享
乐死你
关注
为您推荐
洗手台节点 洗手池洗手盆 卫生间节点 CAD施工图cad施工图
卫浴节点 镜子节点 台盆洗手盆节点 卫生间卫浴柜cad施工图
洗手台节点 洗手池洗手盆 洁柜镜子cad施工图
洗手台节点 台上盆 洗手池洗手盆 镜子cad施工图
样板间洗手台节点cad施工图
吊顶节点 软膜天花节点cad施工图
46套卫浴节点图洗手盆淋浴隔断等卫浴CAD节点图最新整理合集cad施工图
门节点cad施工图
洗手台节点 台下盆剖面图 洗手池洗手盆cad施工图
硬包节点 墙面硬包节点cad施工图
沙盘节点cad施工图
景观节点cad施工图
户外洗手池洗手盆节点大样CAD施工图cad施工图
洗手台节点 一体盆剖面 洗手池洗手盆洁柜cad施工图
洗手台节点 台下盆 洗手池洗手盆 洁柜镜子cad施工图
洗手台节点 剖面图 洗手池洗手盆 洁柜镜子cad施工图
暗藏灯带节点 吊顶节点 顶面节点 现代吊顶 弧形吊顶cad施工图
吊顶节点 亚克力板天花节点cad施工图
排水沟节点 盖板 井盖节点 CAD施工图cad施工图
吊顶节点 木饰面天花节点cad施工图
点击加载更多
分享到
复制链接
保存海报
取消
请选择收藏夹
+新增收藏夹
新增收藏夹
取消
确认
退出查看