模型详情
1/1
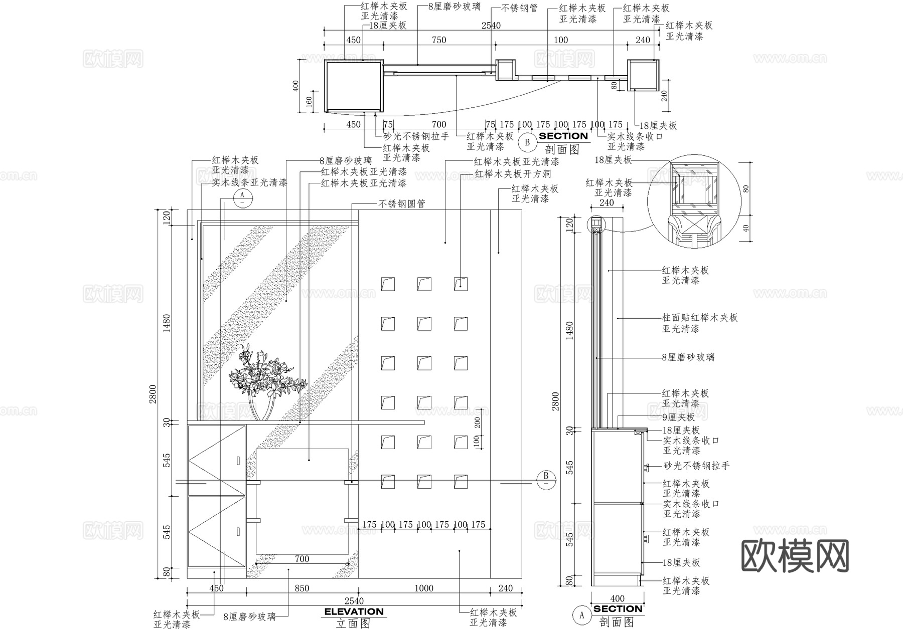
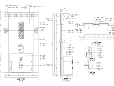
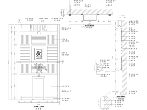
玄关隔断柜子节点cad施工图
ID:
5413846
玄关隔断柜子节点cad施工图 ID-5413846
所需欧币:
16
发布时间:
2026-02-24
下载请使用电脑登录欧模网,建议先收藏
收藏
分享
皮肤干燥
关注
为您推荐
玄关隔断节点 柜子cad施工图
玄关隔断节点 柜子cad施工图
玄关隔断柜子节点cad施工图
玄关隔断节点 柜子置物架cad施工图
中式玄关隔断节点 柜子鞋柜cad施工图
中式玄关隔断节点 柜子案几鞋柜cad施工图
玄关隔断节点cad施工图
中式玄关屏风隔断节点cad施工图
柜子节点cad施工图
玄关隔断节点 方几案几cad施工图
入户柜子鞋柜 柜体节点 玄关柜节点cad施工图cad施工图
柜子节点 装饰柜 玄关柜 柜体节点cad施工图
新中式玄关隔断节点 桌子屏风cad施工图
柜子节点 储藏柜 柜子类 现代柜子cad施工图
玄关背景造型墙、入户玄关鞋柜详图、玄关端景墙柜子、鞋柜节点cad施工图
柜子平面立面图 储物间柜子 简易柜子 柜子节点cad施工图
层板柜 鞋柜 柜子节点 木饰面柜子cad施工图
转角玄关柜节点cad施工图
眼镜店平立面及柜子节点CAD施工图cad施工图
定制柜 柜子节点 现代健身房柜子 储物柜cad施工图
点击加载更多
分享到
复制链接
保存海报
取消
请选择收藏夹
+新增收藏夹
新增收藏夹
取消
确认
退出查看