模型详情
1/1
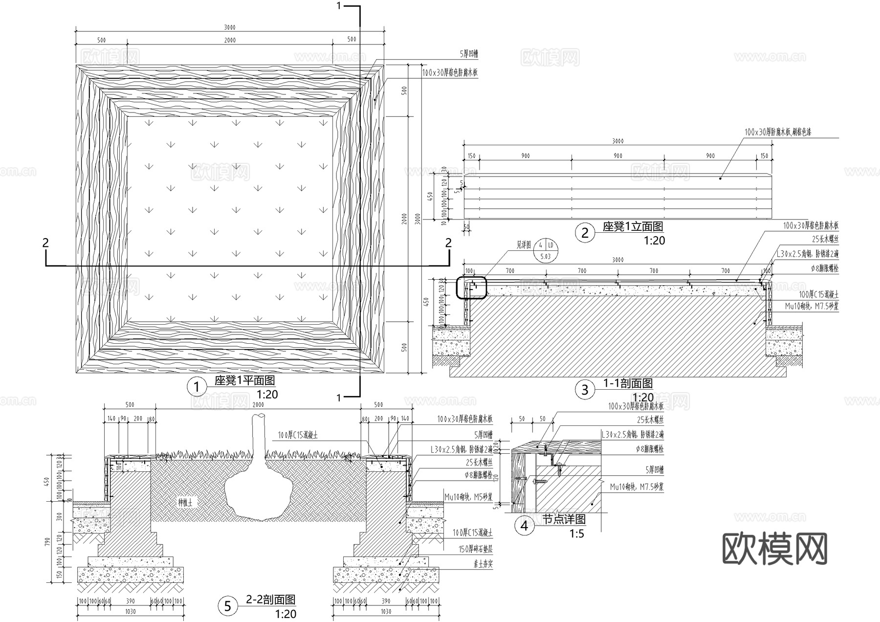
树池坐凳 方形矩形树池座椅 防腐木坐凳 种植池cad施工图
ID:
5413945
树池坐凳 方形矩形树池座椅 防腐木坐凳 种植池cad施工图 ID-5413945
所需欧币:
16
发布时间:
2026-02-24
下载请使用电脑登录欧模网,建议先收藏
收藏
分享
皮肤干燥
关注
为您推荐
树池坐凳 方形矩形树池座椅 种植池cad施工图
树池坐凳 方形矩形树池座椅 种植池cad施工图
方形矩形树池座椅 种植池防腐木坐凳cad施工图
圆形树池坐凳 种植池座椅cad施工图
树池 方形矩形种植池cad施工图
树池 篦子 方形矩形镂空盖板 种植池cad施工图
树池 方形矩形树箱花池 种植池cad施工图
树池 方形矩形种植池 砾石散铺cad施工图
树池坐凳平面CADcad施工图
种植池 花坛 异形花池 防腐木坐凳cad施工图
方形树池cad施工图
树池种植池详图CAD施工图cad施工图
方形树池 篦子cad施工图
广场剖面图灯带挡土墙树池坐凳景观CAD施工图cad施工图
花箱 不锈钢花池 种植池 圆形廊架 组合构架景观坐凳cad施工图
圆形树池 种植池 砾石散铺cad施工图
景观圆形树池种植池平面图块图库CAD施工图集cad施工图
新中式防腐木坐凳景观座凳cad施工图
不锈钢花池 花箱 种植池 树池 CAD施工图cad施工图
室内外休闲区玻璃钢防腐木石材木树池座椅坐凳cad施工图
点击加载更多
分享到
复制链接
保存海报
取消
请选择收藏夹
+新增收藏夹
新增收藏夹
取消
确认
退出查看