模型详情
1/1
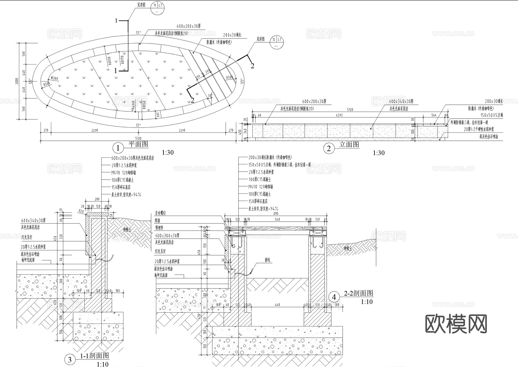
种植池 花坛 异形花池 防腐木坐凳cad施工图
ID:
5412284
种植池 花坛 异形花池 防腐木坐凳cad施工图 ID-5412284
所需欧币:
16
发布时间:
2026-02-24
下载请使用电脑登录欧模网,建议先收藏
收藏
分享
皮肤干燥
关注
为您推荐
种植池 花池 花坛cad施工图
花池 种植池 花坛cad施工图
花池 花箱 种植池 花坛cad施工图
花池 花箱 种植池 花坛cad施工图
花箱 移动花池 种植池 花坛cad施工图
花箱 花钵 花池 花坛 种植池cad施工图
蜂巢花箱蜜蜂雕塑 花坛 异形花池 种植池 CAD施工图cad施工图
花池 跌级叠级台阶式 种植池 花坛cad施工图
可移动花箱 不锈钢花池 种植池 花坛 CAD施工图cad施工图
花箱 种植池 花坛 CAD施工图cad施工图
树池坐凳 方形矩形树池座椅 防腐木坐凳 种植池cad施工图
花箱 不锈钢花池 种植池 圆形廊架 组合构架景观坐凳cad施工图
方形矩形树池座椅 种植池防腐木坐凳cad施工图
不锈钢花池 可移动花池 花箱 种植池cad施工图
树池 方形矩形树箱花池 种植池cad施工图
叠级层级景观花池花坛节点CAD施工图cad施工图
不锈钢花池 花箱 种植池 树池 CAD施工图cad施工图
圆形树池坐凳 种植池座椅cad施工图
移动花箱 不锈钢花池 种植池 CAD施工图cad施工图
花箱 种植箱 花坛cad施工图
点击加载更多
分享到
复制链接
保存海报
取消
请选择收藏夹
+新增收藏夹
新增收藏夹
取消
确认
退出查看