模型详情
1/5
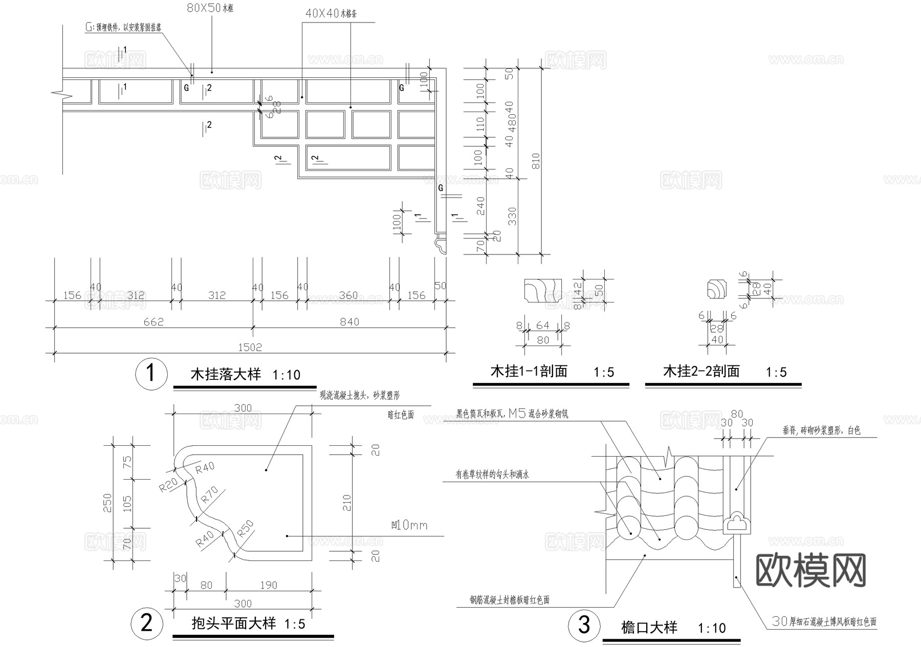
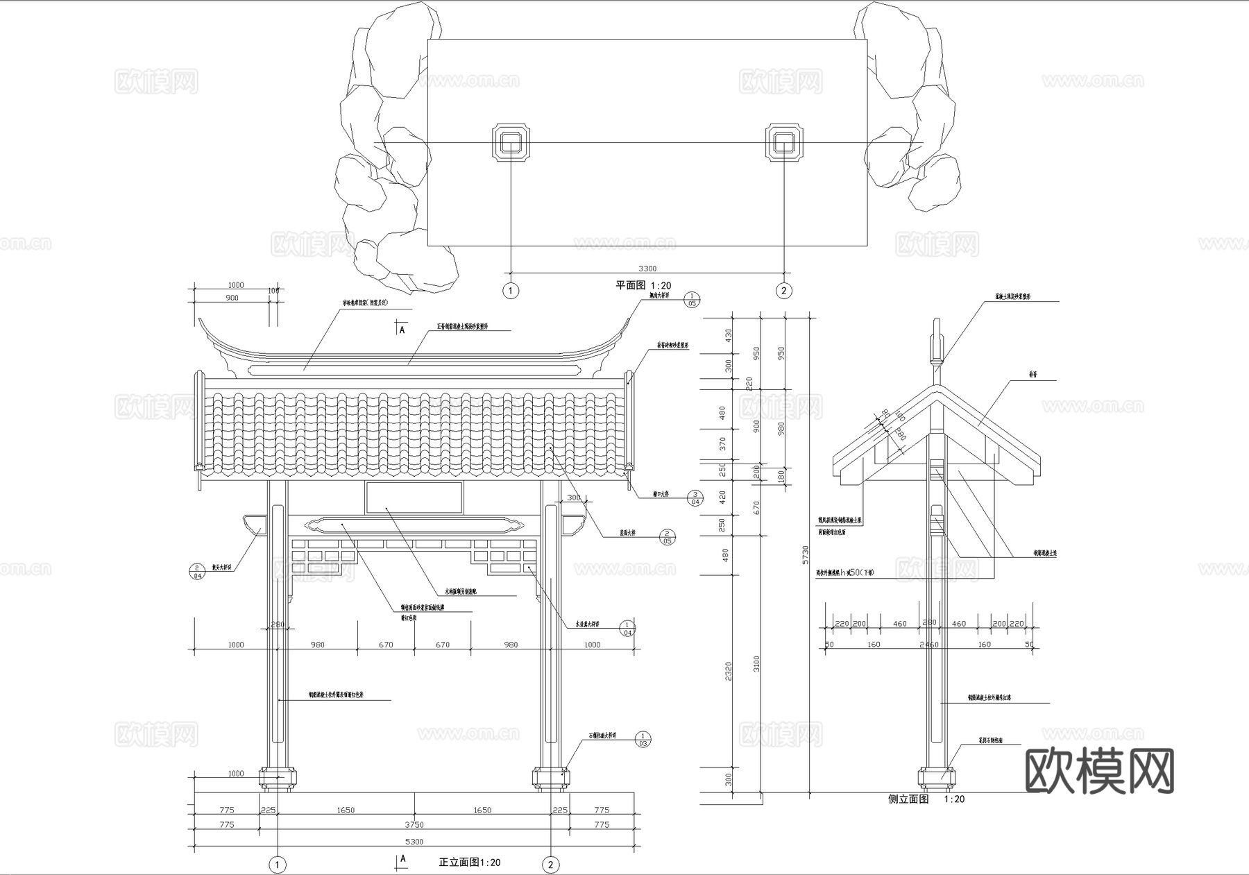
中式门头 垂花门仿古建筑 门楼 庭院入口大门 入户门cad施工图
ID:
5414031
中式门头 垂花门仿古建筑 门楼 庭院入口大门 入户门cad施工图 ID-5414031
所需欧币:
16
发布时间:
2026-02-24
下载请使用电脑登录欧模网,建议先收藏
收藏
分享
皮肤干燥
关注
为您推荐
新中式门头 庭院入口大门 仿古建筑门廊 门楼 入户门cad施工图
新中式门头 庭院入口大门 门楼 仿古建筑门廊 入户门cad施工图
门头 庭院入口大门 门廊 入户门 门楼cad施工图
中式门头 大门 门楼 垂花门 古建筑 CAD施工图cad施工图
门头 入口大门 门楼 乡村景观庭院大门cad施工图
新中式门头 门楼 景观入口大门 仿古建筑门廊cad施工图
新中式门头 庭院入口大门 门楼 古建门廊院墙 入户门cad施工图
新中式门头 庭院入口大门 门楼 古建门廊院墙 入户门cad施工图
门头 小区入口大门 门楼cad施工图
仿古垂花门cad施工图
门头 庭院大门 乡村景观铁艺门 入口大门cad施工图
中式庭院入口门楼门头围墙节点大样CAD施工详图cad施工图
菜地菜园庭院入口门头景观CAD施工图cad施工图
竹子入口大门cad施工图
院门入口大门cad施工图
门头 入口大门 门卫室建筑 传达室保安室cad施工图
门头 入口大门 门卫室建筑 传达室保安室cad施工图
乡村、庭院景观入口院门入户门节点CAD施工图集 10套cad施工图
入口大门及传达室门卫建筑CAD施工图集 175套cad施工图cad施工图
中式垂花门古建图块图库CAD施工图cad施工图
点击加载更多
分享到
复制链接
保存海报
取消
请选择收藏夹
+新增收藏夹
新增收藏夹
取消
确认
退出查看