模型详情
1/1
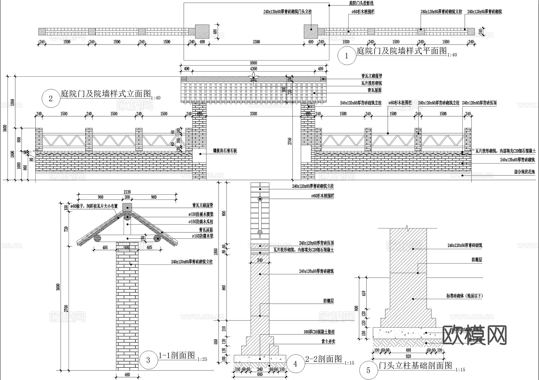
新中式门头 庭院入口大门 门楼 古建门廊院墙 入户门cad施工图
ID:
5414030
新中式门头 庭院入口大门 门楼 古建门廊院墙 入户门cad施工图 ID-5414030
所需欧币:
16
发布时间:
2026-02-24
下载请使用电脑登录欧模网,建议先收藏
收藏
分享
皮肤干燥
关注
为您推荐
新中式门头 庭院入口大门 门楼 古建门廊院墙 入户门cad施工图
门头 庭院入口大门 门廊 入户门 门楼cad施工图
新中式门头 庭院入口大门 门楼 仿古建筑门廊 入户门cad施工图
新中式门头 庭院入口大门 仿古建筑门廊 门楼 入户门cad施工图
新中式门头 门楼 景观入口大门 仿古建筑门廊cad施工图
门头 入口大门 门楼 乡村景观庭院大门cad施工图
中式门头 垂花门仿古建筑 门楼 庭院入口大门 入户门cad施工图
门头 小区入口大门 门楼cad施工图
门头 庭院大门 乡村景观铁艺门 入口大门cad施工图
中式门头 大门 门楼 垂花门 古建筑 CAD施工图cad施工图
中式庭院入口门楼门头围墙节点大样CAD施工详图cad施工图
中式小院入口将军门廊架CAD施工图cad施工图
菜地菜园庭院入口门头景观CAD施工图cad施工图
庭院门及院墙施工图cad施工图
竹子入口大门cad施工图
中式寺庙 山门古建大门门头cad施工图
院门入口大门cad施工图
乡村、庭院景观入口院门入户门节点CAD施工图集 10套cad施工图
入口牌坊古建筑CAD施工详图cad施工图
院门乡村庭院门院子门头大门围墙景观入口花园门头庭节点CADcad施工图
点击加载更多
分享到
复制链接
保存海报
取消
请选择收藏夹
+新增收藏夹
新增收藏夹
取消
确认
退出查看