模型详情
1/8
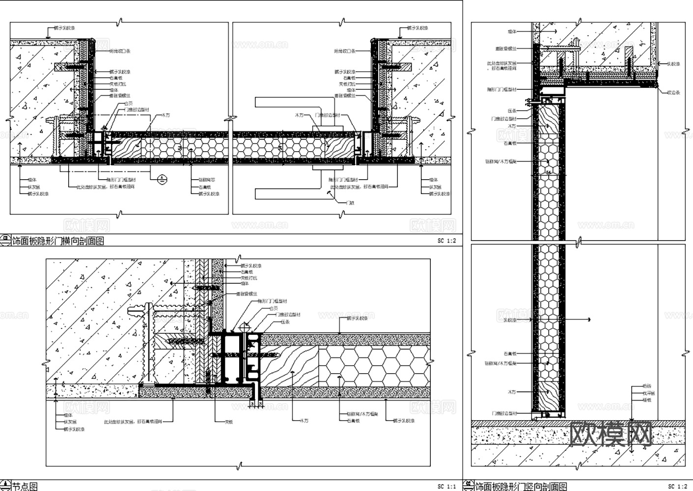
32款现代风格暗门隐形门CAD节点图最新整理合集cad施工图
ID:
5431144
32款现代风格暗门隐形门CAD节点图最新整理合集cad施工图 ID-5431144
所需欧币:
86
发布时间:
2026-03-10
下载请使用电脑登录欧模网,建议先收藏
收藏
分享
大可
关注
为您推荐
180个地面CAD节点图最新整理合集cad施工图
100套门窗节点大样CAD图纸最新整理合集cad施工图
110各类隔墙做法节点墙体CAD施工图最新整理合集cad施工图
隐形门节点 石材暗门 防火门 CAD施工图cad施工图
10套金属铝板CAD节点图最新整理合集cad施工图
65款护栏栏杆扶手CAD节点图最新整理合集cad施工图
20套玻璃类隔断CAD节点详图最新整理合集cad施工图
660套现代风格吊顶节点大样图最新整理合集cad施工图
11套玻璃护栏节点图2026最新整理合集cad施工图
隐形门节点cad施工图
200个石材节点大样CAD施工图最新整理合集cad施工图
涂料铝木隐形门暗门节点大样详图CAD施工图集cad施工图
17款窗帘盒节点CAD图纸最新整理合集cad施工图cad施工图
46套卫浴节点图洗手盆淋浴隔断等卫浴CAD节点图最新整理合集cad施工图
隐形门节点洗手间暗门钢化玻璃门CADcad施工图
24套现代风格幼儿园早教中心CAD施工图最新整理合集cad施工图
23套前台接待台吧台CAD节点大样施工图最新整理合集cad施工图
18套食堂建筑cad图纸2026最新整理合集cad施工图
10套文创商店CAD施工图最新整理合集cad施工图
石材暗门节点cad施工图
点击加载更多
分享到
复制链接
保存海报
取消
请选择收藏夹
+新增收藏夹
新增收藏夹
取消
确认
退出查看