模型详情
1/5
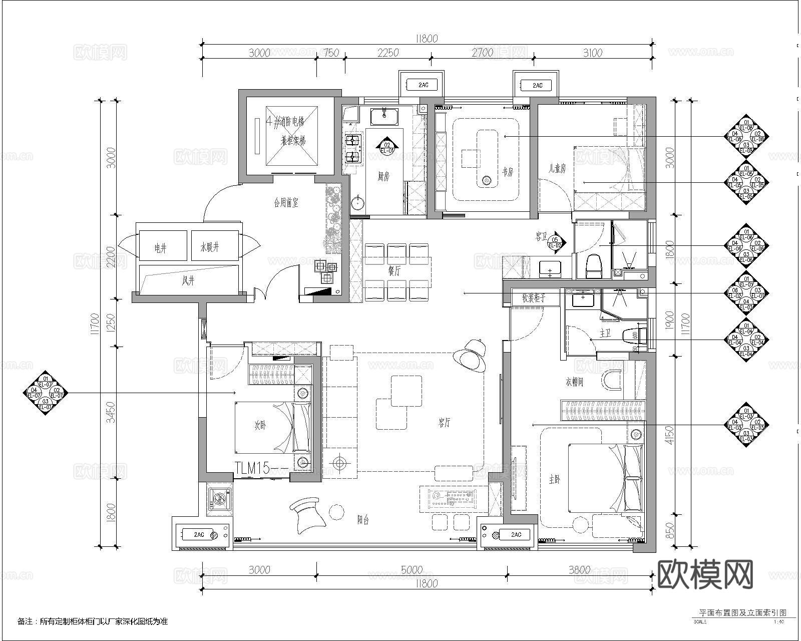
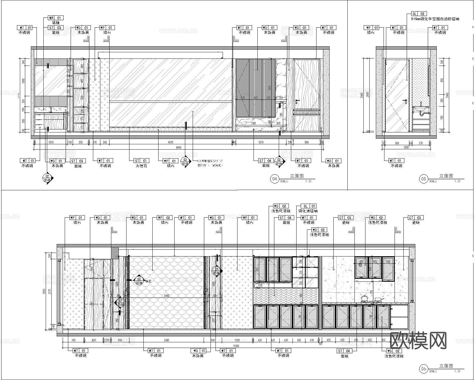
样板间效果图 施工图 平面 立面 节点cad施工图
ID:
5425016
样板间效果图 施工图 平面 立面 节点cad施工图 ID-5425016
所需欧币:
16
发布时间:
2026-03-05
下载请使用电脑登录欧模网,建议先收藏
收藏
分享
乐死你
关注
为您推荐
样板间效果图 施工图 平面 立面 节点cad施工图
样板间吧台平面立面节点.cad施工图
男更储物柜平面立面节点cad施工图
样板间平面施工图cad施工图
植物平面立面图库cad施工图
样板间岛台节点cad施工图
公卫平面布局 卫浴节点 卫生间立面图 墙面节点cad施工图
儿童造型柜立面和节点cad施工图
卫生间立面图 墙面节点 卫生间平面布局 卫浴节点cad施工图
样板间洗手台节点cad施工图
会议中心景观绿化平面及节点CAD施工图集cad施工图
门立面节点大样图库cad施工图
电视柜立面节点cad施工图
售楼部男卫洗手台平面立面节点cad施工图
吧柜 石材吧台 水吧台 吧台平面立面图 吧台节点cad施工图cad施工图
眼镜店平立面及柜子节点CAD施工图cad施工图
10套现代奢华住宅样板间大宅设计施工图效果图平面图立面图cad施工图
样板间浴室柜节点cad施工图
园林景观局部节点平面图块图库CAD施工图集cad施工图cad施工图
天花吊顶平面剖面节点详图CAD素材图库cad施工图cad施工图
点击加载更多
分享到
复制链接
保存海报
取消
请选择收藏夹
+新增收藏夹
新增收藏夹
取消
确认
退出查看