模型详情
1/3
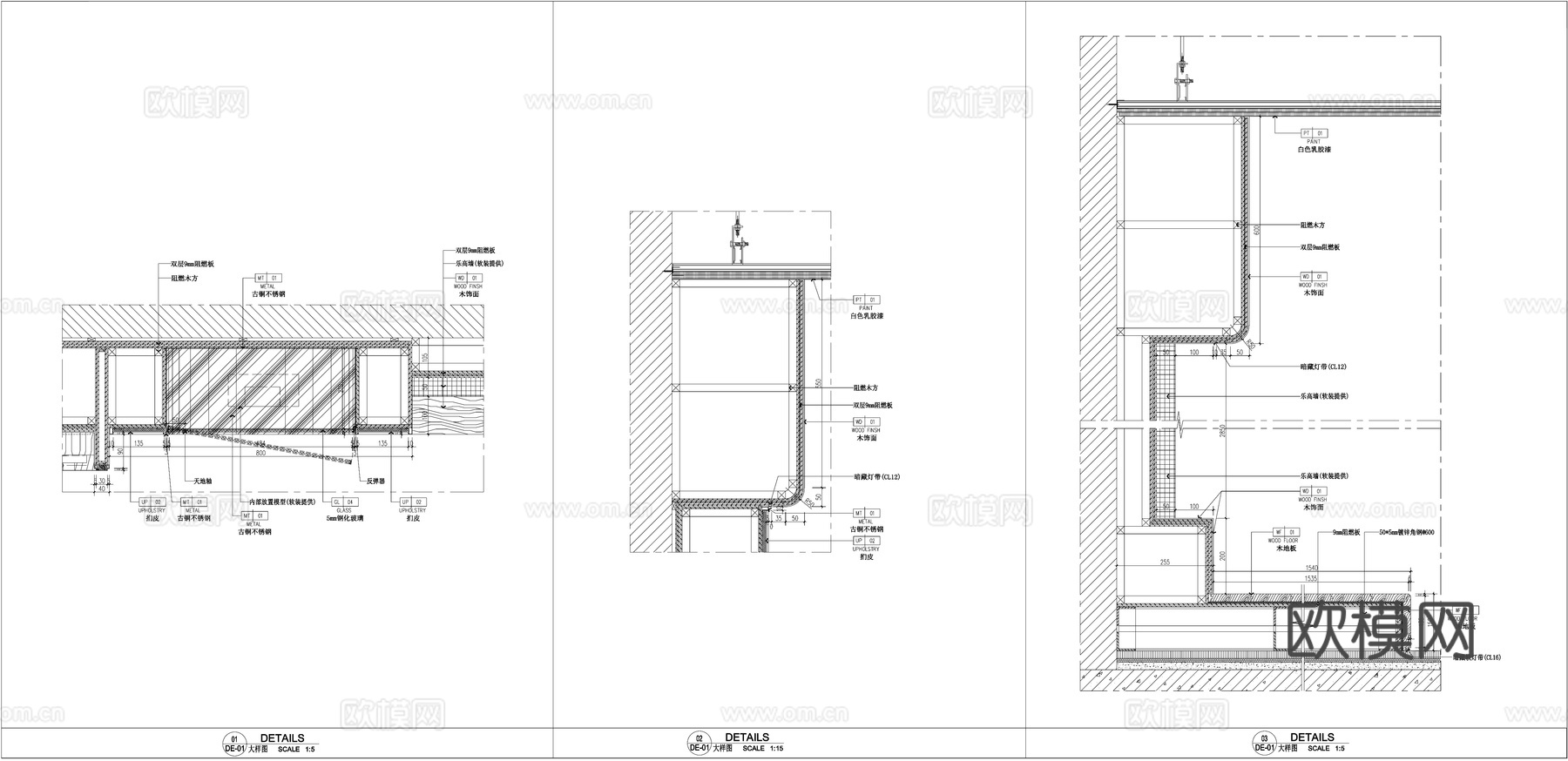
墙面节点 儿童游乐场乐高墙 装饰墙面cad施工图
ID:
5431072
墙面节点 儿童游乐场乐高墙 装饰墙面cad施工图 ID-5431072
所需欧币:
36
发布时间:
2026-03-10
下载请使用电脑登录欧模网,建议先收藏
收藏
分享
妮子1973
关注
为您推荐
墙面节点 墙面凿洞节点 儿童室内墙面装饰cad施工图
扪皮墙面 餐厅背景墙 装饰墙面 墙面节点cad施工图
儿童游乐区墙面 墙面立面图 墙面节点 护墙板cad施工图
墙面装饰 墙面节点 石材立体墙面 L型石材墙面cad施工图
墙纸饰面墙面 墙面剖面图 墙面节点cad施工图
铝板墙面节点CAD施工图cad施工图
硬包节点 墙面硬包节点cad施工图
现代墙面 墙面石材铺装 石材墙面 墙面节点cad施工图
影视厅墙面节点 影视厅平立面图 墙面布局 墙面节点cad施工图
铝单板发光墙面节点CAD施工图cad施工图
现代墙面 壁挂电视墙 烤漆板墙面 墙面节点cad施工图
铝单板墙身墙面节点CAD施工图cad施工图
墙面节点大样CAD施工详图cad施工图
电视背景墙 现代墙面 扪皮墙面 墙面节点cad施工图
墙面节点 卧室墙面 硬包墙面 床头背景墙cad施工图
弧形通道墙面 壁挂电视墙 烤漆板墙面 墙面节点cad施工图
各材料标准墙面工艺节点CAD施工图集cad施工图
涂料墙面剖面图 轻质砖墙体 墙面节点cad施工图
厨房墙面布局 墙面节点 厨房平立面图 现代厨房cad施工图
电视墙背景墙面 现代轻奢墙面 古铜金属墙面 墙面节点cad施工图
点击加载更多
分享到
复制链接
保存海报
取消
请选择收藏夹
+新增收藏夹
新增收藏夹
取消
确认
退出查看