模型详情
1/1
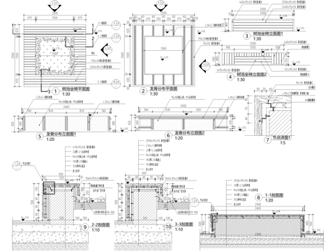
方形轨道灯 矩形导轨灯 方形导轨灯 矩形轨道射灯 方形轨道照cad施工图
ID:
5434007
方形轨道灯 矩形导轨灯 方形导轨灯 矩形轨道射灯 方形轨道照cad施工图 ID-5434007
所需欧币:
36
发布时间:
2026-03-12
下载请使用电脑登录欧模网,建议先收藏
收藏
分享
海量CAD素材库
关注
为您推荐
轨道灯 导轨灯 轨道射灯 导轨灯具 轨道照明灯具cad施工图cad施工图
方形淋浴房 矩形沐浴房 长方形淋浴间 方形淋浴隔断 矩形淋浴cad施工图
方形浴缸 长方形泡澡缸 矩形浴盆 长方形按摩浴缸 方形热水浴cad施工图
树池 方形矩形种植池cad施工图
轨道灯节点嵌入式格栅轨道射灯CADcad施工图cad施工图
树池 篦子 方形矩形镂空盖板 种植池cad施工图
方形空调出风口 矩形通风口 空调百叶风口 方形排风栅格cad施工图
方形射灯安装通用大样图cad施工图
树池 方形矩形种植池 砾石散铺cad施工图
树池 方形矩形树箱花池 种植池cad施工图
方形矩形树池座椅 种植池防腐木坐凳cad施工图
树池坐凳 方形矩形树池座椅 种植池cad施工图
树池坐凳 方形矩形树池座椅 种植池cad施工图
磁吸轨道灯射灯线条灯筒灯洗墙灯无主灯客厅天花CAD素材图库cad施工图
可移动花箱 矩形方形花箱 模块化模数化花箱cad施工图cad施工图
方形树池cad施工图
树池坐凳 方形矩形树池座椅 防腐木坐凳 种植池cad施工图
方形树池 篦子cad施工图
室内天花吊顶灯槽轨道射灯节点CAD施工图cad施工图
灯箱节点 架穿层灯箱柱子 方形柱子节点cad施工图
点击加载更多
分享到
复制链接
保存海报
取消
请选择收藏夹
+新增收藏夹
新增收藏夹
取消
确认
退出查看