模型详情
1/1
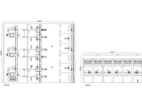
土砖灶 泥砖炉 乡土砖窑 老式土砖炉 青砖土灶cad施工图
ID:
5446897
土砖灶 泥砖炉 乡土砖窑 老式土砖炉 青砖土灶cad施工图 ID-5446897
所需欧币:
36
发布时间:
2026-03-16
下载请使用电脑登录欧模网,建议先收藏
收藏
分享
海量CAD素材库
关注
为您推荐
煮面炉 面食灶 汤面炉 煮面灶 商用面炉cad施工图
电磁炉 电陶炉 电热灶 电灶台 嵌入式电炉cad施工图
博世微波炉 博世嵌入式微波炉 博世微烤一体机 博世变频微波炉cad施工图
乡村青砖矮墙景观围墙cad施工图
固镇土鸭丫中式快餐店室内工装CAD施工图cad施工图
乡村菜园青砖矮墙景观围墙cad施工图
三角风 土鼓藤 钻天风 上树蜈蚣 爬崖藤cad施工图
厨房设备排烟管道灶台油烟机消毒柜烤箱蒸饭车汤炉电磁炉CAD图cad施工图
复古面包机 怀旧烤面包机 欧式复古多士炉 老式烤面包机cad施工图cad施工图
三层大型熔炼炉车间厂房工业建筑CAD施工图集cad施工图
新中式青砖花岗岩景观坐凳cad施工图
新中式乡村景墙青砖logo文化景墙cad施工图
火化设备 殡葬火化设施 火葬设备 殡仪火化炉 殡葬焚烧设施cad施工图
新中式乡村民俗矮墙围墙 青砖文化景墙cad施工图
新中式乡村民俗矮墙围墙 青砖文化景墙cad施工图
砖砌体结构砖墙cad施工图
砖砌体结构砖墙cad施工图
新中式乡村民俗景墙 庭院围墙 青砖矮墙 立瓦酒坛砖墙cad施工图
新中式庭院入口青砖景墙 乡村民俗矮墙围墙cad施工图
新中式乡村民俗矮墙围墙 青砖文化庭院景墙cad施工图
点击加载更多
分享到
复制链接
保存海报
取消
请选择收藏夹
+新增收藏夹
新增收藏夹
取消
确认
退出查看