模型详情
1/3
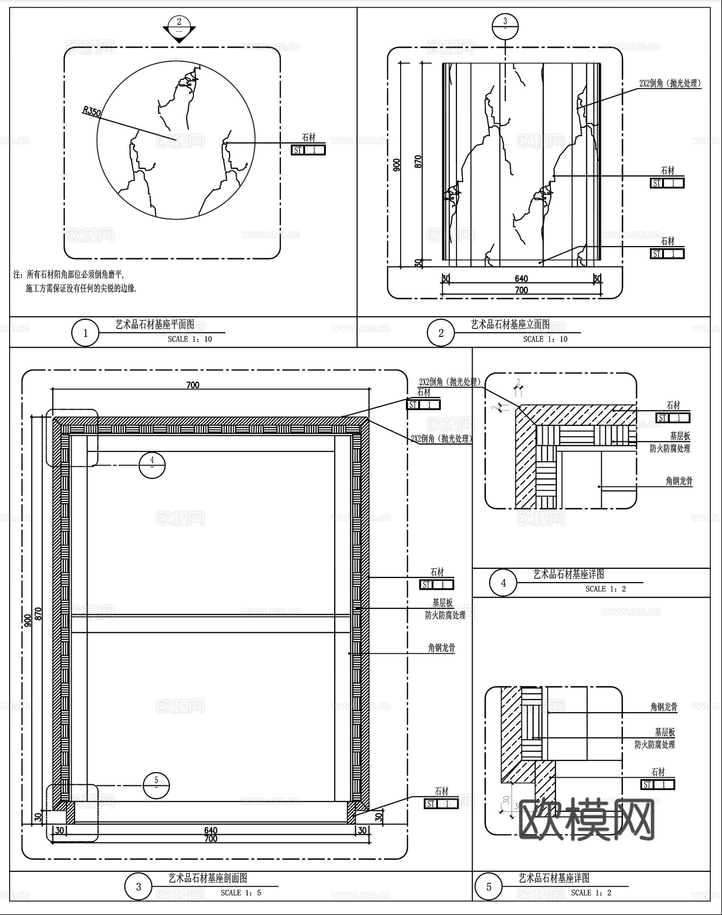
圆形石材石礅 基座节点 艺术品石材基座 展品石柱cad施工图
ID:
5521956
圆形石材石礅 基座节点 艺术品石材基座 展品石柱cad施工图 ID-5521956
所需欧币:
36
发布时间:
2026-03-27
下载请使用电脑登录欧模网,建议先收藏
收藏
分享
妮子1973
关注
为您推荐
升旗台 基座底座cad施工图
升旗台 旗杆节点 基座基础旗杆顶cad施工图
柱子基座 柱底座 石雕柱墩 柱础 柱基石 CAD施工图cad施工图
方柱 石柱墙面 包柱节点图 石材包柱cad施工图
宣传栏标识牌 基座基础固定大样 结构节点图 CAD施工图cad施工图
石材踏步节点cad施工图
收口节点石膏板收口地面地板石材吊挂节点图石材柱剖面详图CADcad施工图
隐形地漏(石材)节点cad施工图
干挂石材节点cad施工图
干挂石材节点cad施工图
石材暗门节点cad施工图
升旗台 旗杆节点 基座绕绳钩旗杆顶 滑轮盒 钢管插接大样cad施工图
干挂石材节点大样CAD施工图cad施工图
肌理涂料墙面 石材饰面墙面 石膏线条吊顶 墙面节点cad施工图
包柱发光柱大理石柱子铝板圆柱石材柱剖面详图节点CAD素材图库cad施工图
墙面装饰 墙面节点 石材立体墙面 L型石材墙面cad施工图
卫生间地面石材地漏节点cad施工图
消防栓隐形石材门节点cad施工图
石膏板吊顶 涂料顶面石材墙面交接天花节点 乳胶漆石材饰面cad施工图
石膏板吊顶节点CAD施工图cad施工图
点击加载更多
分享到
复制链接
保存海报
取消
请选择收藏夹
+新增收藏夹
新增收藏夹
取消
确认
退出查看