模型详情
1/3
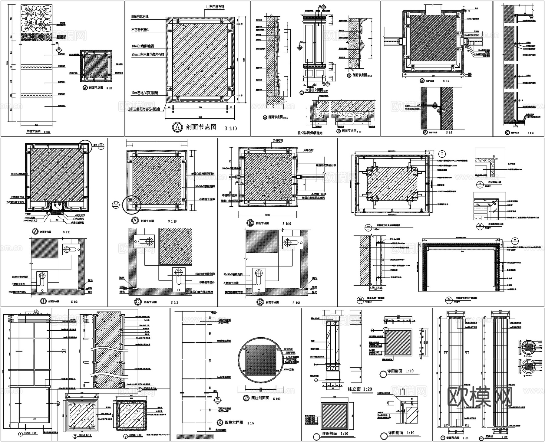
包柱发光柱大理石柱子铝板圆柱石材柱剖面详图节点CAD素材图库cad施工图
ID:
5424907
包柱发光柱大理石柱子铝板圆柱石材柱剖面详图节点CAD素材图库cad施工图 ID-5424907
所需欧币:
36
发布时间:
2026-03-05
下载请使用电脑登录欧模网,建议先收藏
收藏
分享
158****5924
关注
为您推荐
天花吊顶剖面节点详图CAD素材图库cad施工图
天花吊顶剖面节点详图CAD素材图库cad施工图
天花吊顶平面剖面节点详图CAD素材图库cad施工图
天花吊顶平面剖面节点详图CAD素材图库cad施工图
天花吊顶平面剖面节点详图CAD素材图库cad施工图
天花吊顶平面剖面节点详图CAD素材图库cad施工图
铝板幕墙铝塑板包梁包柱玻璃幕墙铝方管剖面详图节点大样CAD素cad施工图
消防箱消火栓详图立面剖面节点CAD素材图库cad施工图
天花吊顶平面剖面节点详图CAD素材图库cad施工图cad施工图
防火人防详图防火卷帘收口剖面详图节点CAD素材图库cad施工图
门详图房门推门剖面做法工艺详图节点CAD素材图库cad施工图
硬包软包壁纸墙纸涂料工艺做法剖面详图节点大样CAD素材图库cad施工图
柱式罗马柱花瓶立柱西式柱欧式柱CAD素材图库cad施工图
建筑柱子柱式装饰详图CAD施工图cad施工图
门板房门剖面做法工艺详图节点CAD素材图库cad施工图
平开门详图房门推门剖面做法工艺详图节点CAD素材图库cad施工图
大堂立柱装饰柱联体柱节点大样CAD施工详图集cad施工图
发光铝单板包柱节点CAD施工图cad施工图
阳台栏杆空调机位阳台剖面详图节点大样CAD素材图库cad施工图
屋面彩钢板屋面构造屋顶做法剖面详图节点大样CAD素材图库cad施工图
点击加载更多
分享到
复制链接
保存海报
取消
请选择收藏夹
+新增收藏夹
新增收藏夹
取消
确认
退出查看