模型详情
1/1
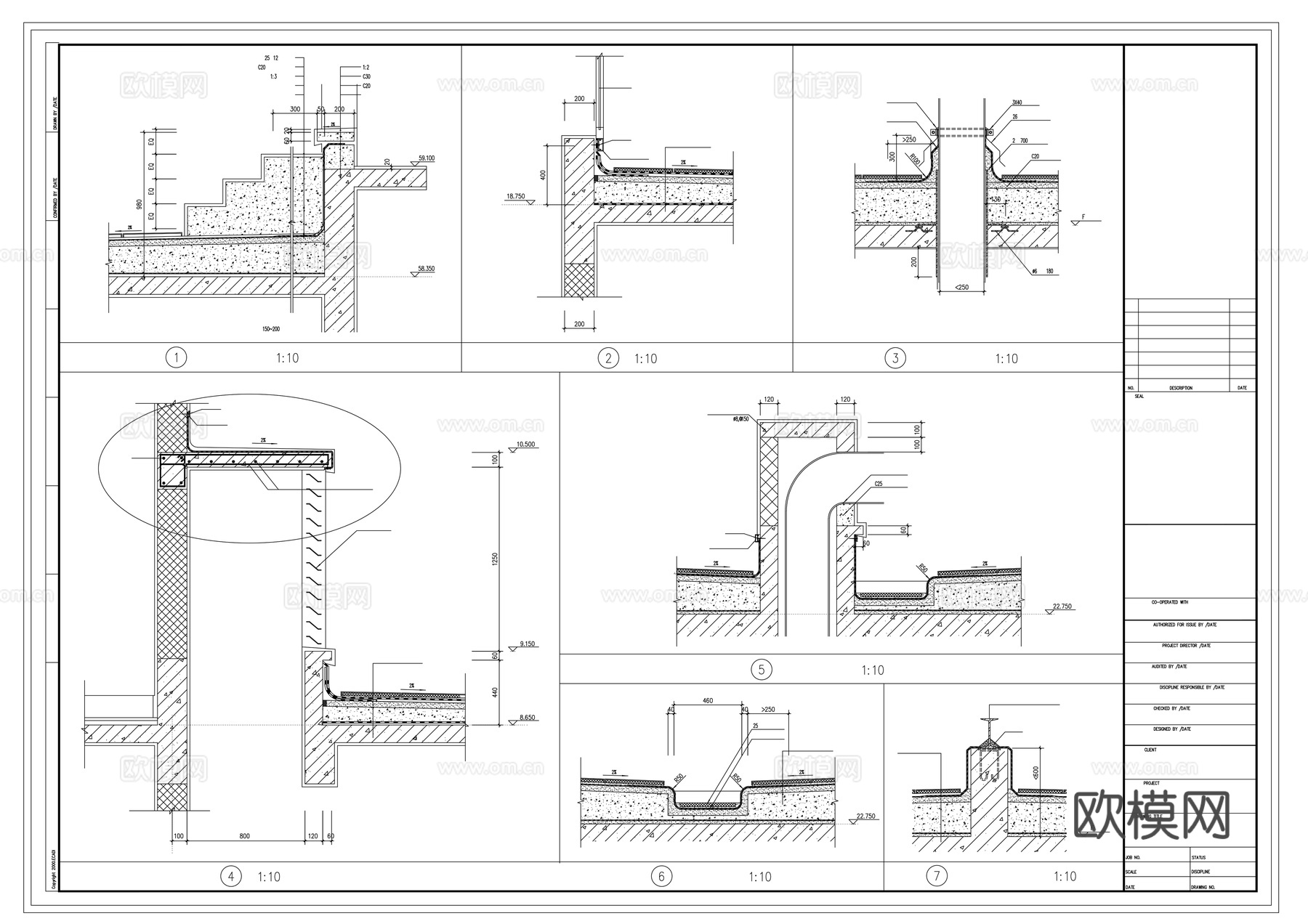
屋面防水节点cad施工图
ID:
5546789
屋面防水节点cad施工图 ID-5546789
所需欧币:
86
发布时间:
2026-04-02
下载请使用电脑登录欧模网,建议先收藏
收藏
分享
水禾田装饰
关注
为您推荐
屋面防水CAD施工图cad施工图
详图屋面地面节点地毯地砖地板详图防水节点雨蓬详图CAD素材cad施工图
外墙防水屋面防水露台防水女儿墙泛水剖面详图节点大样CAD素材cad施工图
防水做法外墙防水墙身防水地面防水厨卫防水节点大样图CAD素材cad施工图
屋面彩钢板屋面构造屋顶做法剖面详图节点大样CAD素材图库cad施工图
水池防水车库防水地坪防水剖面详图节点大样CAD素材图库cad施工图
女儿墙节点 防水泛水cad施工图
建筑构造防水工艺做法节点大样CAD施工图集cad施工图
地面防水排水沟大样厕浴间浴缸防水卫生间地漏防水节点图CADcad施工图
女儿墙节点 防水泛水天沟cad施工图
排水防水cad施工图cad施工图
女儿墙节点 檐沟屋面落水构造cad施工图
屋面设备基础大样cad施工图
消防水池cad施工图
坡屋顶 斜屋面窗cad施工图
钛锌板屋面通用构造cad施工图
钢结构夹层楼板阁楼建筑楼梯屋面节点CAD施工图 15套cad施工图
门节点cad施工图
覆土屋面变形缝大样cad施工图
节点详图cad施工图
点击加载更多
分享到
复制链接
保存海报
取消
请选择收藏夹
+新增收藏夹
新增收藏夹
取消
确认
退出查看