模型详情
1/8
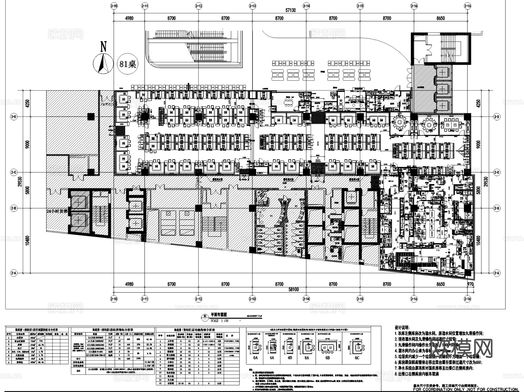
贵阳海底捞火锅汇金星力城店室内工装CAD施工图整套+文本cad施工图
ID:
5017350
贵阳海底捞火锅汇金星力城店室内工装CAD施工图整套+文本cad施工图 ID-5017350
所需欧币:
36
发布时间:
2025-10-09
下载请使用电脑登录欧模网,建议先收藏
收藏
分享
皮肤干燥
关注
为您推荐
鼎悦坊火锅店餐厅室内工装CAD施工图整套cad施工图
福州朗雅汇海鲜主题餐厅室内工装CAD施工图整套cad施工图
江西新力外滩9号7#拾光火锅店室内工装CAD施工图整套cad施工图
长沙洞庭鱼谣餐厅室内工装CAD施工图整套+文本cad施工图
曲阳英雄峰荟火锅生活馆室内工装CAD施工图整套cad施工图
新疆烘焙馆甜品店室内工装CAD施工图整套cad施工图
广州汉堡王凯德广场店室内工装CAD施工图整套cad施工图
新荣记上海店海鲜餐厅室内工装CAD施工图整套cad施工图
外婆家西溪天堂店室内工装CAD施工图整套cad施工图
华安精品文化中式主题酒店室内工装CAD施工图整套cad施工图
杭州胡须先生餐厅室内工装CAD施工图整套cad施工图
滁州汇嘉茶餐厅室内工装CAD施工图cad施工图
福建上岛咖啡沙县店西餐厅室内工装CAD施工图整套cad施工图
北京火宴山自助餐厅朝阳北路大悦城店室内工装CAD施工图整套cad施工图
汉堡王上海嘉定宝龙店餐厅室内工装CAD施工图整套cad施工图
星巴克咖啡杭州天寓楼店室内工装CAD施工图整套cad施工图
重庆欧式西餐厅室内工装CAD施工图整套cad施工图
深圳东宝海鲜火锅大冲华润店室内工装CAD施工图cad施工图
风物寿司日式餐厅万象天地店室内工装CAD施工图整套cad施工图
鹅夫人莘庄仲盛店餐厅室内工装CAD施工图整套cad施工图
点击加载更多
分享到
复制链接
保存海报
取消
请选择收藏夹
+新增收藏夹
新增收藏夹
取消
确认
退出查看