模型详情
1/8
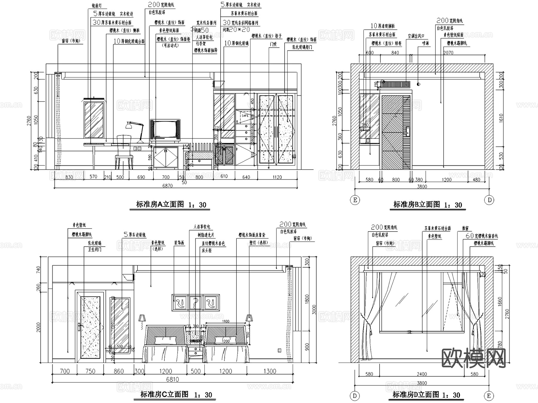
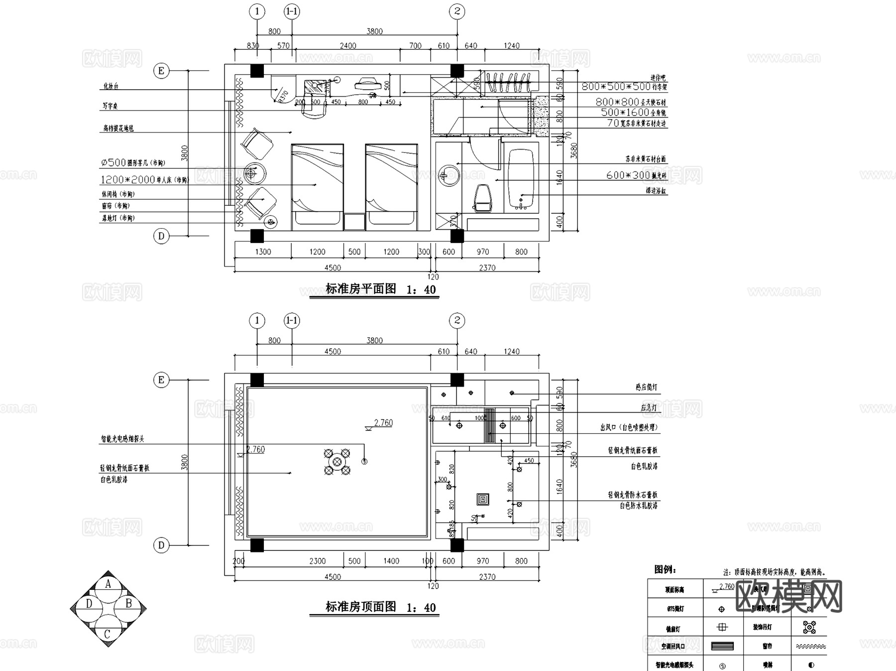
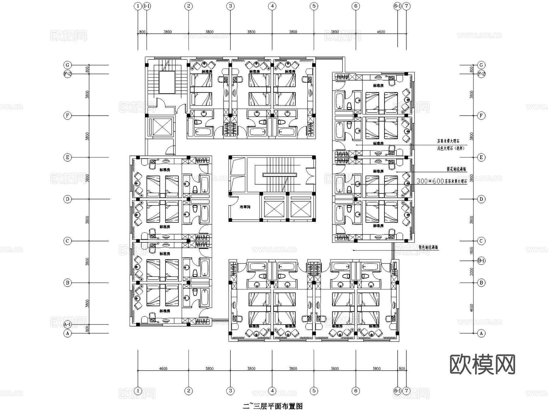
杭州新新饭店东楼客房层改造室内工装CAD施工图cad施工图
ID:
5126151
杭州新新饭店东楼客房层改造室内工装CAD施工图cad施工图 ID-5126151
所需欧币:
36
发布时间:
2025-11-03
下载请使用电脑登录欧模网,建议先收藏
收藏
分享
皮肤干燥
关注
为您推荐
酒店首层及客房层室内工装平面CAD施工图cad施工图
杭州胡须先生餐厅室内工装CAD施工图整套cad施工图
星巴克咖啡杭州天寓楼店室内工装CAD施工图整套cad施工图
常熟大酒店客房楼扩建室内工装CAD施工图cad施工图
工厂改造匆匆那年主题餐厅室内工装CAD施工图+SUcad施工图
南京古南都饭店改造室内工装CAD施工图cad施工图
南海酒店餐厅宴会厅改造室内工装CAD施工图cad施工图
杭州百欣丰盛面家面馆餐厅室内工装CAD施工图cad施工图
杭州江南名楼1-3-606二层别墅室内家装CAD施工图cad施工图
福州温泉公园酒店大堂及客房室内工装CAD施工图cad施工图
二层慢生活音乐餐厅室内工装CAD施工图cad施工图
二层新中式茶楼茶室会所室内工装CAD施工图整套cad施工图
供电局客服中心节能展厅改造室内工装CAD施工图整套cad施工图
70㎡AnKoo二层服装店室内工装CAD施工图cad施工图
现代二层咖啡店室内工装CAD施工图整套cad施工图
青柠一夏二层餐厅室内工装CAD施工图cad施工图
北京鹿鸣书苑咖啡馆室内改造工装CAD施工图整套+文本cad施工图
株洲海天渔港酒楼餐厅室内工装CAD施工图整套cad施工图
绿洲中环中心3#楼1~2层办公室室内工装CAD施工图cad施工图
黄埔广场国宾酒店客房室内工装CAD施工图cad施工图
点击加载更多
分享到
复制链接
保存海报
取消
请选择收藏夹
+新增收藏夹
新增收藏夹
取消
确认
退出查看