模型详情
1/3
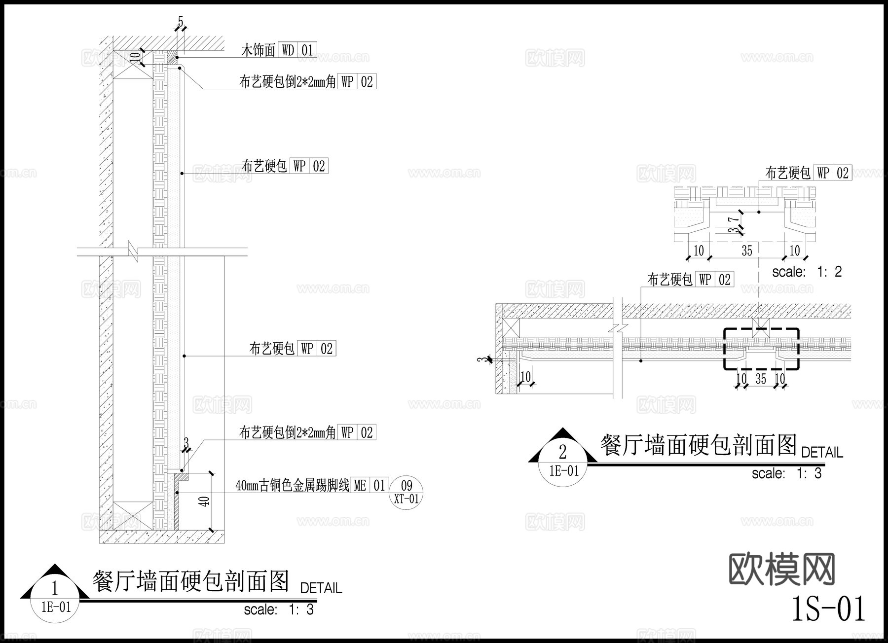
墙面硬包剖面图 餐厅墙面立面图 通用墙面 布艺硬包节点图cad施工图cad施工图
ID:
5169666
墙面硬包剖面图 餐厅墙面立面图 通用墙面 布艺硬包节点图cad施工图cad施工图 ID-5169666
所需欧币:
36
发布时间:
2025-11-19
下载请使用电脑登录欧模网,建议先收藏
收藏
分享
妮子1973
关注
为您推荐
墙面立面图 现代电视背景墙壁布硬包墙面 墙面节点cad施工图
欧式卧室立面图 墙面布局图 墙面节点 立面图cad施工图
墙面端景节点 墙面节点 墙面装饰品 节点图cad施工图
铝板墙面CAD节点cad施工图
石材墙面 卫浴立面图 卫浴节点图 墙面节点图cad施工图
儿童游乐区墙面 墙面立面图 墙面节点 护墙板cad施工图
影视厅墙面节点 影视厅平立面图 墙面布局 墙面节点cad施工图
120套施工图通用CAD节点图墙面地面顶面门cad施工图
书房墙面布局图 书房背景墙 墙面剖面图节点图cad施工图
厨房墙面布局 墙面节点 厨房平立面图 现代厨房cad施工图
欧式茶室 茶室立面图 墙面布局 墙面节点cad施工图
墙面通用做法CADcad施工图
欧式休闲厅立面图 石材墙面节点 墙面布局图cad施工图cad施工图
厨房墙面布局 现代厨房 中厨立面图 墙面节点图cad施工图
墙面立面图 主卫墙面布局图 卫浴柜子镜子 节点图剖面图cad施工图
背景墙 装饰墙面 客厅墙面 墙面节点图cad施工图
墙面节点 墙面凿洞节点 儿童室内墙面装饰cad施工图
卫生间墙面 石材墙面 墙面节点cad施工图
卫生间墙面 石材墙面 墙面节点cad施工图
宴会厅墙面 酒店大堂墙面 欧式背景墙 墙面立面图 节点图cad施工图
点击加载更多
分享到
复制链接
保存海报
取消
请选择收藏夹
+新增收藏夹
新增收藏夹
取消
确认
退出查看