模型详情
1/2
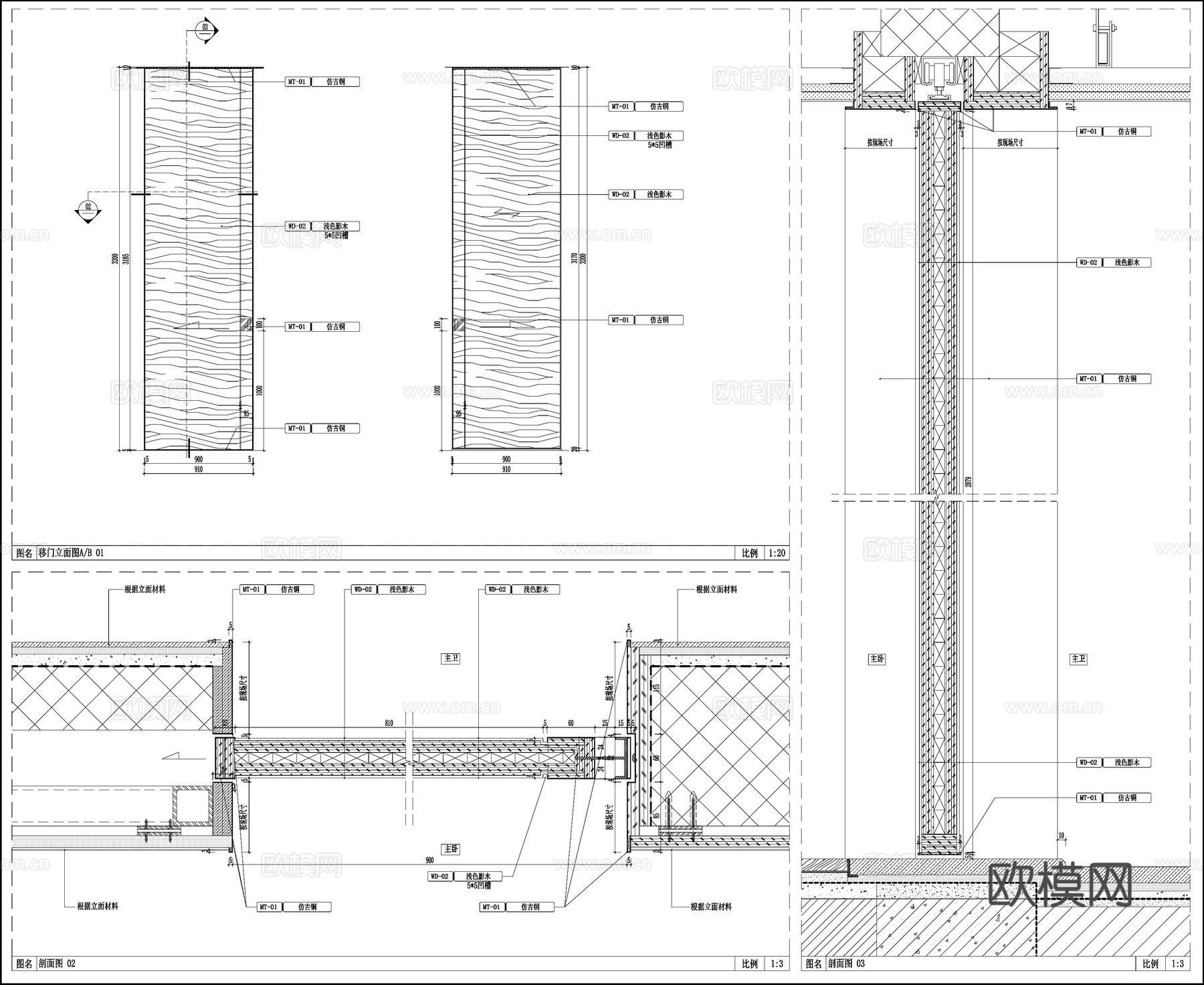
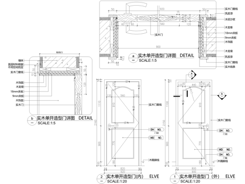
卫生间移门 影木木门 单开门 推拉门 门节点cad施工图
ID:
5284115
卫生间移门 影木木门 单开门 推拉门 门节点cad施工图 ID-5284115
所需欧币:
36
发布时间:
2025-12-29
下载请使用电脑登录欧模网,建议先收藏
收藏
分享
妮子1973
关注
为您推荐
木门 移门立面图 卫生间移门 门套节点 移门节点cad施工图
木门 单开门 木门 现代平开门 门节点cad施工图
单开门 现代门 木门 门节点cad施工图
木门节点cad施工图
平开门 门节点 木门 单开门 卫生间门cad施工图
现代移门 玻璃门节点 灰色茶玻推拉门 玻璃移门cad施工图
实木门 推拉门节点 玻璃门节点 单双开门 CAD施工图cad施工图
烤漆板推拉门 门节点 衣帽间移门 双向推拉门cad施工图
木门 平开门 门节点 办公室单开门cad施工图
样板间卧室门节点 木门节点 房间门节点cad施工图
实木门 单开门cad施工图
门节点 单开门 平开门 卫生间木质门cad施工图
木饰面单开门 现代门 卫生间门 门节点cad施工图
仓库平移门 厂房推拉门 仓库移门 工业推拉门 库房滑动门cad施工图
木门 双开门 平开门 门节点cad施工图
现代玻璃门 单开门平开门 玻璃移门 卫生间门衣帽间门 门节点cad施工图
口袋推拉门节点cad施工图
双开门平开门 实木木门 会所大门 门节点cad施工图cad施工图
木门 防火门 消防门 单开门cad施工图
实木门镶玻璃 单开门cad施工图
点击加载更多
分享到
复制链接
保存海报
取消
请选择收藏夹
+新增收藏夹
新增收藏夹
取消
确认
退出查看