模型详情
1/2
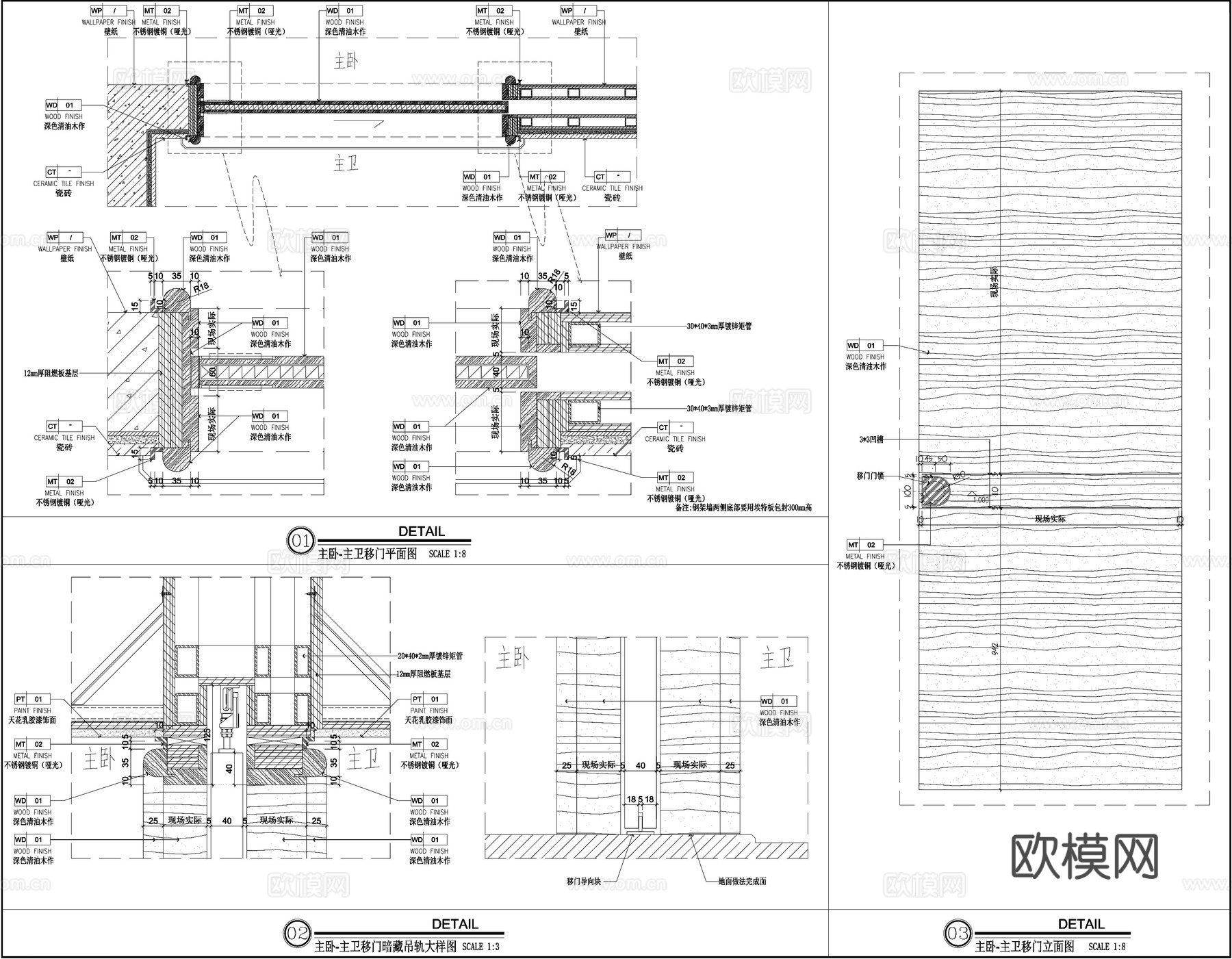
木门 移门立面图 卫生间移门 门套节点 移门节点cad施工图
ID:
5307905
木门 移门立面图 卫生间移门 门套节点 移门节点cad施工图 ID-5307905
所需欧币:
36
发布时间:
2026-01-09
下载请使用电脑登录欧模网,建议先收藏
收藏
分享
妮子1973
关注
为您推荐
现代移门 玻璃门节点 灰色茶玻推拉门 玻璃移门cad施工图
卫生间移门 影木木门 单开门 推拉门 门节点cad施工图
长虹玻璃门 推拉玻璃门 玻璃移门 门节点cad施工图
衣柜双移门、三移门内部结构CADcad施工图
室内双三移门衣柜节点大样详图CAD施工图集 30套cad施工图
烤漆板推拉门 门节点 衣帽间移门 双向推拉门cad施工图
卫浴节点 卫浴柜子节点 卫生间立面图 墙面节点cad施工图
卫生间立面图 墙面节点 卫生间平面布局 卫浴节点cad施工图
暗门详图超高超重门做法地弹簧玻璃门移门剖面详图节点CAD素材cad施工图
卫浴节点 卫生间墙面节点 卫生间平立面图 卫生间布局cad施工图
公卫平面布局 卫浴节点 卫生间立面图 墙面节点cad施工图
木门节点cad施工图
仓库平移门 厂房推拉门 仓库移门 工业推拉门 库房滑动门cad施工图
夹丝玻璃门 金属玻璃门 厨房移门 现代玻璃门 门节点cad施工图
现代玻璃门 单开门平开门 玻璃移门 卫生间门衣帽间门 门节点cad施工图
样板间卧室门节点 木门节点 房间门节点cad施工图
厨房平立面图 现代厨房 厨房布局节点 墙面节点cad施工图
石材墙面节点 卫浴节点 卫生间平面立面图 现代卫生间布局图cad施工图
樱桃木实木门节点 门套线 CAD施工图cad施工图
衣柜移门衣帽柜书柜柜门CAD素材图库cad施工图
点击加载更多
分享到
复制链接
保存海报
取消
请选择收藏夹
+新增收藏夹
新增收藏夹
取消
确认
退出查看