模型详情
1/7
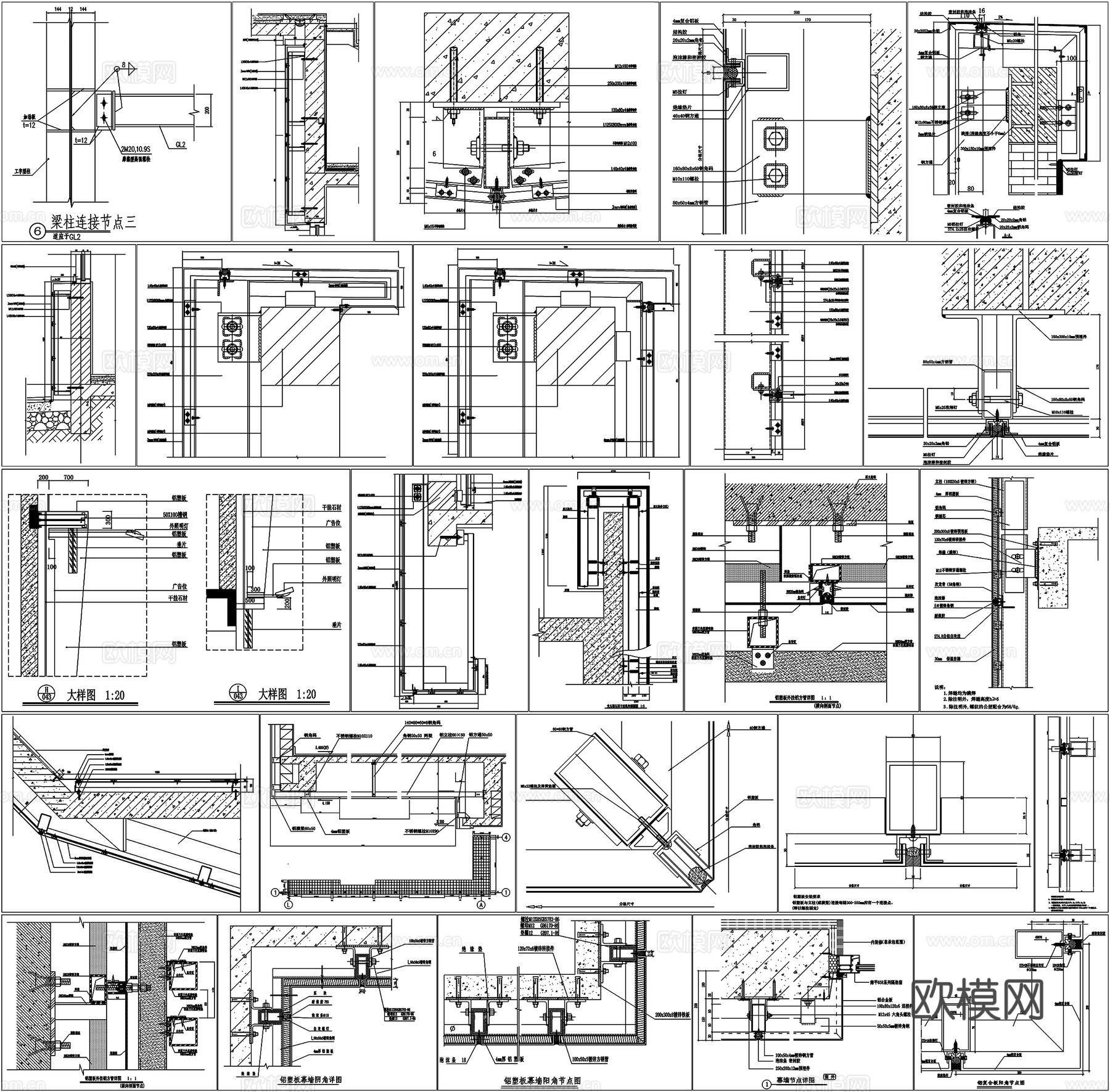
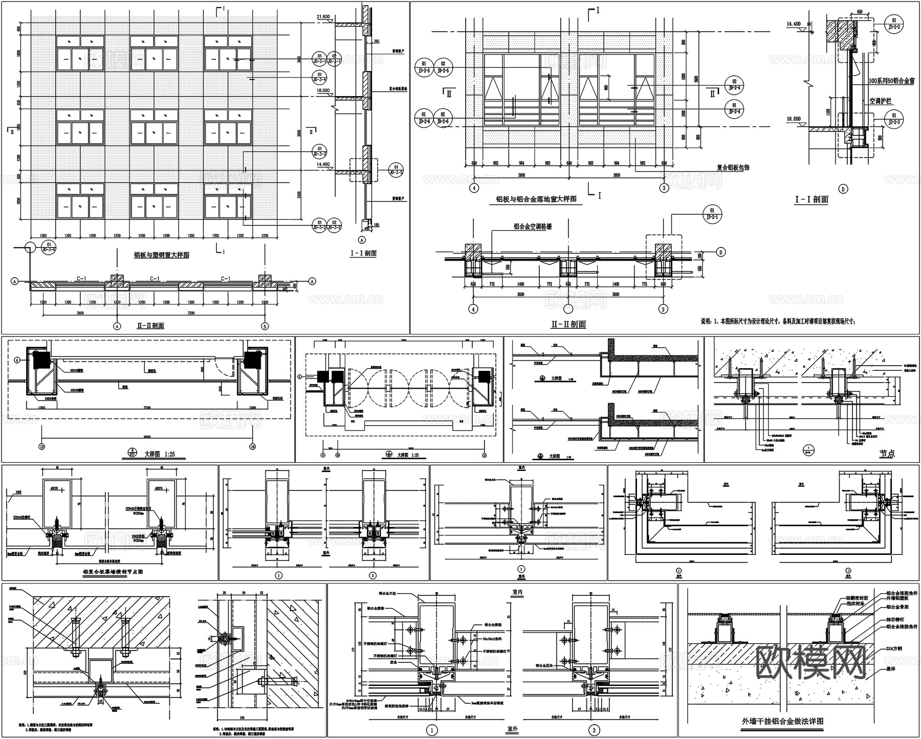
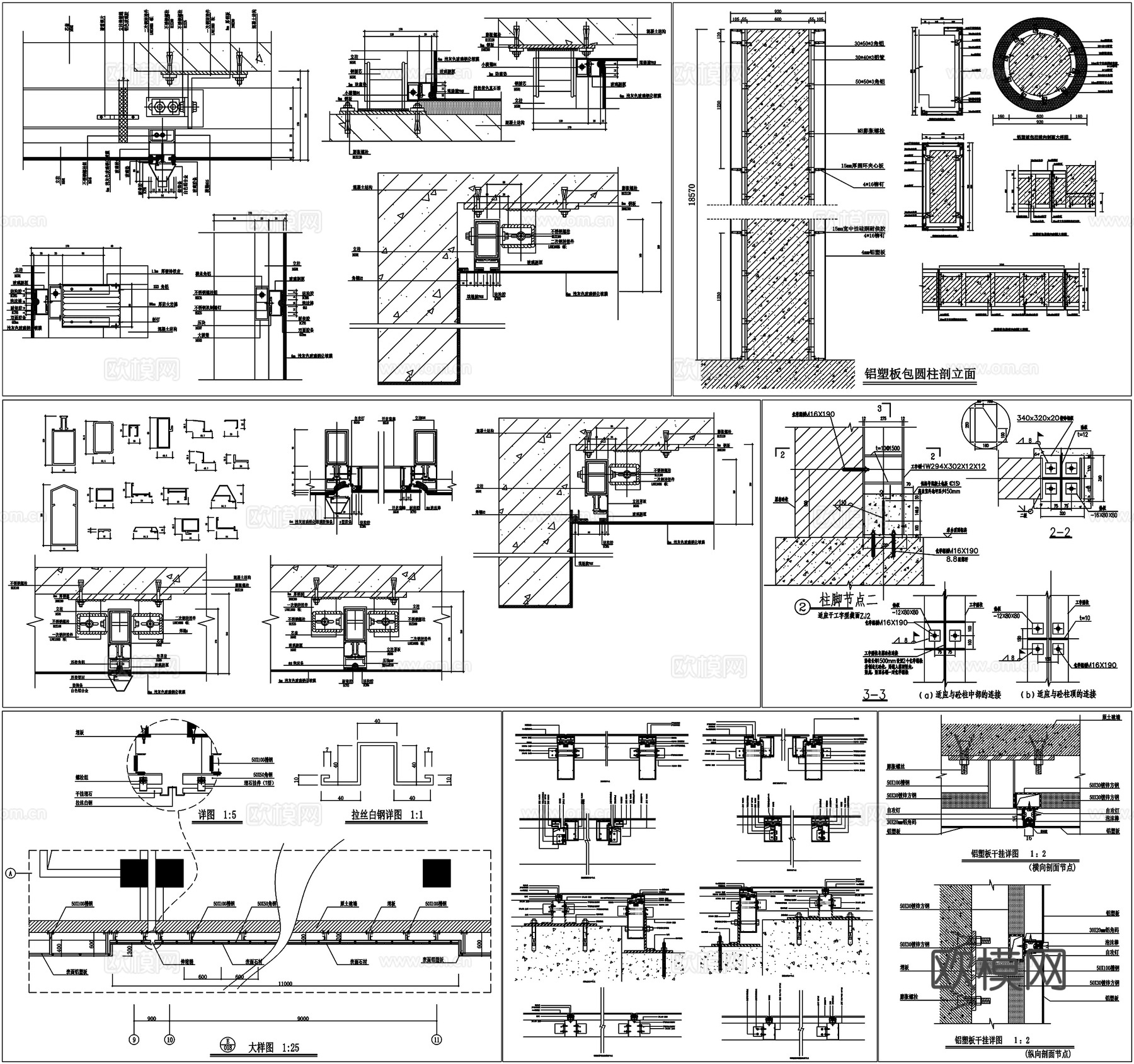
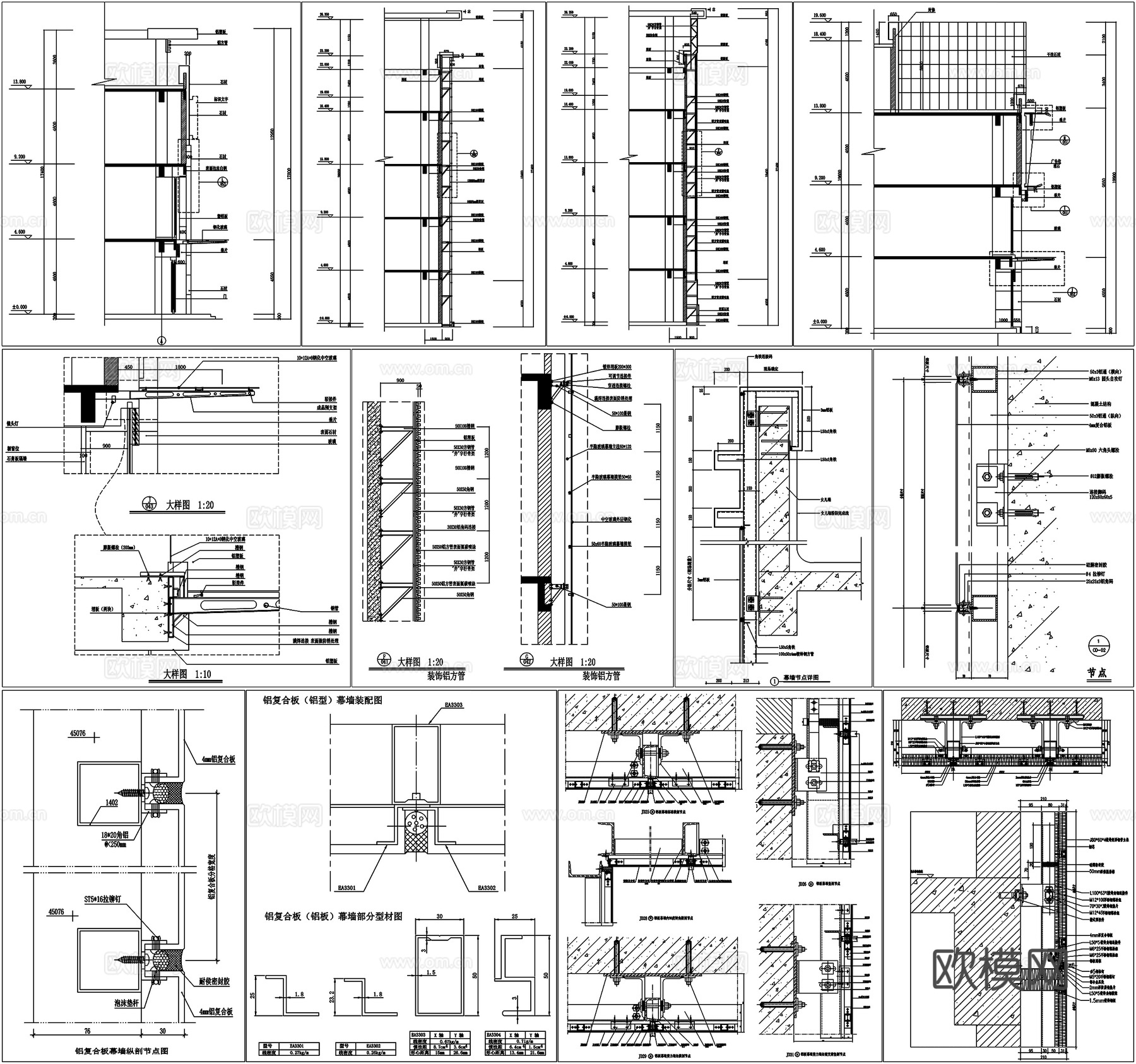
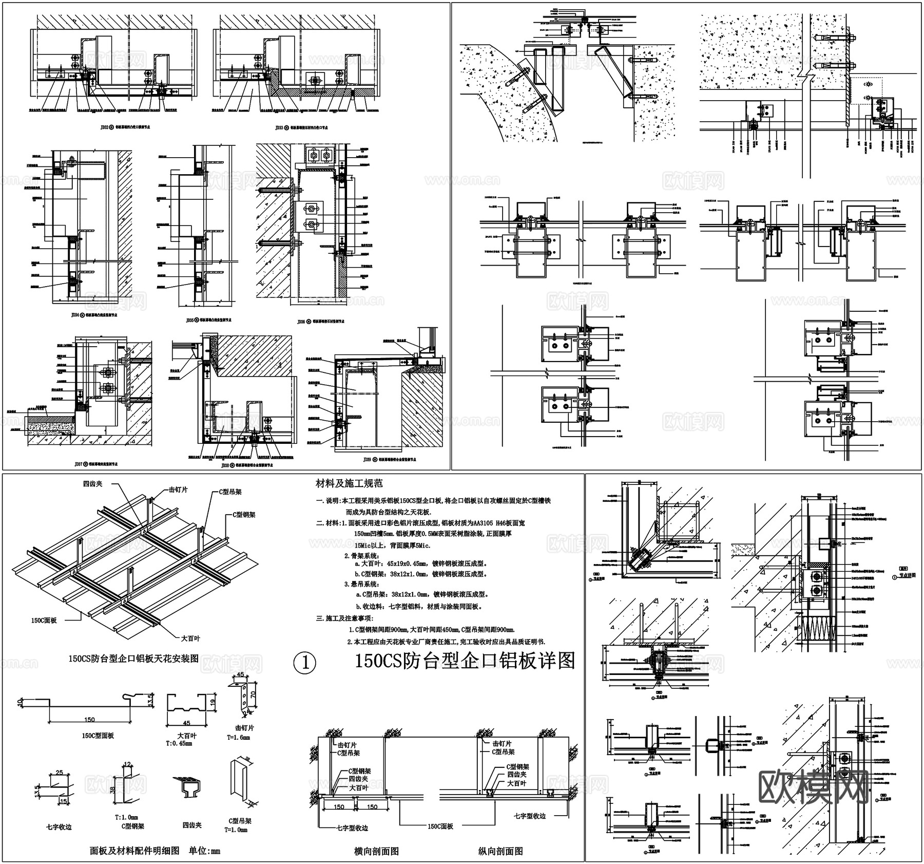
铝板幕墙铝塑板包梁包柱玻璃幕墙铝方管剖面详图节点大样CAD素cad施工图
ID:
5422665
铝板幕墙铝塑板包梁包柱玻璃幕墙铝方管剖面详图节点大样CAD素cad施工图 ID-5422665
所需欧币:
36
发布时间:
2026-03-02
下载请使用电脑登录欧模网,建议先收藏
收藏
分享
158****5924
关注
为您推荐
吊挂式玻璃幕墙挂钩式幕墙明框幕墙玻璃排窗剖面详图节点CAD素cad施工图
吊挂式玻璃幕墙挂钩式幕墙明框幕墙玻璃排窗剖面详图节点CAD素cad施工图
吊挂式玻璃幕墙挂钩式幕墙明框幕墙玻璃排窗剖面详图节点CAD素cad施工图
发光铝单板包柱节点CAD施工图cad施工图
硬包软包壁纸墙纸涂料工艺做法剖面详图节点大样CAD素材图库cad施工图
包柱发光柱大理石柱子铝板圆柱石材柱剖面详图节点CAD素材图库cad施工图
隔音墙玻璃墙铝单板墙铝蜂窝墙干挂包柱铝格栅墙面节点CAD素材cad施工图
铝板幕墙节点CAD施工图cad施工图
石材幕墙玻璃石材节点墙面干挂大理石详图墙柱面剖面详图CAD素cad施工图
铝板格栅幕墙CAD施工图cad施工图
铝镁锰屋顶CAD详图cad施工图
大堂立柱装饰柱联体柱节点大样CAD施工详图集cad施工图
包柱隔断柜节点大样图cad施工图
工装节点大样图地面墙面墙身软包剖面详图节点工艺图CAD素材图cad施工图
铝方通软膜吊顶节点大样图cad施工图
涂料铝木隐形门暗门节点大样详图CAD施工图集cad施工图
穿孔板冲孔板铝板节点大样详图CAD施工图集cad施工图
灯膜铝方通吊顶节点大样图cad施工图
木栈道柱梁配筋 CAD施工图cad施工图
现代柱子 展厅大堂柱子 打砂镀黑钢包柱 幕墙柱子cad施工图
点击加载更多
分享到
复制链接
保存海报
取消
请选择收藏夹
+新增收藏夹
新增收藏夹
取消
确认
退出查看