模型详情
1/8
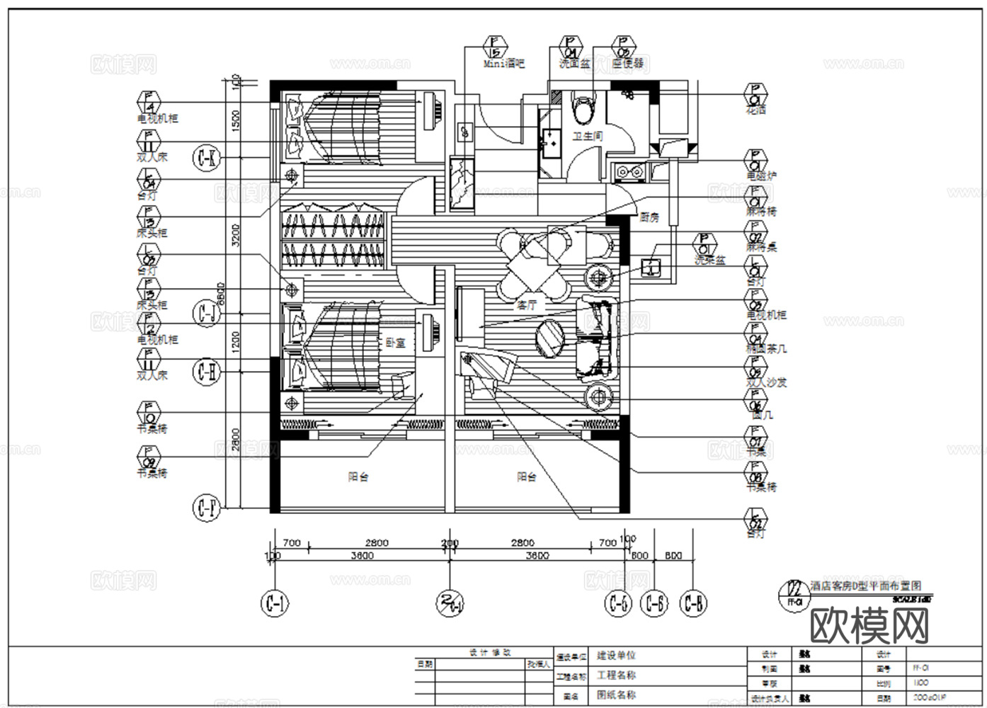
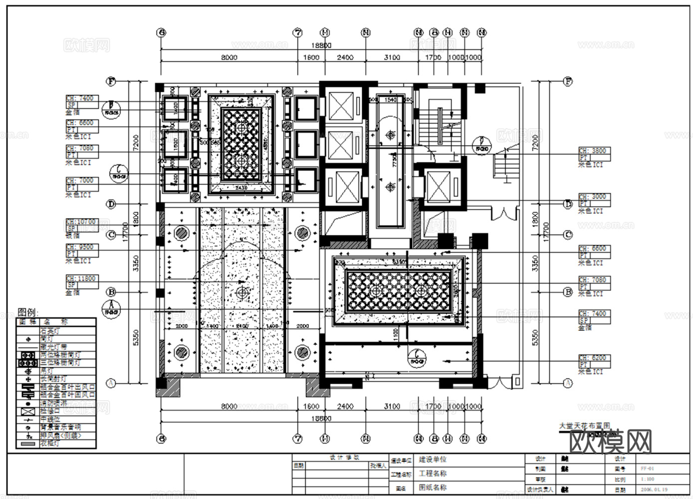
28套现代酒店宾馆室内装饰CAD施工图最新整理合集cad施工图
ID:
5373750
28套现代酒店宾馆室内装饰CAD施工图最新整理合集cad施工图 ID-5373750
所需欧币:
86
发布时间:
2026-02-03
下载请使用电脑登录欧模网,建议先收藏
收藏
分享
大可
关注
为您推荐
180个地面CAD节点图最新整理合集cad施工图
10套快捷酒店宾馆旅店室内装饰CAD施工图最新整理cad施工图
10套现代火锅店室内装饰CAD施工图最新整理合集cad施工图
10套现代火锅店室内装饰CAD施工图最新整理合集cad施工图
10套文创商店CAD施工图最新整理合集cad施工图
18套食堂建筑cad图纸2026最新整理合集cad施工图
110各类隔墙做法节点墙体CAD施工图最新整理合集cad施工图
20套现代中式中餐厅室内装饰CAD施工图最新整理合集cad施工图
31套中餐厅餐饮空间室内装饰装修CAD施工图最新整理合集cad施工图
4套酒店室内装饰CAD施工图效果图最新整理合集cad施工图
20套游泳池CAD图纸2026最新整理合集cad施工图
20套玻璃类隔断CAD节点详图最新整理合集cad施工图
15套乡村矮墙景墙cad图纸最新整理合集cad施工图
45展示展厅CAD平面设计方案最新整理合集cad施工图
200个石材节点大样CAD施工图最新整理合集cad施工图
17款窗帘盒节点CAD图纸最新整理合集cad施工图cad施工图
11套KTV娱乐空间室内CAD施工图最新整理合集cad施工图
9套超市商超卖场生鲜店CAD施工图最新整理合集cad施工图
6套现代月子中心会所妇产医院CAD施工图最新整理合集cad施工图
10套金属铝板CAD节点图最新整理合集cad施工图
点击加载更多
分享到
复制链接
保存海报
取消
请选择收藏夹
+新增收藏夹
新增收藏夹
取消
确认
退出查看