模型详情
1/2
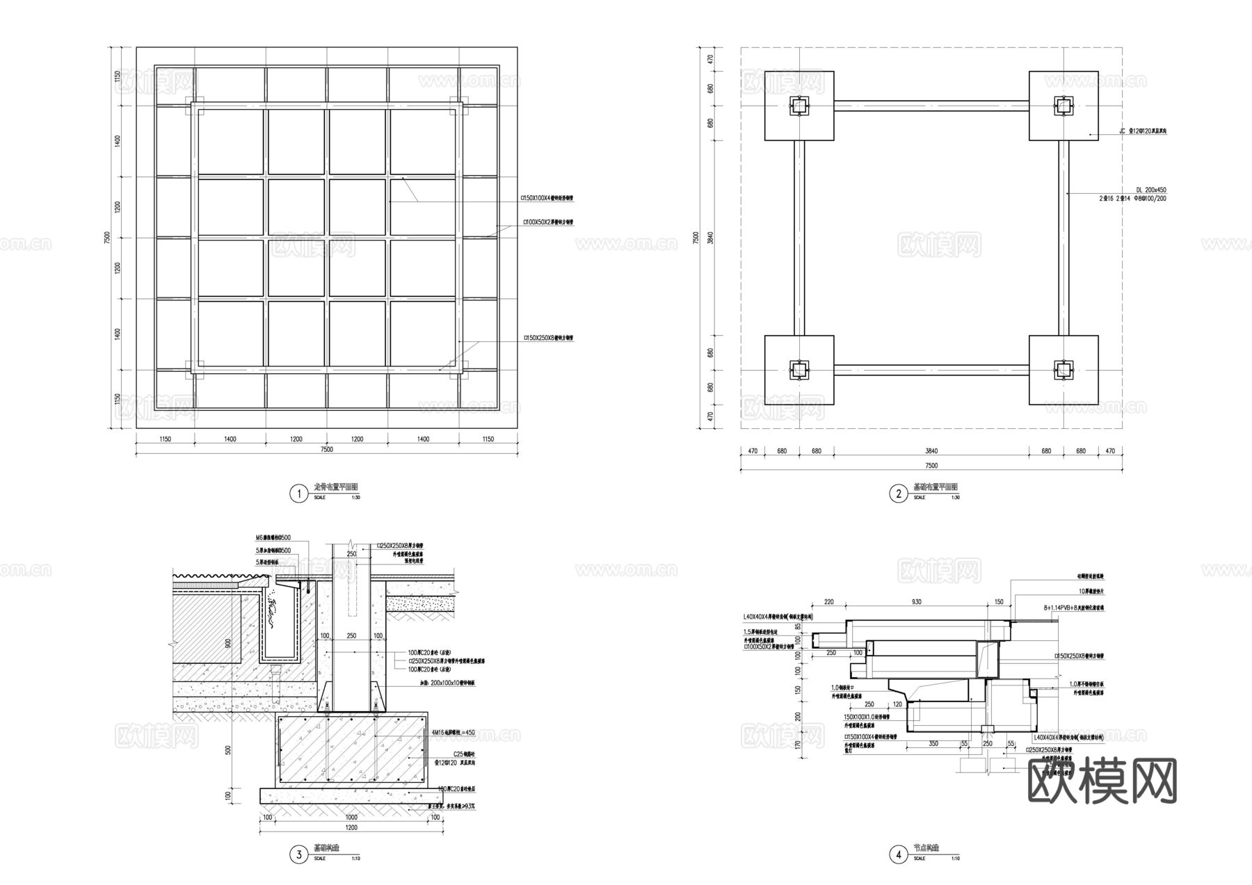
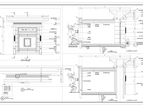
廊架cad施工图
ID:
5401859
廊架cad施工图 ID-5401859
所需欧币:
106
发布时间:
2026-02-10
下载请使用电脑登录欧模网,建议先收藏
收藏
分享
151****4964
关注
为您推荐
现代弧形廊架 钢结构廊架 异形廊架 风雨长廊cad施工图
新中式廊架 钢结构廊架 玻璃廊架 风雨廊架会客厅cad施工图
现代弧形廊架 钢结构廊架 异形廊架 景墙长廊cad施工图
现代异形廊架 弧形廊架 钢结构廊架 风雨连廊cad施工图
廊架 四角亭子景观亭 钢结构廊架 格栅cad施工图cad施工图
单臂木廊架cad施工图
廊架 四角亭景观亭子 玻璃廊架 钢结构廊架cad施工图
中式小院入口将军门廊架CAD施工图cad施工图
现代异形景观亭廊架CAD施工图+SU模型cad施工图
现代玻璃廊架 钢结构廊架 会客厅坐凳cad施工图
小区廊架会客厅 玻璃廊架 结构图cad施工图
新中式廊架 景观亭四角亭子 玻璃廊架 木廊架 格栅cad施工图
异型休闲廊架坐凳景观节点CAD施工图+SU模型cad施工图
现代玻璃廊架 钢结构廊架 会客厅格栅隔板cad施工图
中式特色景观廊架构件CAD施工详图cad施工图
园林景观休闲廊架大样详图CAD施工图集 55套cad施工图
中式景观廊架花架节点大样CAD施工图cad施工图
车库地库入口廊架景观CAD施工图集 15套cad施工图
单臂钢结构休闲廊架坐凳景观节点详图CAD施工图cad施工图
园林景观亭子廊架节点大样CAD施工图集 240套cad施工图
点击加载更多
分享到
复制链接
保存海报
取消
请选择收藏夹
+新增收藏夹
新增收藏夹
取消
确认
退出查看