模型详情
1/3
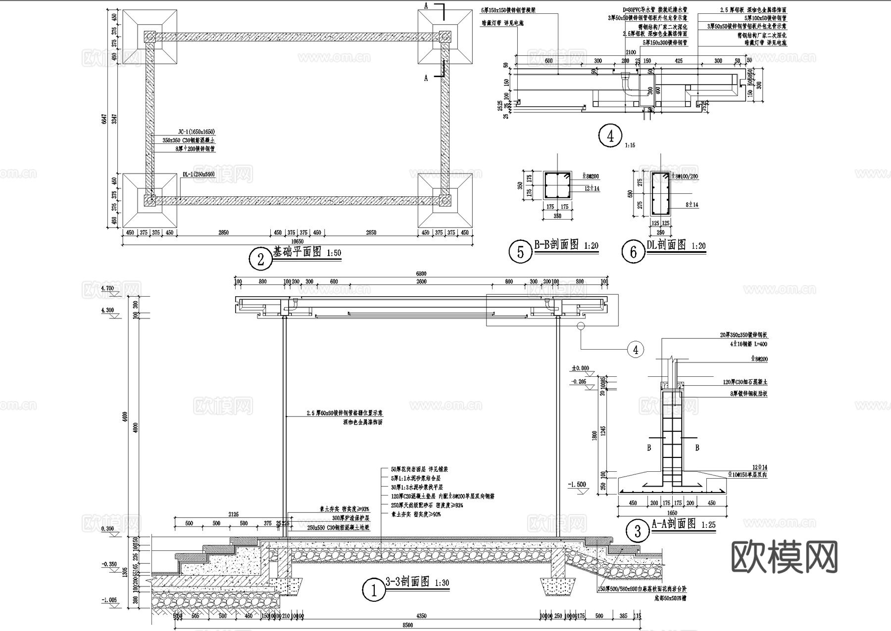
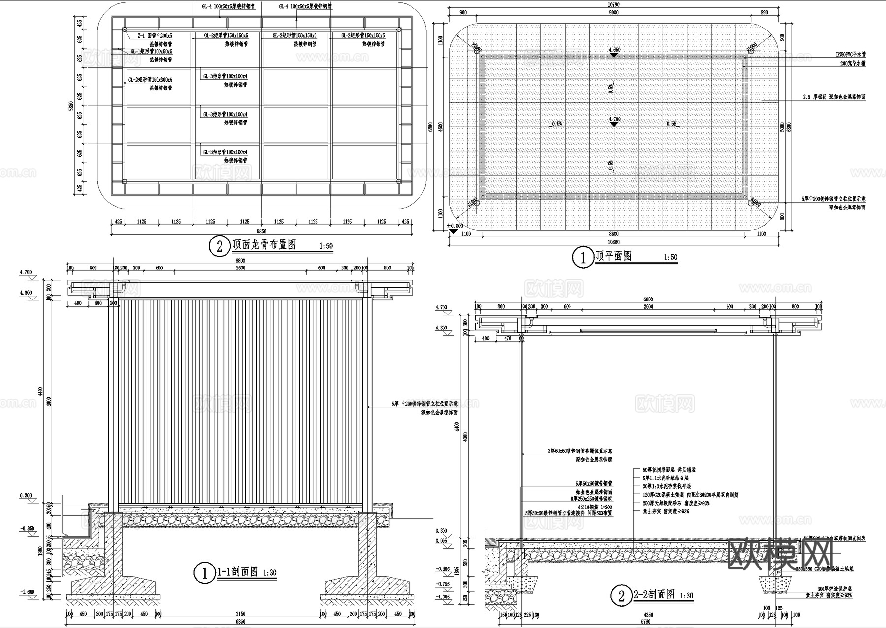
廊架 四角亭子景观亭 钢结构廊架 格栅cad施工图cad施工图
ID:
5413975
廊架 四角亭子景观亭 钢结构廊架 格栅cad施工图cad施工图 ID-5413975
所需欧币:
16
发布时间:
2026-02-24
下载请使用电脑登录欧模网,建议先收藏
收藏
分享
皮肤干燥
关注
为您推荐
廊架 四角亭景观亭子 玻璃廊架 钢结构廊架cad施工图
新中式廊架 景观亭四角亭子 钢结构廊架 格栅链接射灯cad施工图
新中式廊架 景观亭四角亭子 玻璃廊架 木廊架 格栅cad施工图
新中式廊架 钢结构玻璃廊架 铁艺廊架四角亭子 景观廊亭凉亭cad施工图
新中式亭子 四角亭 方亭 景观亭 凉亭 钢结构亲水亭cad施工图
现代玻璃廊架 钢结构廊架 会客厅格栅隔板cad施工图
四角亭 方亭 木亭 景观亭 凉亭cad施工图
茅草亭 四角亭 木亭 景观亭 凉亭cad施工图
现代弧形廊架 钢结构廊架 异形廊架 风雨长廊cad施工图
新中式休闲景观亭凉亭格栅CAD施工图集cad施工图
现代异形景观亭廊架CAD施工图+SU模型cad施工图
现代弧形廊架 钢结构廊架 异形廊架 景墙长廊cad施工图
现代异形廊架 弧形廊架 钢结构廊架 风雨连廊cad施工图
新中式廊架 钢结构廊架 玻璃廊架 风雨廊架会客厅cad施工图
亭子 四角亭 木亭 方亭美人靠 景观亭 凉亭cad施工图
水榭 仿古建筑 景观亭 四角亭 凉亭 CAD施工图cad施工图
单臂钢结构休闲廊架坐凳景观节点详图CAD施工图cad施工图
现代玻璃廊架 钢结构廊架 会客厅坐凳cad施工图
廊架cad施工图
园林景观亭子廊架节点大样CAD施工图集 240套cad施工图
点击加载更多
分享到
复制链接
保存海报
取消
请选择收藏夹
+新增收藏夹
新增收藏夹
取消
确认
退出查看