模型详情
1/8
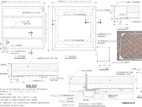
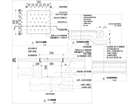
雨水口节点 阀门井 快速取水阀 水表井 取水器阀门盖板cad施工图
ID:
5411257
雨水口节点 阀门井 快速取水阀 水表井 取水器阀门盖板cad施工图 ID-5411257
所需欧币:
16
发布时间:
2026-02-24
下载请使用电脑登录欧模网,建议先收藏
收藏
分享
皮肤干燥
关注
为您推荐
排水沟节点 雨水口节点 阀门井 快速取水阀水表 自动排气阀cad施工图
快速取水器取水阀安装大样给排水节点cad施工图
快速取水阀排水口井盖给排水节点CAD施工图集 11套cad施工图
检修井 井盖节点 绿化盖板 给排水节点详图cad施工图
雨水口节点 篦子 井圈cad施工图
排水沟节点 沉沙井沉砂井 盖板 篦子 井盖节点 CAD施工图cad施工图
排水井 盖板 井盖节点 CAD施工图cad施工图
井盖节点 种植井 双层井盖 盖板 CAD施工图cad施工图
手孔井节点 手孔井详图 手孔井做法 手孔井大样图 电井 人井cad施工图
圆污井雨井污水检查井雨水管道隐形井盖详图检查井节点做法CADcad施工图
井盖节点 盖板 不锈钢装饰井 CAD施工图cad施工图
井盖节点 装饰井检修井 起吊口cad施工图
井盖节点检修井排水盖板篦子CAD施工图cad施工图
井盖节点 装饰井检查井盖板 绿化种植盆 绿化种植井圈 抽手杆cad施工图
雨水口节点排水井CAD施工图cad施工图
示范区 给排水设计说明 景观设计说明 管道阀门井检查井cad施工图
井盖节点 检修井装饰盖板 起吊口大样 CAD施工图cad施工图
雨水井污水井检查井交汇井井盖给排水节点CAD施工图集 55套cad施工图
雨水井节点 井盖节点 绿地植草井盖板 种植盘 CAD施工图cad施工图
井盖节点 方形井圆形井 球墨铸铁井盖cad施工图
点击加载更多
分享到
复制链接
保存海报
取消
请选择收藏夹
+新增收藏夹
新增收藏夹
取消
确认
退出查看