模型详情
1/8
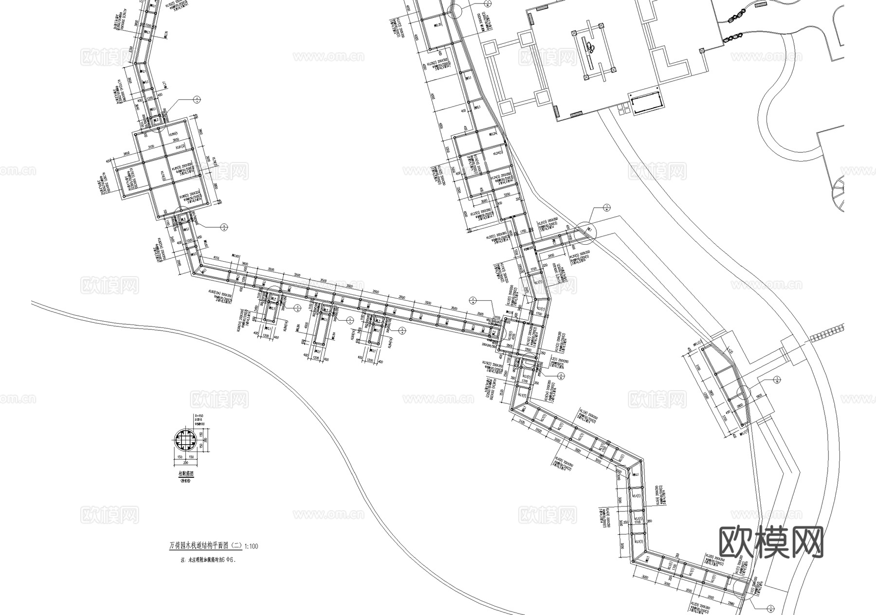
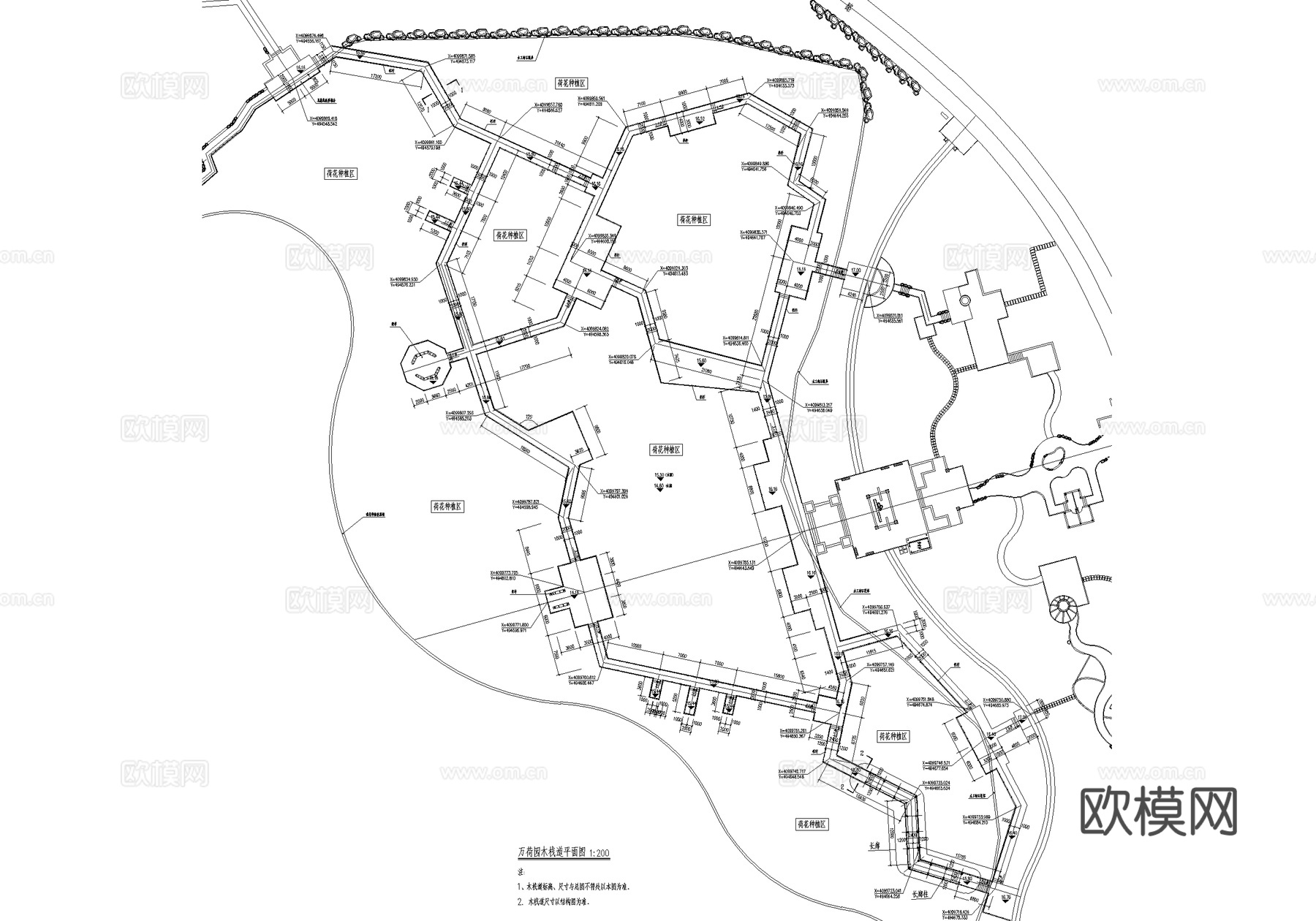
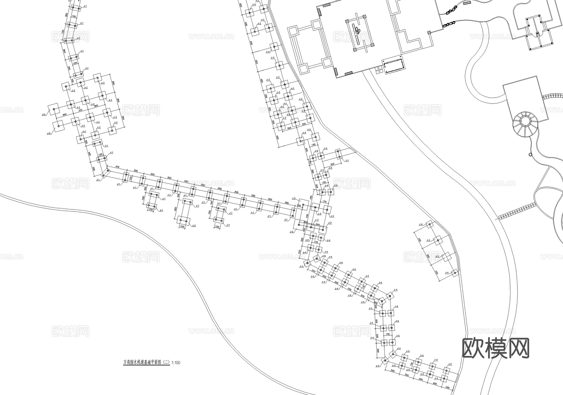
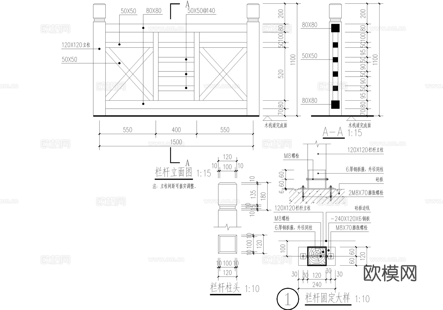
荷花池水中木栈道 栏杆cad施工图
ID:
5411983
荷花池水中木栈道 栏杆cad施工图 ID-5411983
所需欧币:
16
发布时间:
2026-02-24
下载请使用电脑登录欧模网,建议先收藏
收藏
分享
皮肤干燥
关注
为您推荐
木栈道 木栏杆 扶手cad施工图
木栈道 木栏杆 扶手cad施工图
山地登山木栈道 栏杆扶手cad施工图
标准木栈道栏杆景观节点CAD施工图集cad施工图
木栈道cad施工图
木栈道cad施工图
景观天桥 栈桥 栈道 铁艺栏杆 栏杆扶手cad施工图
湿地木栈道cad施工图
湿地木栈道cad施工图
观景木平台 亲水台 木栈道廊架木栏杆 CAD施工图cad施工图
山地山体木栈道cad施工图
铁艺围墙护栏庭院围墙玻璃栏杆景观栏杆栈道栏杆素材CAD图库cad施工图
防腐木栈道 木平台 CAD施工图cad施工图
塑木平台 观景台 木栈道 CAD施工图cad施工图
水上木栈道cad施工图cad施工图
木栈道柱梁配筋 CAD施工图cad施工图
架空木栈道 结构图cad施工图
登山木栈道景观CAD施工详图集cad施工图cad施工图
栏板 石栏杆 木栏杆 CAD施工图cad施工图
木栏杆cad施工图
点击加载更多
分享到
复制链接
保存海报
取消
请选择收藏夹
+新增收藏夹
新增收藏夹
取消
确认
退出查看