模型详情
1/8
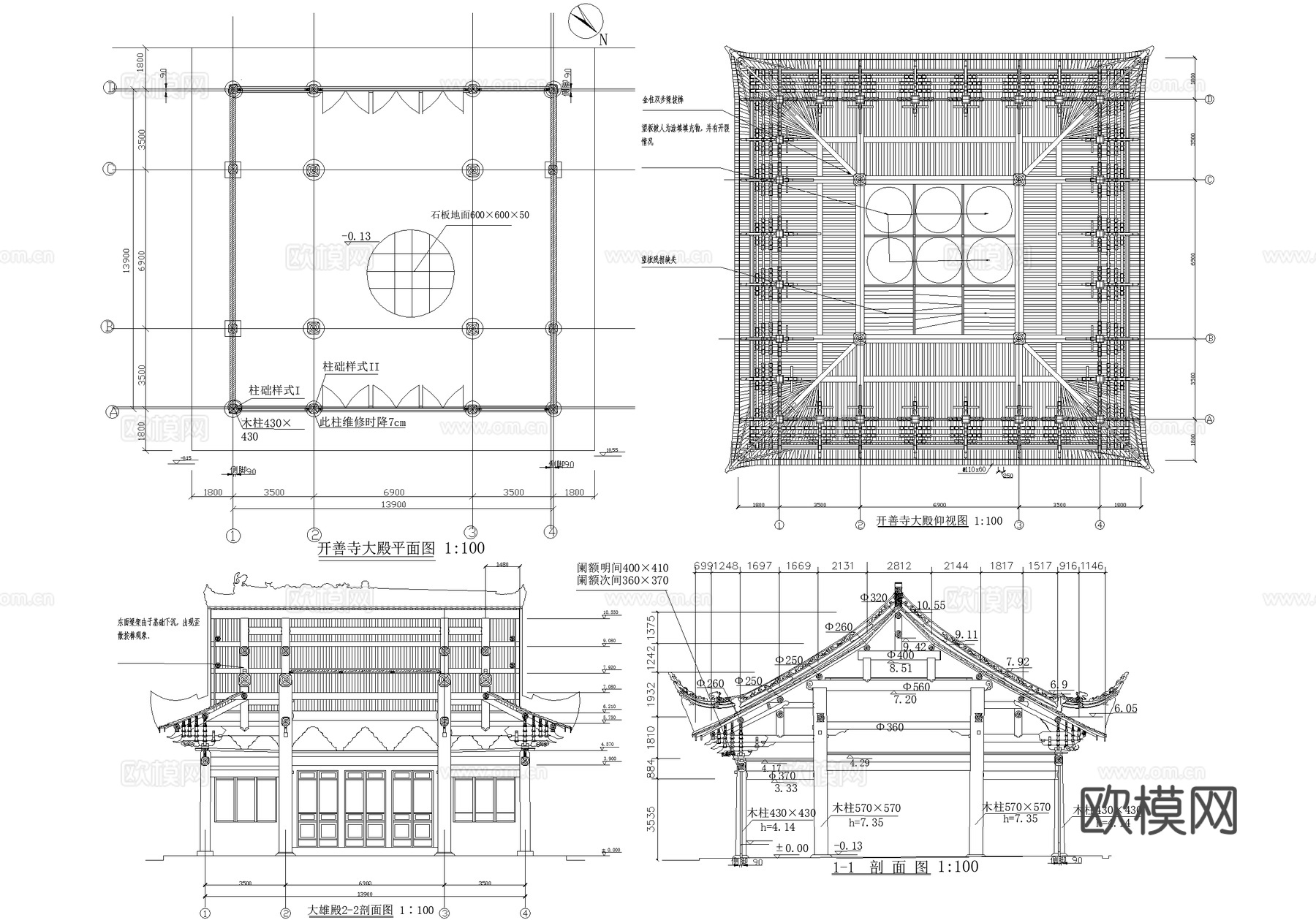
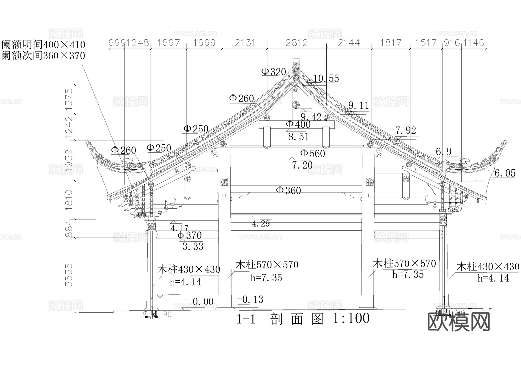
寺庙 大雄殿测绘图 古建筑维修保护cad施工图
ID:
5412061
寺庙 大雄殿测绘图 古建筑维修保护cad施工图 ID-5412061
所需欧币:
16
发布时间:
2026-02-24
下载请使用电脑登录欧模网,建议先收藏
收藏
分享
皮肤干燥
关注
为您推荐
中式寺庙 大雄宝殿建筑结构 重檐歇山顶cad施工图
中式寺庙 大雄宝殿殿堂 重檐歇山顶塑像座cad施工图
寺庙 道观大殿仿古建筑 重檐歇山顶cad施工图cad施工图
寺庙陵苑牌楼牌坊古建筑CAD施工详图cad施工图
寺庙 观音堂大殿 仿古建筑 重檐歇山顶cad施工图
寺庙 山地仿古建筑 总平面规划图 侧立面图cad施工图
中式寺庙 单层斋堂餐厅食堂cad施工图
寺庙 总平面规划图cad施工图
寺庙 厢房仿古建筑 川东北民居风格 二层钢混木结构cad施工图
钟楼古建筑测绘CAD施工图集cad施工图
汉代庄王阁古建筑CAD施工图集cad施工图
戏台戏楼仿古建筑CAD施工图cad施工图
入口牌坊古建筑CAD施工详图cad施工图
制图规范标注范例设备图例绘图线型CAD施工图cad施工图
寺庙 万寿宫戏楼 明清仿古建筑 二层钢混木结构cad施工图
仿古牌坊平立剖面古建筑CAD施工图cad施工图
狮子楼古建筑牌坊牌楼CAD施工图集cad施工图
陵园入口牌坊牌楼古建筑CAD施工图cad施工图
饭店商铺仿古建筑CAD施工图cad施工图
购物公园牌坊牌楼古建筑CAD施工图cad施工图
点击加载更多
分享到
复制链接
保存海报
取消
请选择收藏夹
+新增收藏夹
新增收藏夹
取消
确认
退出查看