模型详情
1/7
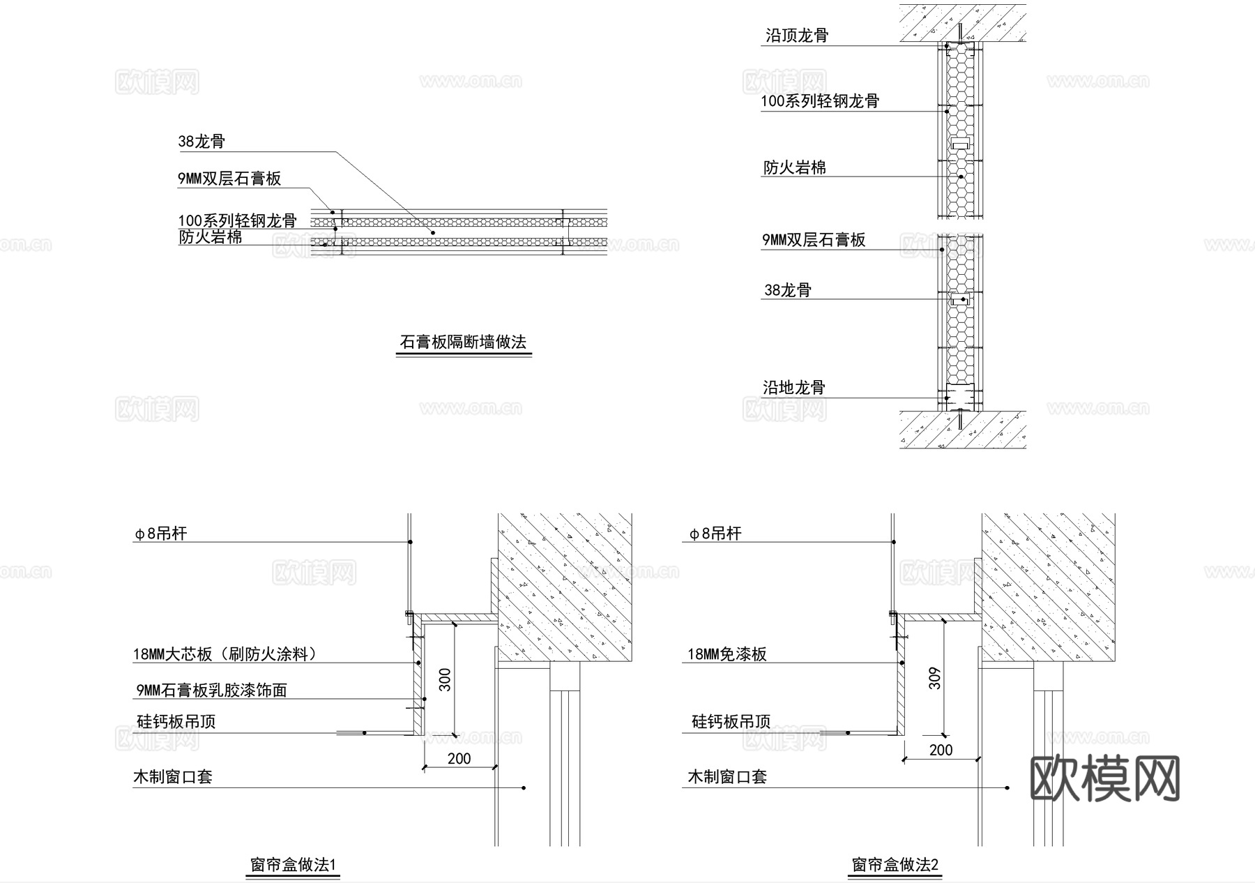
医院 二层平面顶面图 节点图cad施工图
ID:
5413888
医院 二层平面顶面图 节点图cad施工图 ID-5413888
所需欧币:
16
发布时间:
2026-02-24
下载请使用电脑登录欧模网,建议先收藏
收藏
分享
皮肤干燥
关注
为您推荐
医院病房楼平面图 CAD施工图cad施工图
二层独立别墅建筑平面CAD施工图cad施工图
整形医院平面系统图cad施工图
顶面吊顶节点 格栅吊顶 现代吊顶cad施工图
吊顶节点 顶面节点 透光软膜吊顶 工装吊顶cad施工图
天花吊顶 异形吊顶 吊顶节点 顶面节点cad施工图
二层露营风餐厅 平面图 帐篷区cad施工图cad施工图
二层中餐厅平面系统图cad施工图
二层会所室内工装平面图CAD施工图cad施工图
暗藏灯带节点 吊顶节点 顶面节点 现代吊顶 弧形吊顶cad施工图
茶馆 茶室茶吧平面图 茶楼 总平面顶面地面cad施工图
弧形吊顶 天花吊顶 客厅吊顶 吊顶节点 顶面节点cad施工图
二层餐厅饭店室内工装平面图CAD施工图cad施工图
二层别墅建筑CAD施工图cad施工图
病房住院医技综合楼 一二层平面图cad施工图
样板间效果图 施工图 平面 立面 节点cad施工图
样板间效果图 施工图 平面 立面 节点cad施工图
天花吊顶平面剖面节点详图CAD素材图库cad施工图cad施工图
二层别墅带地下室室内家装平面CAD施工图cad施工图
酒店展厅吊顶 现代吊顶 格栅吊顶 顶面吊顶节点cad施工图
点击加载更多
分享到
复制链接
保存海报
取消
请选择收藏夹
+新增收藏夹
新增收藏夹
取消
确认
退出查看