模型详情
1/3
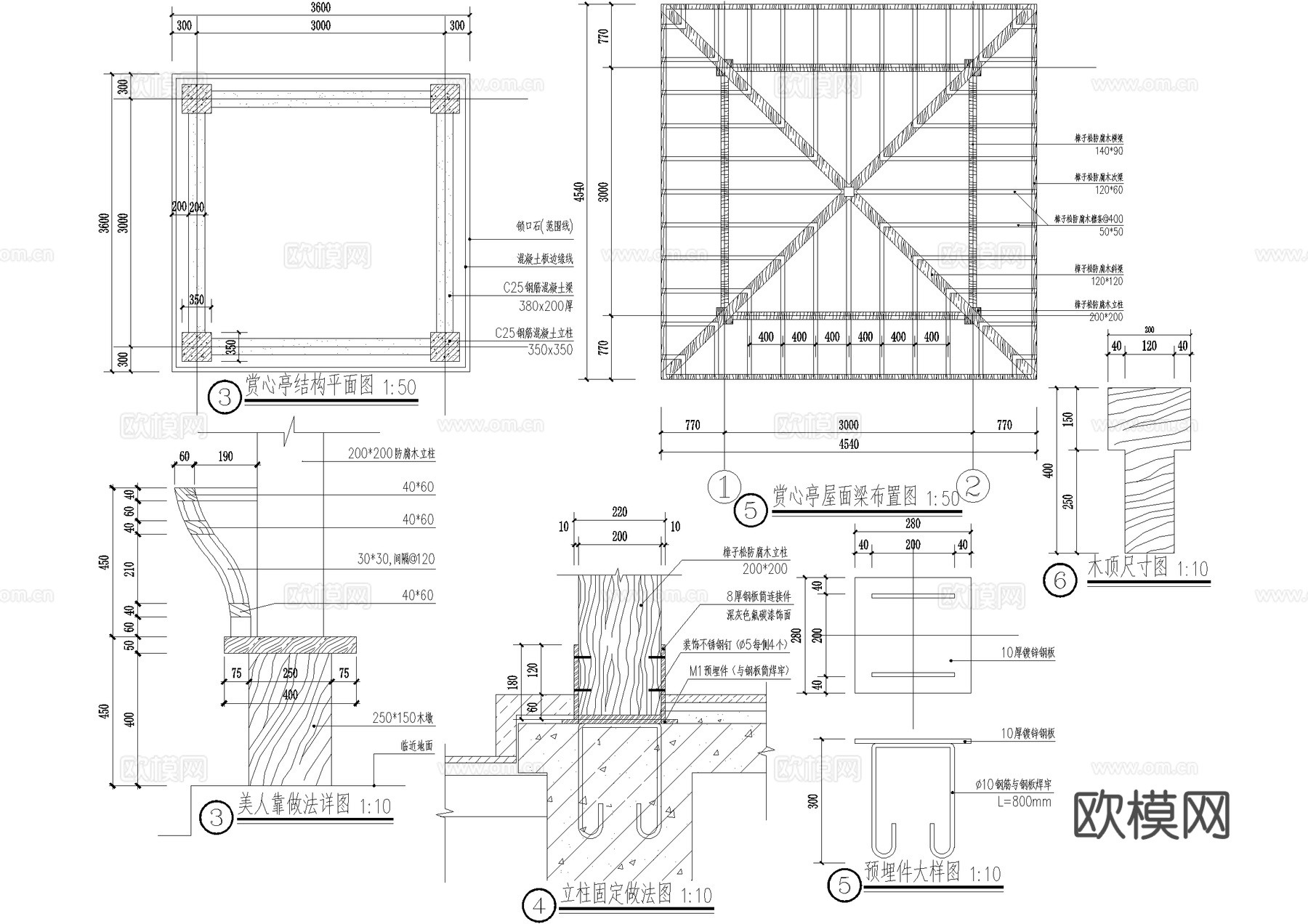
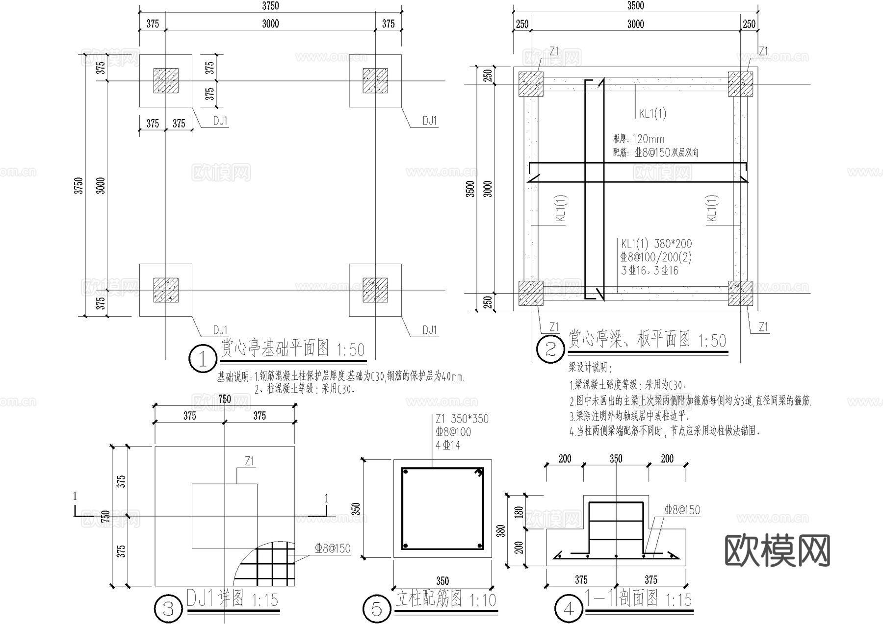
亭子 四角亭 木亭 方亭美人靠 景观亭 凉亭cad施工图
ID:
5413989
亭子 四角亭 木亭 方亭美人靠 景观亭 凉亭cad施工图 ID-5413989
所需欧币:
16
发布时间:
2026-02-24
下载请使用电脑登录欧模网,建议先收藏
收藏
分享
皮肤干燥
关注
为您推荐
四角亭 方亭 木亭 景观亭 凉亭cad施工图
茅草亭 四角亭 木亭 景观亭 凉亭cad施工图
亭子 茅草亭 圆亭 木亭 景观亭 凉亭cad施工图
亭子 茅草亭 圆亭 木亭 景观亭 凉亭cad施工图
新中式亭子 四角亭 方亭 景观亭 凉亭 钢结构亲水亭cad施工图
亭子 茅草亭 圆亭 木亭 景观亭凉亭 防腐木坐凳座椅cad施工图
亭子 茅草亭 圆亭 木亭 景观亭凉亭 圆锥顶防腐木坐凳cad施工图
亭子 茅草亭 圆亭 景观亭 凉亭 钢构架cad施工图
中式亭子 六角亭 仿古建筑 景观亭 凉亭 木亭cad施工图
弧形亭 弯形凉亭 弧形廊亭 圆弧凉亭 弧形景观亭cad施工图
欧式亭子 圆亭 铁艺顶 景观亭 凉亭cad施工图
亭子 休闲亭 遮阳亭 观景亭 六角亭cad施工图
茅草亭 圆亭 木亭 六角亭 景观亭cad施工图
水榭 仿古建筑 景观亭 四角亭 凉亭 CAD施工图cad施工图
中式亭子 六角亭 仿古建筑 景观亭 凉亭 美人靠坐凳宝顶cad施工图
中式亭子 六角亭 仿古建筑美人靠 景观亭 凉亭 宝顶cad施工图cad施工图
廊架 四角亭景观亭子 玻璃廊架 钢结构廊架cad施工图
廊架 四角亭子景观亭 钢结构廊架 格栅cad施工图cad施工图
新中式廊架 钢结构玻璃廊架 铁艺廊架四角亭子 景观廊亭凉亭cad施工图
东南亚风四角木亭景观CAD施工图cad施工图
点击加载更多
分享到
复制链接
保存海报
取消
请选择收藏夹
+新增收藏夹
新增收藏夹
取消
确认
退出查看