模型详情
1/4
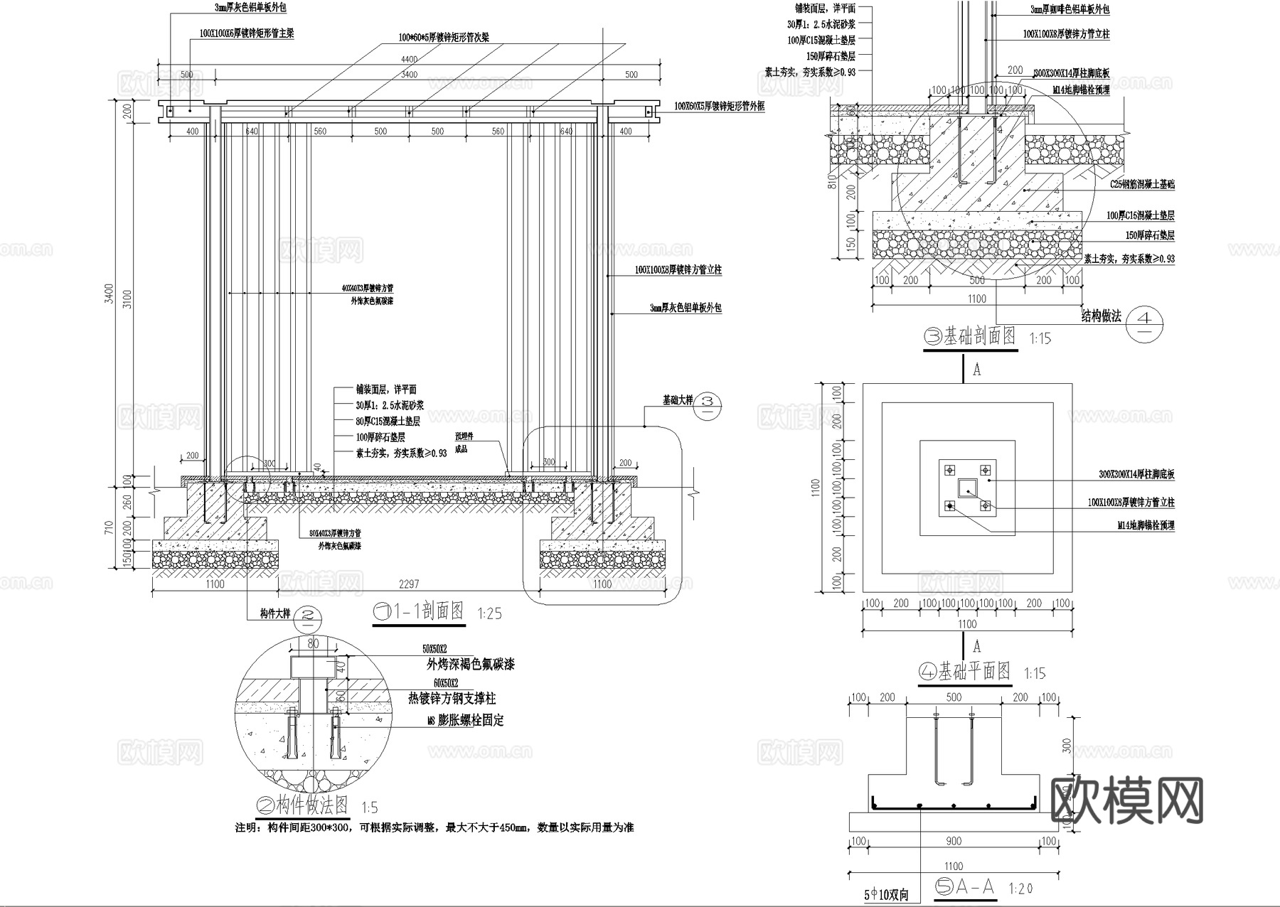
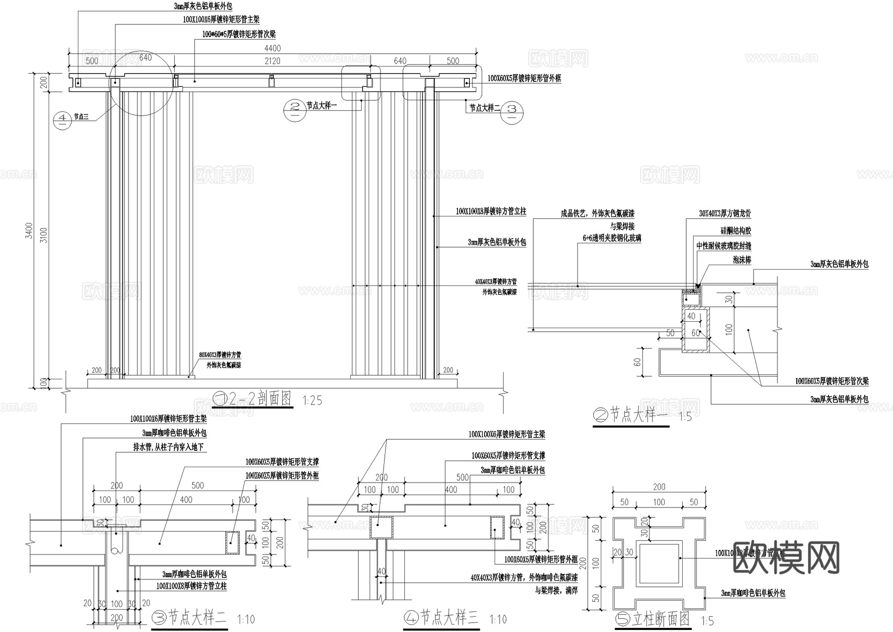
新中式廊架 钢结构玻璃廊架 铁艺廊架四角亭子 景观廊亭凉亭cad施工图
ID:
5413959
新中式廊架 钢结构玻璃廊架 铁艺廊架四角亭子 景观廊亭凉亭cad施工图 ID-5413959
所需欧币:
16
发布时间:
2026-02-24
下载请使用电脑登录欧模网,建议先收藏
收藏
分享
皮肤干燥
关注
为您推荐
廊架 四角亭景观亭子 玻璃廊架 钢结构廊架cad施工图
新中式廊架 景观亭四角亭子 玻璃廊架 木廊架 格栅cad施工图
廊架 四角亭子景观亭 钢结构廊架 格栅cad施工图cad施工图
新中式廊架 景观亭四角亭子 钢结构廊架 格栅链接射灯cad施工图
现代异形廊架 弧形廊架 钢结构廊架 风雨连廊cad施工图
新中式廊架 钢结构廊架 玻璃廊架 风雨廊架会客厅cad施工图
新中式亭子 四角亭 方亭 景观亭 凉亭 钢结构亲水亭cad施工图
新中式玻璃廊架 风雨连廊 钢结构廊架 文化长廊 宣传栏坐凳cad施工图
欧式亭子 圆亭 铁艺顶 景观亭 凉亭cad施工图
弧形亭 弯形凉亭 弧形廊亭 圆弧凉亭 弧形景观亭cad施工图
现代弧形廊架 钢结构廊架 异形廊架 风雨长廊cad施工图
现代玻璃廊架 钢结构廊架 会客厅坐凳cad施工图
现代弧形廊架 钢结构廊架 异形廊架 景墙长廊cad施工图
现代玻璃廊架 钢结构廊架 会客厅格栅隔板cad施工图
中式廊架 仿古建公交车站台 亭子 单臂钢结构廊架 坐凳柱脚cad施工图
亭子 四角亭 木亭 方亭美人靠 景观亭 凉亭cad施工图
四角亭 方亭 木亭 景观亭 凉亭cad施工图
茅草亭 四角亭 木亭 景观亭 凉亭cad施工图
园林景观休闲廊架亭廊节点CAD施工图集 17套cad施工图
亭子 茅草亭 圆亭 木亭 景观亭 凉亭cad施工图
点击加载更多
分享到
复制链接
保存海报
取消
请选择收藏夹
+新增收藏夹
新增收藏夹
取消
确认
退出查看