模型详情
1/8
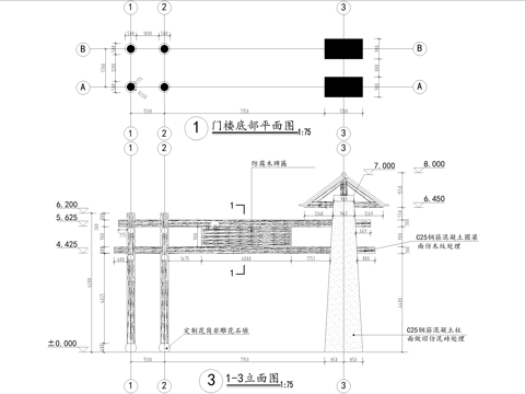
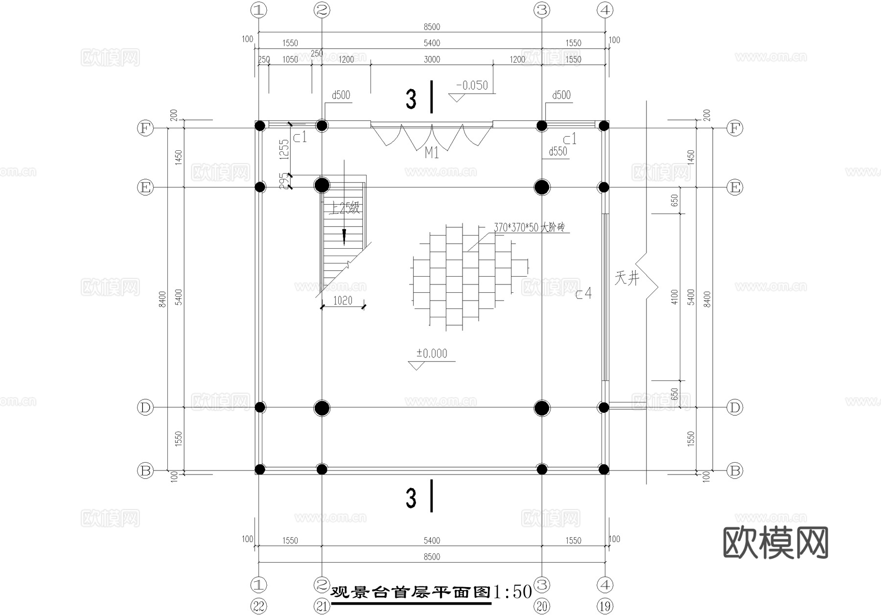
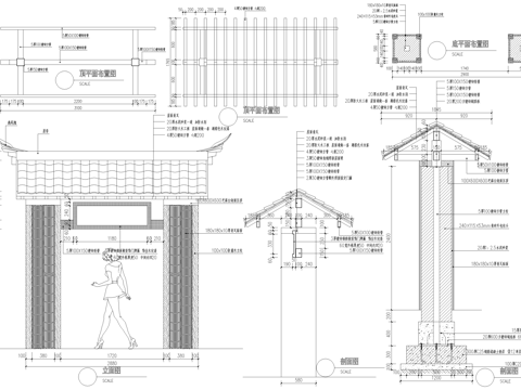
中式寺庙 山门古建大门门头cad施工图
ID:
5412074
中式寺庙 山门古建大门门头cad施工图 ID-5412074
所需欧币:
16
发布时间:
2026-02-24
下载请使用电脑登录欧模网,建议先收藏
收藏
分享
皮肤干燥
关注
为您推荐
中式门头 大门 门楼 垂花门 古建筑 CAD施工图cad施工图
寒山陵园山门牌坊牌楼古建筑CAD施工图cad施工图
古建中式门头节点大样CAD施工图cad施工图
寺庙 道观大殿仿古建筑 重檐歇山顶cad施工图cad施工图
寺庙陵苑牌楼牌坊古建筑CAD施工详图cad施工图
寺庙 大雄殿测绘图 古建筑维修保护cad施工图
寺庙 观音堂大殿 仿古建筑 重檐歇山顶cad施工图
中式寺庙 单层斋堂餐厅食堂cad施工图
新中式门头 门楼 景观入口大门 仿古建筑门廊cad施工图
新中式门头 庭院入口大门 门楼 古建门廊院墙 入户门cad施工图
新中式门头 庭院入口大门 门楼 古建门廊院墙 入户门cad施工图
门头 庭院大门 乡村景观铁艺门 入口大门cad施工图
中式寺庙 二层斋堂餐厅食堂cad施工图
中式欧式门头小区住宅大门传达室特色门头详图CAD素材图库cad施工图
新中式门头 庭院入口大门 门楼 仿古建筑门廊 入户门cad施工图
中式门头 垂花门仿古建筑 门楼 庭院入口大门 入户门cad施工图
新中式门头 庭院入口大门 仿古建筑门廊 门楼 入户门cad施工图
门头 入口大门 门楼 乡村景观庭院大门cad施工图
古建照壁CAD施工图cad施工图
古建牌坊CAD施工图cad施工图
点击加载更多
分享到
复制链接
保存海报
取消
请选择收藏夹
+新增收藏夹
新增收藏夹
取消
确认
退出查看