模型详情
1/8
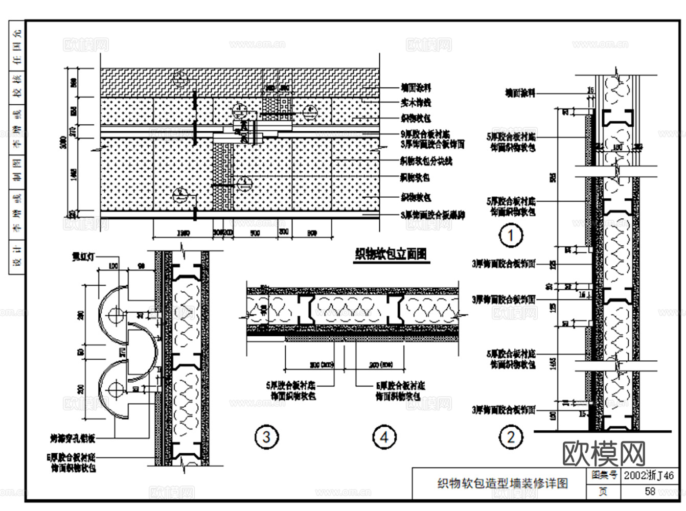
430个墙面各材质节点图全集cad施工图
ID:
5414527
430个墙面各材质节点图全集cad施工图 ID-5414527
所需欧币:
86
发布时间:
2026-02-24
下载请使用电脑登录欧模网,建议先收藏
收藏
分享
大可
关注
为您推荐
各材料标准墙面工艺节点CAD施工图集cad施工图
各材质室内地面地坪节点大样详图CAD施工图cad施工图
铝板墙面节点CAD施工图cad施工图
铝单板墙身墙面节点CAD施工图cad施工图
铝单板发光墙面节点CAD施工图cad施工图
硬包节点 墙面硬包节点cad施工图
墙面节点 墙面凿洞节点 儿童室内墙面装饰cad施工图
墙纸饰面墙面 墙面剖面图 墙面节点cad施工图
墙面节点大样CAD施工详图cad施工图
影视厅墙面节点 影视厅平立面图 墙面布局 墙面节点cad施工图
涂料墙面剖面图 轻质砖墙体 墙面节点cad施工图
吊顶天花投影仪墙面节点CAD施工图cad施工图
厨房平立面图 现代厨房 厨房布局节点 墙面节点cad施工图
扪皮墙面 餐厅背景墙 装饰墙面 墙面节点cad施工图
墙面与顶面材质相接工艺做法CAD详图集cad施工图
墙面工艺节点大样CAD施工详图集cad施工图
花箱节点CAD施工图cad施工图
铝板幕墙节点CAD施工图cad施工图
卫浴节点 卫浴柜子节点 卫生间立面图 墙面节点cad施工图
厨房墙面布局 墙面节点 厨房平立面图 现代厨房cad施工图
点击加载更多
分享到
复制链接
保存海报
取消
请选择收藏夹
+新增收藏夹
新增收藏夹
取消
确认
退出查看