模型详情
1/3
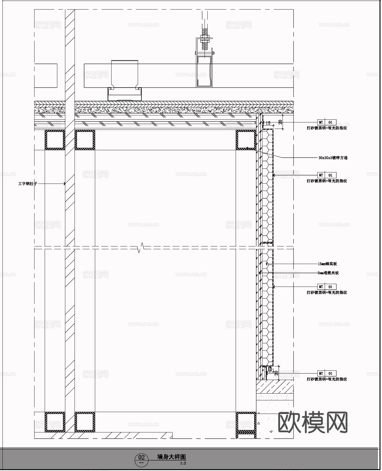
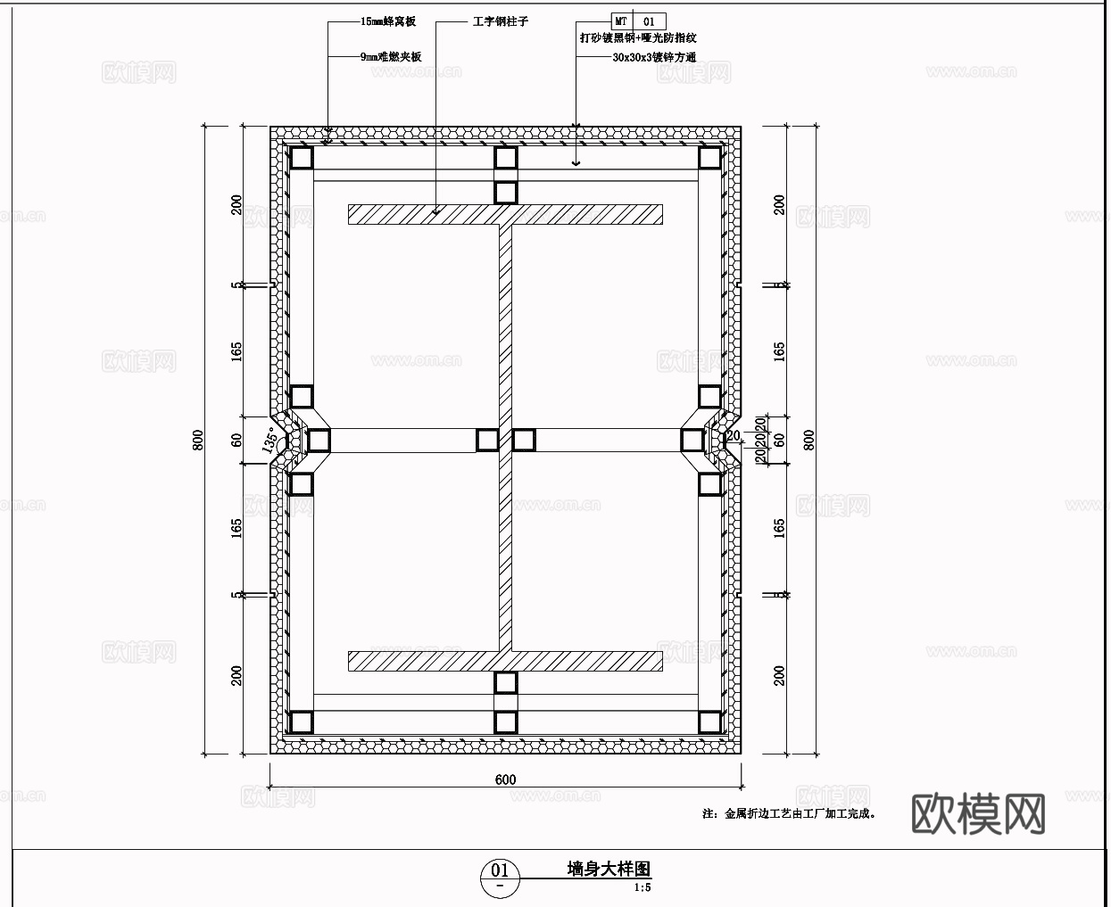
现代柱子 展厅大堂柱子 打砂镀黑钢包柱 幕墙柱子cad施工图
ID:
5419951
现代柱子 展厅大堂柱子 打砂镀黑钢包柱 幕墙柱子cad施工图 ID-5419951
所需欧币:
36
发布时间:
2026-02-28
下载请使用电脑登录欧模网,建议先收藏
收藏
分享
妮子1973
关注
为您推荐
建筑柱子柱式装饰详图CAD施工图cad施工图
柱子基座 柱底座 石雕柱墩 柱础 柱基石 CAD施工图cad施工图
灯箱节点 架穿层灯箱柱子 方形柱子节点cad施工图
柱子节点大样CAD施工详图cad施工图
栏杆柱子柱头图块图库cad施工图
包柱发光柱大理石柱子铝板圆柱石材柱剖面详图节点CAD素材图库cad施工图
39套柱头柱子柱首门头雨棚类CAD节点详图最细整理合集cad施工图
砖混结构墙体柱子圈梁板构造节点大样CAD施工图集cad施工图
石材干挂墙剖面图 墙面节点 剪力墙混凝土柱子cad施工图cad施工图
中式家具柜子柱子栏杆构件中式彩画隔断书法欧式花纹线条CAD素cad施工图
大堂立柱装饰柱联体柱节点大样CAD施工详图集cad施工图
铝板幕墙节点CAD施工图cad施工图
铝板格栅幕墙CAD施工图cad施工图
铝板幕墙铝塑板包梁包柱玻璃幕墙铝方管剖面详图节点大样CAD素cad施工图
柱式罗马柱花瓶立柱西式柱欧式柱CAD素材图库cad施工图
酒店大堂CADcad施工图cad施工图
酒店大堂CADcad施工图
酒店大堂CADcad施工图
吊挂式玻璃幕墙挂钩式幕墙明框幕墙玻璃排窗剖面详图节点CAD素cad施工图
会所大堂吊顶节点CAD施工图cad施工图
点击加载更多
分享到
复制链接
保存海报
取消
请选择收藏夹
+新增收藏夹
新增收藏夹
取消
确认
退出查看