模型详情
1/1
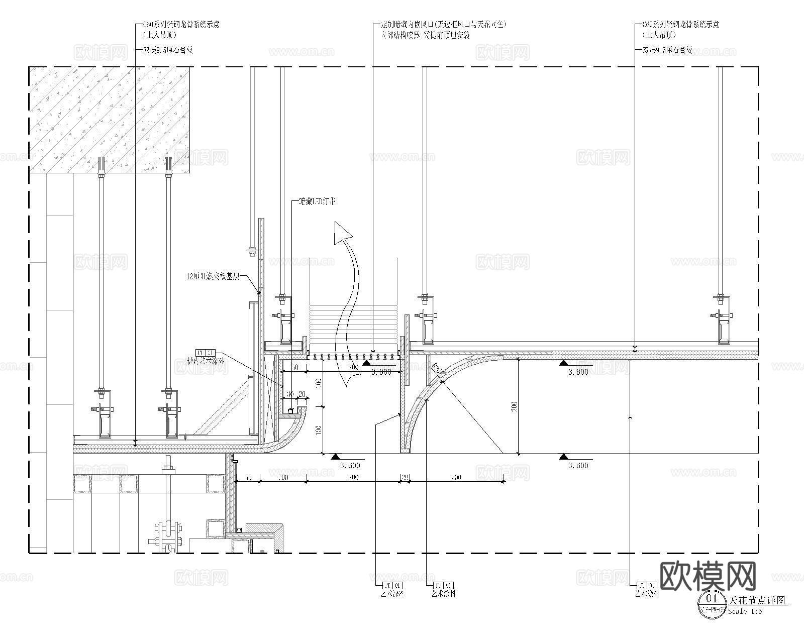
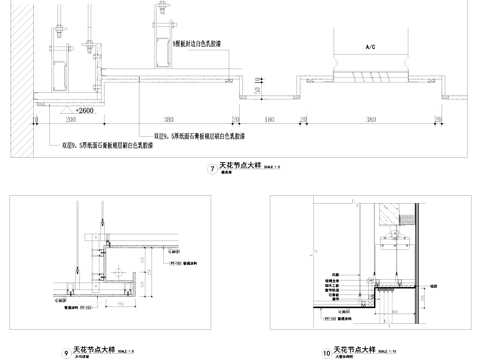
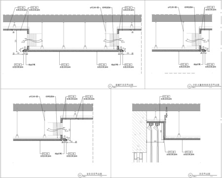
石膏板弧形造型带空调风口节点cad施工图
ID:
5426372
石膏板弧形造型带空调风口节点cad施工图 ID-5426372
所需欧币:
16
发布时间:
2026-03-06
下载请使用电脑登录欧模网,建议先收藏
收藏
分享
乐死你
关注
为您推荐
石膏板造型吊顶节点 天花节点 空调侧出风节点 窗帘cad施工图
暗藏灯带节点 吊顶节点 顶面节点 现代吊顶 弧形吊顶cad施工图
空调风口通用大样cad施工图cad施工图
弧形吊顶 卧室吊顶 石膏板吊顶 吊顶节点cad施工图
现代吊顶 顶面节点 吊顶节点 弧形天花板 石膏板吊顶cad施工图
方形空调出风口 矩形通风口 空调百叶风口 方形排风栅格cad施工图
石膏板吊顶节点CAD施工图cad施工图
石膏板吊顶 天花吊顶 弧形吊顶 现代吊顶 吊顶节点cad施工图
无主灯吊顶 石膏板吊顶 吊顶节点 卧室吊顶 弧形吊顶cad施工图
灯带灯槽节点CAD施工图cad施工图
弧形旋转楼梯节点cad施工图
儿童造型柜立面和节点cad施工图
灯槽灯带LED软条灯线型灯石膏板天花吊顶节点CADcad施工图
石膏板吊顶 高低差造型天花cad施工图
轻钢龙骨石膏板吊顶节点CAD施工图cad施工图
客厅与天井通道吊顶 石膏板吊顶 顶面节点 吊顶节点cad施工图
异形圆弧形天花节点cad施工图
弧形吊顶 天花吊顶 客厅吊顶 吊顶节点 顶面节点cad施工图
型材灯带节点_悬浮式吊顶_灯槽节点_嵌入式灯带cad施工图
双层纸面石膏板吊顶天花节点CAD施工图cad施工图
点击加载更多
分享到
复制链接
保存海报
取消
请选择收藏夹
+新增收藏夹
新增收藏夹
取消
确认
退出查看