模型详情
1/8
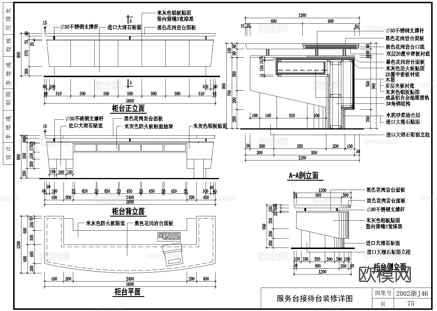
26套服务台前台接待台讲台柜台CAD节点详图最新整理合集cad施工图
ID:
5429690
26套服务台前台接待台讲台柜台CAD节点详图最新整理合集cad施工图 ID-5429690
所需欧币:
86
发布时间:
2026-03-09
下载请使用电脑登录欧模网,建议先收藏
收藏
分享
大可
关注
为您推荐
20套玻璃类隔断CAD节点详图最新整理合集cad施工图
23套前台接待台吧台CAD节点大样施工图最新整理合集cad施工图
180个地面CAD节点图最新整理合集cad施工图
110各类隔墙做法节点墙体CAD施工图最新整理合集cad施工图
30套酒柜展示柜等CAD节点图大样图详图最新整理合集cad施工图
10套金属铝板CAD节点图最新整理合集cad施工图
65款护栏栏杆扶手CAD节点图最新整理合集cad施工图
11套玻璃护栏节点图2026最新整理合集cad施工图
服务台前台节点大样详图CAD施工图cad施工图
前台节点 柜台接待台 服务台咨询台cad施工图
银行柜台贵宾柜台服务前台接待台柜台剖面详图节点大样CAD素材cad施工图
100套门窗节点大样CAD图纸最新整理合集cad施工图
200个石材节点大样CAD施工图最新整理合集cad施工图
17款窗帘盒节点CAD图纸最新整理合集cad施工图cad施工图
32款现代风格暗门隐形门CAD节点图最新整理合集cad施工图
前台节点 接待台 吧台 服务台 CAD施工图cad施工图
29套餐厅酒店包房CAD详图2026最新整理合集cad施工图
46套卫浴节点图洗手盆淋浴隔断等卫浴CAD节点图最新整理合集cad施工图
18套食堂建筑cad图纸2026最新整理合集cad施工图
20套游泳池CAD图纸2026最新整理合集cad施工图
点击加载更多
分享到
复制链接
保存海报
取消
请选择收藏夹
+新增收藏夹
新增收藏夹
取消
确认
退出查看