模型详情
1/1
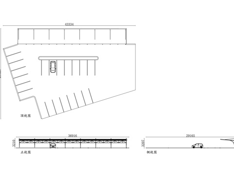
空心楼板 预制空心板 空心板构件 轻质空心板 中空板结构cad施工图
ID:
5434136
空心楼板 预制空心板 空心板构件 轻质空心板 中空板结构cad施工图 ID-5434136
所需欧币:
36
发布时间:
2026-03-13
下载请使用电脑登录欧模网,建议先收藏
收藏
分享
海量CAD素材库
关注
为您推荐
空心木饰面门节点 CAD施工图cad施工图
空心塑木平台 木平台 石材交接 塑木板拼接 CADcad施工图
夹层楼板钢结构CADcad施工图
穿孔板冲孔板CADcad施工图
矿棉板吊顶钢结构天花转换层CAD施工图cad施工图
砖混结构墙体柱子圈梁板构造节点大样CAD施工图集cad施工图
陶板节点cad施工图
穿孔板冲孔板铝板节点大样详图CAD施工图集cad施工图
蜂窝板干挂墙面CAD施工图cad施工图
耐候板景墙CADcad施工图
太阳能电池板 光伏板 太阳能板 光伏组件 光伏电板cad施工图
电梯呼梯板节点CAD施工图cad施工图
石膏板吊顶节点CAD施工图cad施工图
钢结构夹层楼板阁楼建筑楼梯屋面节点CAD施工图 15套cad施工图
冲浪板 划水板 直立桨板 SUP 板 水上桨板cad施工图
实木门结构门板抽面剖面做法工艺详图节点CAD素材图库cad施工图
钢结构工业厂房建筑及结构CAD施工图cad施工图
穿孔板景墙水景CAD施工图集cad施工图
板前料理板前烧烤日韩料理日式料理平面布置图cad施工图
钢结构车棚遮阳顶 钢构停车篷顶棚 钢制停车遮阳板 钢结构停车cad施工图
点击加载更多
分享到
复制链接
保存海报
取消
请选择收藏夹
+新增收藏夹
新增收藏夹
取消
确认
退出查看