模型详情
1/1
远控排烟阀(口)操作装置暗门立面详图cad施工图
ID:
5427999
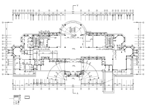
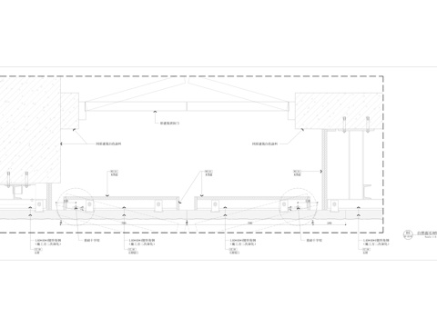
远控排烟阀(口)操作装置暗门立面详图cad施工图 ID-5427999
所需欧币:
16
发布时间:
2026-03-09
下载请使用电脑登录欧模网,建议先收藏
收藏
分享
乐死你
关注
为您推荐
雨水口给排水节点详图cad施工图
涂料铝木隐形门暗门节点大样详图CAD施工图集cad施工图
快速耦合阀 CAD施工图cad施工图
快速取水阀排水口井盖给排水节点CAD施工图集 11套cad施工图
暗门详图超高超重门做法地弹簧玻璃门移门剖面详图节点CAD素材cad施工图
燃气分气阀 燃气多路阀 燃气集管阀 燃气分配阀 燃气总管阀cad施工图
消防箱消火栓详图立面剖面节点CAD素材图库cad施工图
远乐邦辉会所建筑CAD施工图集cad施工图
阀门 闸阀 门阀开关 截门阀 管路门阀cad施工图
气动阀岛 气动汇流阀组 电磁阀集成块 气动阀组 集成气动阀cad施工图
天花吊顶检修口窗帘盒节点大样详图CAD施工图cad施工图
卫生间暗门 卧室暗门 木皮饰面暗门 门节点cad施工图
石材暗门节点cad施工图
开关插座 面板轨道插座 单控双控cad施工图
管沟开挖回填管道沟槽图绿化取水器排水口雨水口详图CAD素材cad施工图
雨水口节点 硬质中雨水口 绿地雨水口 CAD施工图cad施工图
石材隐形门施工大样详图 石材暗门 门表图 木饰面门大样详图cad施工图
景观小品详图CAD施工图cad施工图
景观坐凳详图CAD施工图cad施工图
雨水口节点 灌溉供水口cad施工图
点击加载更多
分享到
复制链接
保存海报
取消
请选择收藏夹
+新增收藏夹
新增收藏夹
取消
确认
退出查看