模型详情
1/5
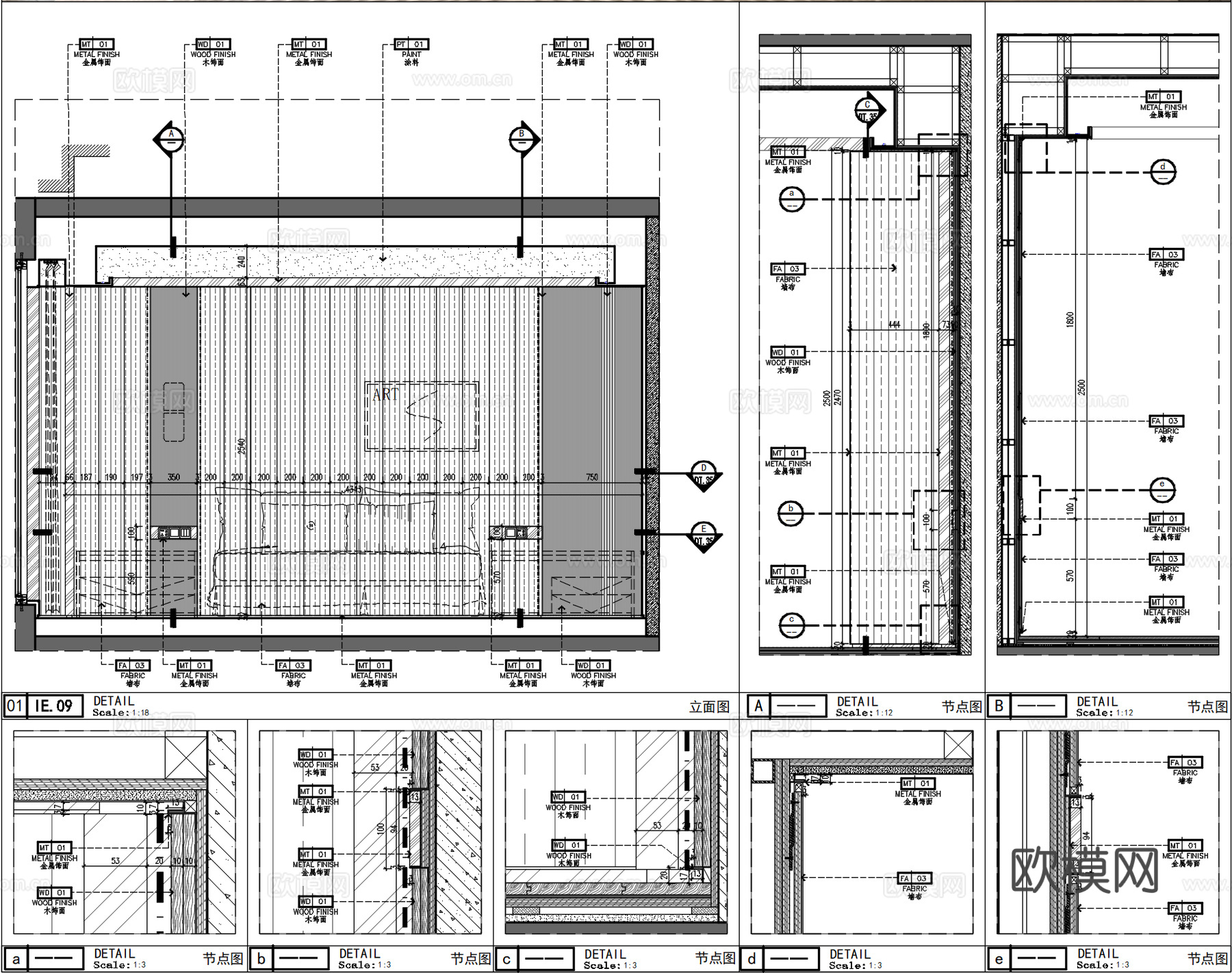
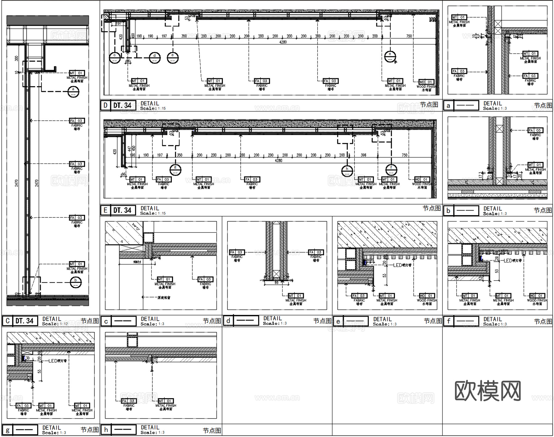
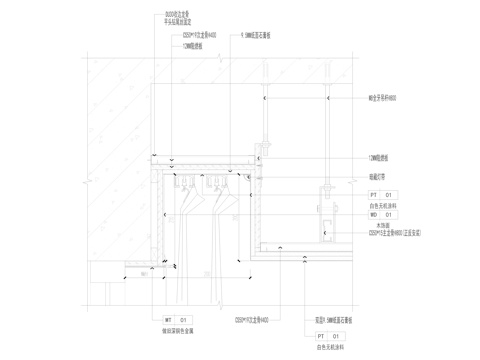
床头硬包造型、床头背景墙灯带、床头背景墙详图、木格栅暗藏灯带cad施工图
ID:
5383275
床头硬包造型、床头背景墙灯带、床头背景墙详图、木格栅暗藏灯带cad施工图 ID-5383275
所需欧币:
36
发布时间:
2026-02-05
下载请使用电脑登录欧模网,建议先收藏
收藏
分享
设计爱好姐
关注
为您推荐
窗帘盒暗藏灯带节点cad施工图
墙面节点 卧室墙面 硬包墙面 床头背景墙cad施工图
卧室床头背景墙、复古轻奢风背景墙、主卧室背景造型墙、硬包墙布cad施工图
暗藏灯带节点 吊顶节点 顶面节点 现代吊顶 弧形吊顶cad施工图
灯带灯槽节点CAD施工图cad施工图
硬包床头靠背立面 节点.cad施工图
型材灯带节点_悬浮式吊顶_灯槽节点_嵌入式灯带cad施工图
卧室背景墙 背景墙立面图 床头背景墙 背景墙节点cad施工图
LED线性灯灯带灯槽剖面图库CAD施工图cad施工图
暗藏灯带吊顶 办公咖啡区柜子 现代厨柜 柜子墙面节点cad施工图
弧形背景墙 墙面节点 金属背景墙 高光烤漆墙面 床头背景墙cad施工图
双眼皮吊顶侧面灯带节点cad施工图
木平台 文字标识 台阶坐凳 LED灯带 CAD施工图cad施工图
玄关背景墙面造型施工大样详图 玄关端景造型墙 不锈钢造型cad施工图
床头柜节点cad施工图
软包床头 软包靠背板 布艺软包床头 床头软包板 卧室软包床头cad施工图
工装节点灯箱灯座天花暗藏灯投影幕方柱圆柱详图节点CAD素材图cad施工图
灯带灯槽线性灯嵌入式LED铝合金硬灯条节点CADcad施工图
主卧床背景墙施工大样详图 墙体剖面图 皮革硬包背景墙 现cad施工图
石膏板弧形造型带空调风口节点cad施工图
点击加载更多
分享到
复制链接
保存海报
取消
请选择收藏夹
+新增收藏夹
新增收藏夹
取消
确认
退出查看