模型详情
1/1
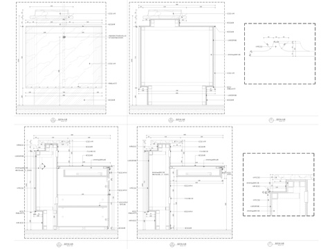
硬包床头靠背立面 节点.cad施工图
ID:
5432404
硬包床头靠背立面 节点.cad施工图 ID-5432404
所需欧币:
16
发布时间:
2026-03-11
下载请使用电脑登录欧模网,建议先收藏
收藏
分享
乐死你
关注
为您推荐
硬包节点 墙面硬包节点cad施工图
儿童造型柜立面和节点cad施工图
门立面节点大样图库cad施工图
墙面节点 卧室墙面 硬包墙面 床头背景墙cad施工图
样板间吧台平面立面节点.cad施工图
男更储物柜平面立面节点cad施工图
电视柜立面节点cad施工图
木框护墙板节点、墙面硬包通用节点、木踢脚硬包收口、硬包与天花cad施工图
眼镜店平立面及柜子节点CAD施工图cad施工图
床头柜节点cad施工图
墙面立面图 现代电视背景墙壁布硬包墙面 墙面节点cad施工图
厨房平立面图 现代厨房 厨房布局节点 墙面节点cad施工图
卫浴节点 卫浴柜子节点 卫生间立面图 墙面节点cad施工图
消防箱消火栓详图立面剖面节点CAD素材图库cad施工图
售楼部接待台立面、节点cad施工图
衣柜 柜体节点 柜子立面图 CAD施工图cad施工图
公卫平面布局 卫浴节点 卫生间立面图 墙面节点cad施工图
样板间效果图 施工图 平面 立面 节点cad施工图
样板间效果图 施工图 平面 立面 节点cad施工图
轻钢龙骨隔墙 硬包饰面墙面节点cad施工图
点击加载更多
分享到
复制链接
保存海报
取消
请选择收藏夹
+新增收藏夹
新增收藏夹
取消
确认
退出查看