模型详情
1/4
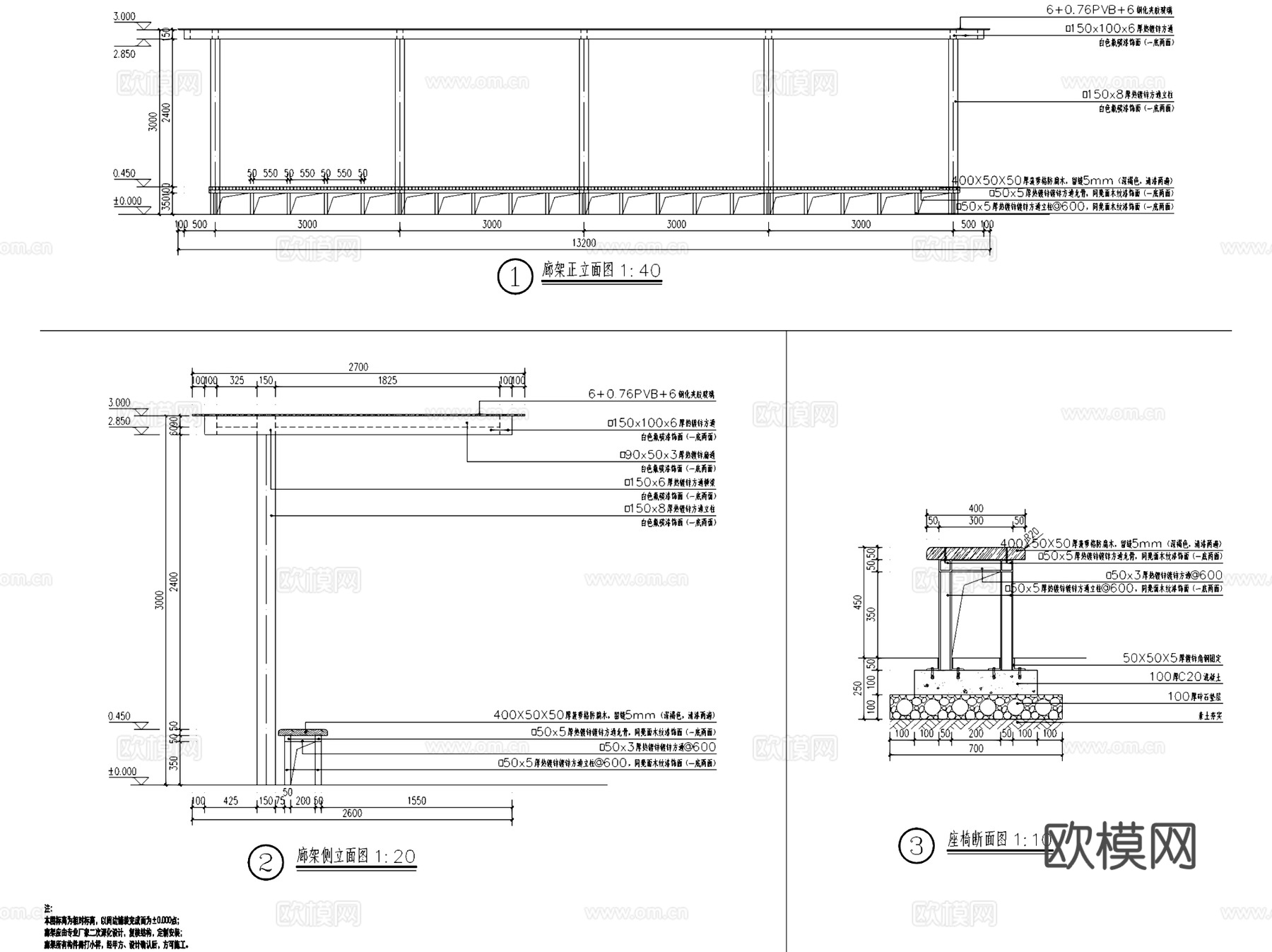
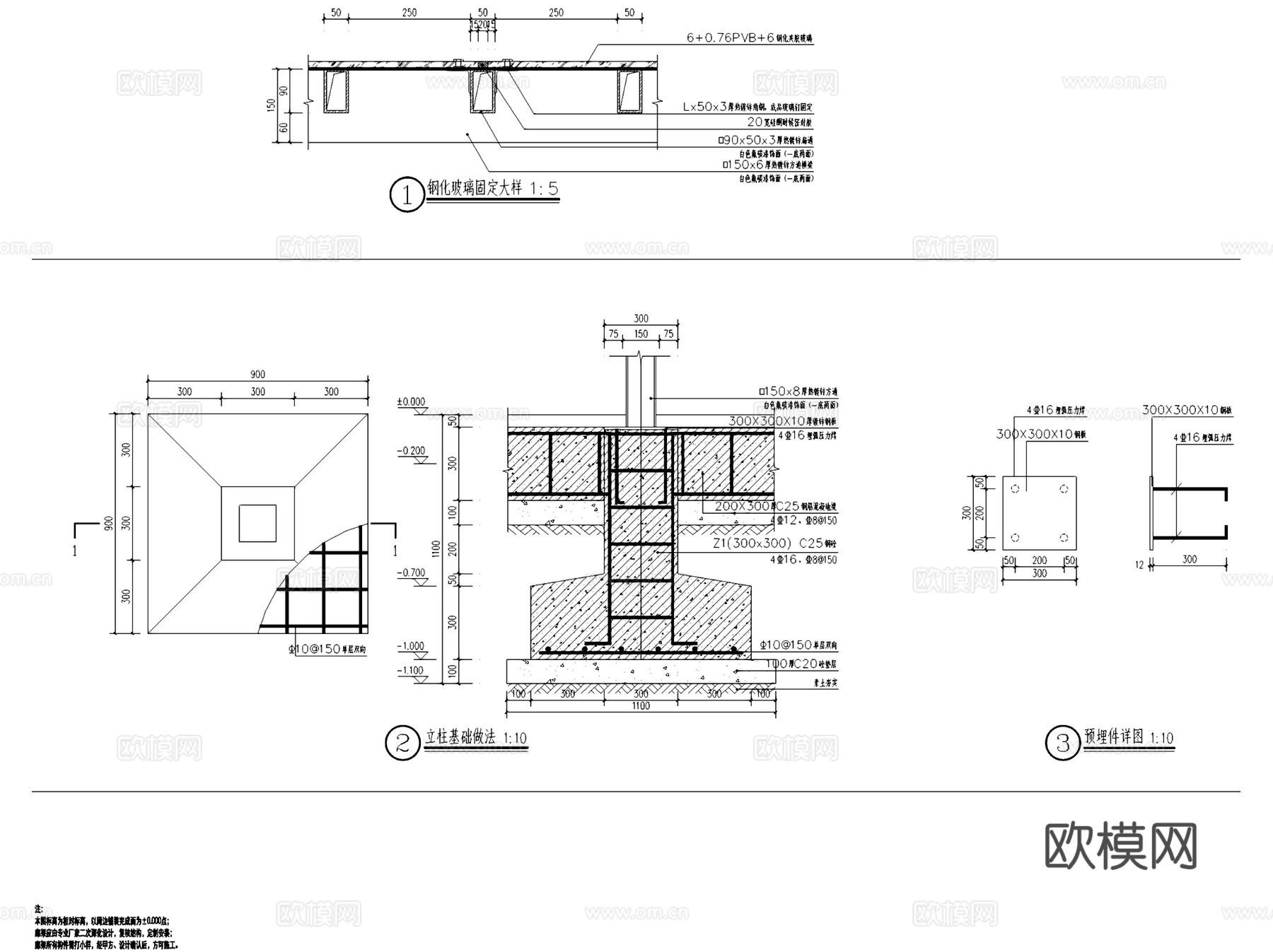
白色单臂钢结构休闲廊架景观节点大样详图CAD施工图cad施工图
ID:
5394020
白色单臂钢结构休闲廊架景观节点大样详图CAD施工图cad施工图 ID-5394020
所需欧币:
16
发布时间:
2026-02-09
下载请使用电脑登录欧模网,建议先收藏
收藏
分享
皮肤干燥
关注
为您推荐
单臂钢结构休闲廊架坐凳景观节点详图CAD施工图cad施工图
单臂木廊架cad施工图
园林景观休闲廊架大样详图CAD施工图集 55套cad施工图
中式廊架 仿古建公交车站台 亭子 单臂钢结构廊架 坐凳柱脚cad施工图
景观平桥节点大样详图CAD施工图cad施工图
廊架 四角亭子景观亭 钢结构廊架 格栅cad施工图cad施工图
实木单双开门节点大样详图CAD施工图cad施工图
中式特色景观廊架构件CAD施工详图cad施工图
游泳池节点大样景观详图CAD施工图cad施工图
景观道路铺装节点大样详图CAD施工图cad施工图
车库入口廊架构架节点大样详图CAD施工图cad施工图
景观小品详图CAD施工图cad施工图
车库入口廊架构架节点大样详图CAD施工图cad施工图
门节点大样详图CAD施工图cad施工图
景观坐凳详图CAD施工图cad施工图
廊架 四角亭景观亭子 玻璃廊架 钢结构廊架cad施工图
休闲景观桥及配套灯具节点大样CAD施工详图cad施工图
入口景观桥节点大样及结构CAD施工详图cad施工图
木构架休闲景观亭CAD施工详图cad施工图
中式景观廊架花架节点大样CAD施工图cad施工图
点击加载更多
分享到
复制链接
保存海报
取消
请选择收藏夹
+新增收藏夹
新增收藏夹
取消
确认
退出查看